Fully permitted seven‑unit over‑55 development plot in central Colchester..
- Full planning permission for 7 single‑storey over‑55 dwellings (ref 241421)
- Excellent city‑centre location near mainline station and amenities
- Freehold plot with generous garden/outdoor space and parking
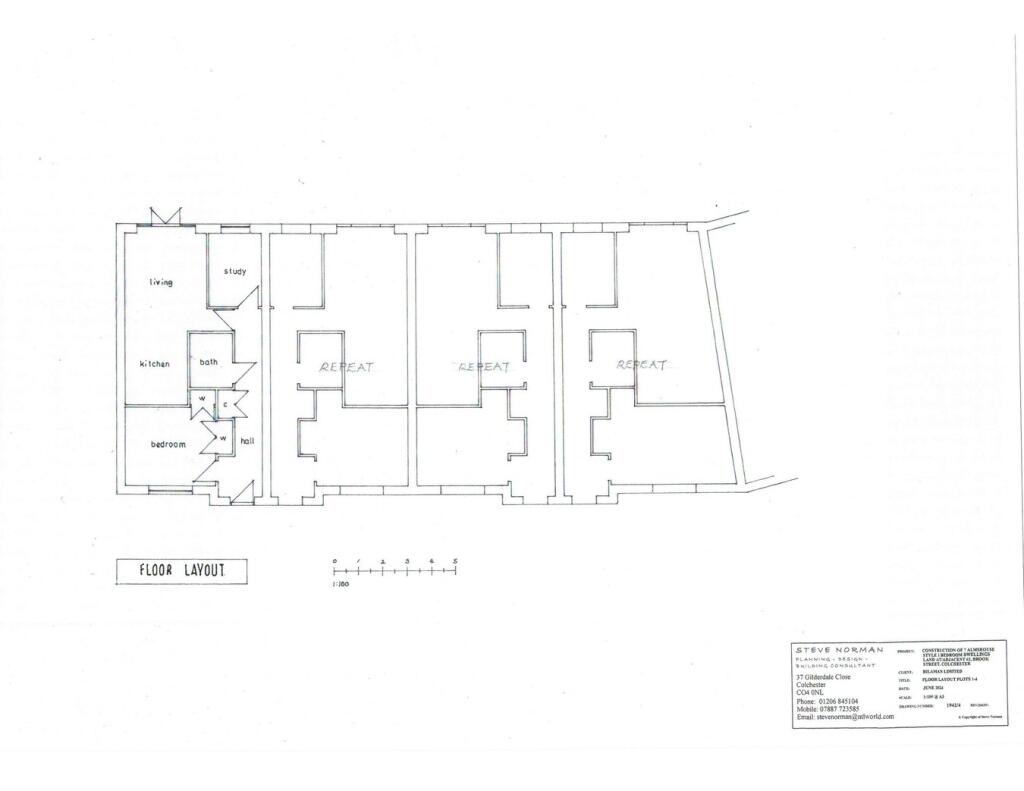
- Single‑level one/two bedroom units designed for retirement market
- Fast broadband and excellent mobile signal on site
- Area recorded as deprived with very high local crime rate
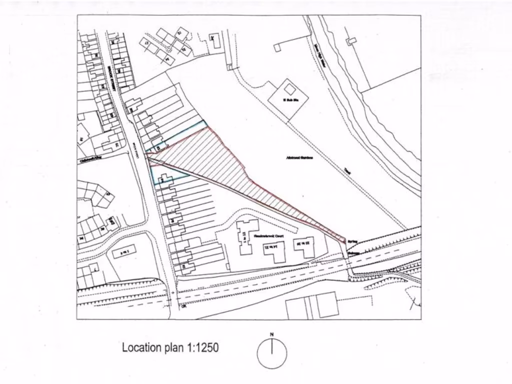
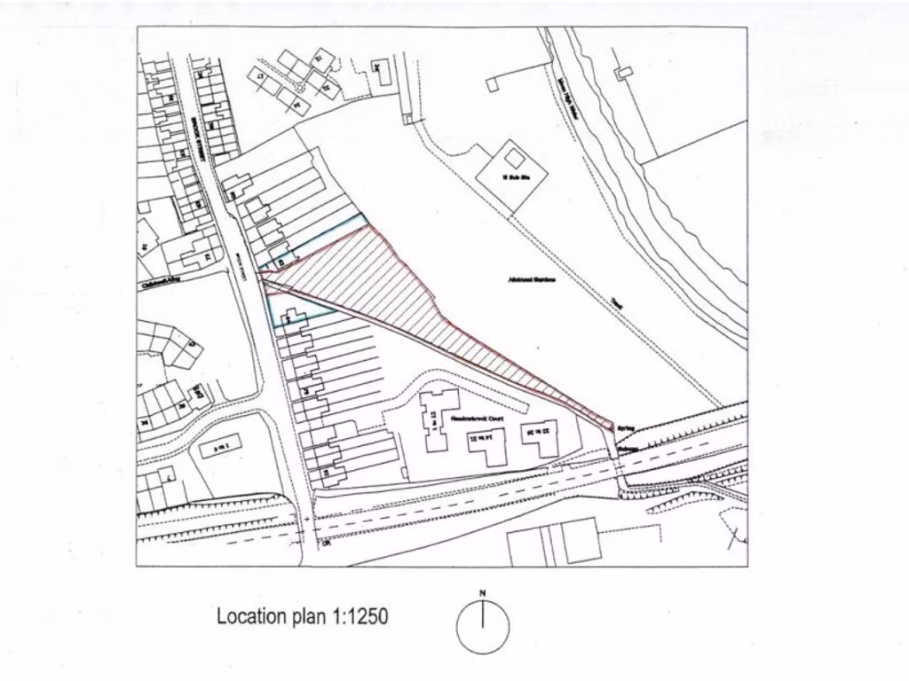
- Part of the land shares title with a separate house not included
- Site visits strictly by appointment; confirm exact site drawings
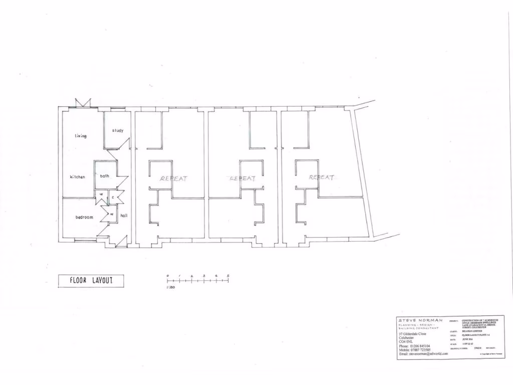
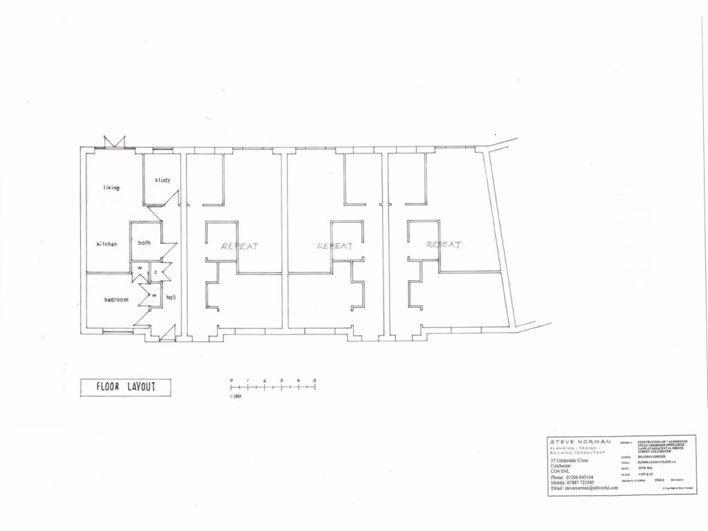
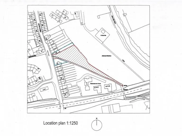
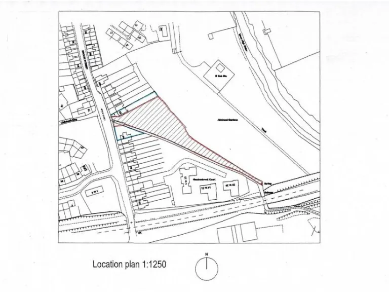
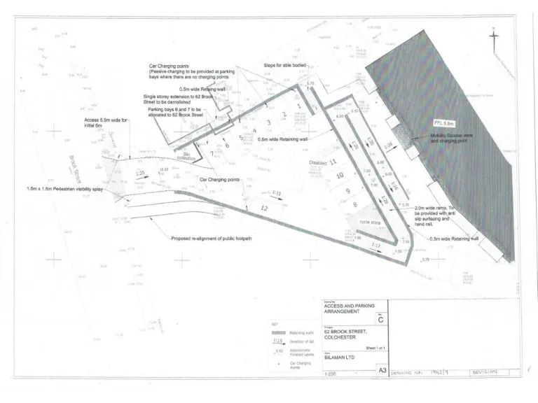
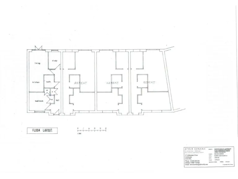
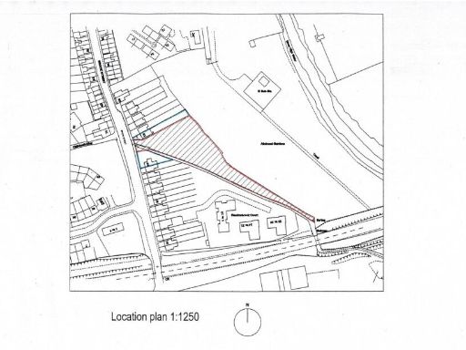
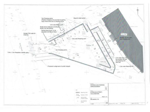
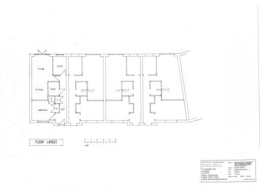
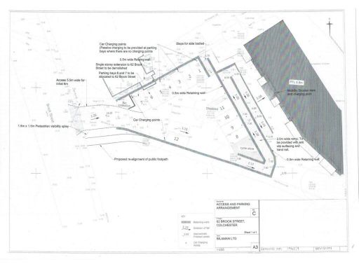
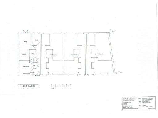
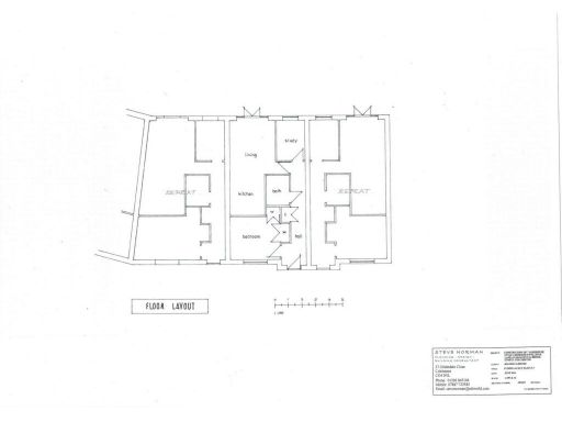
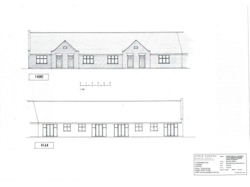
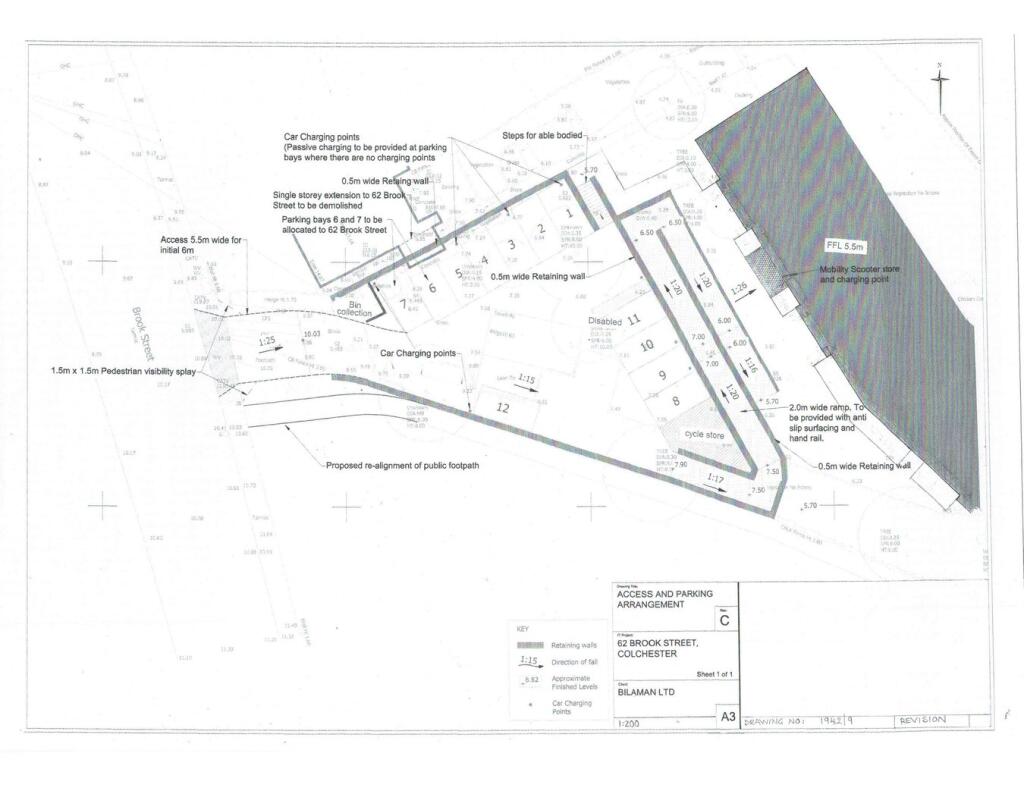
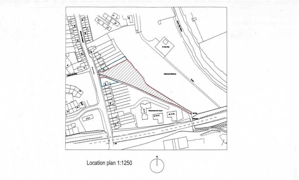
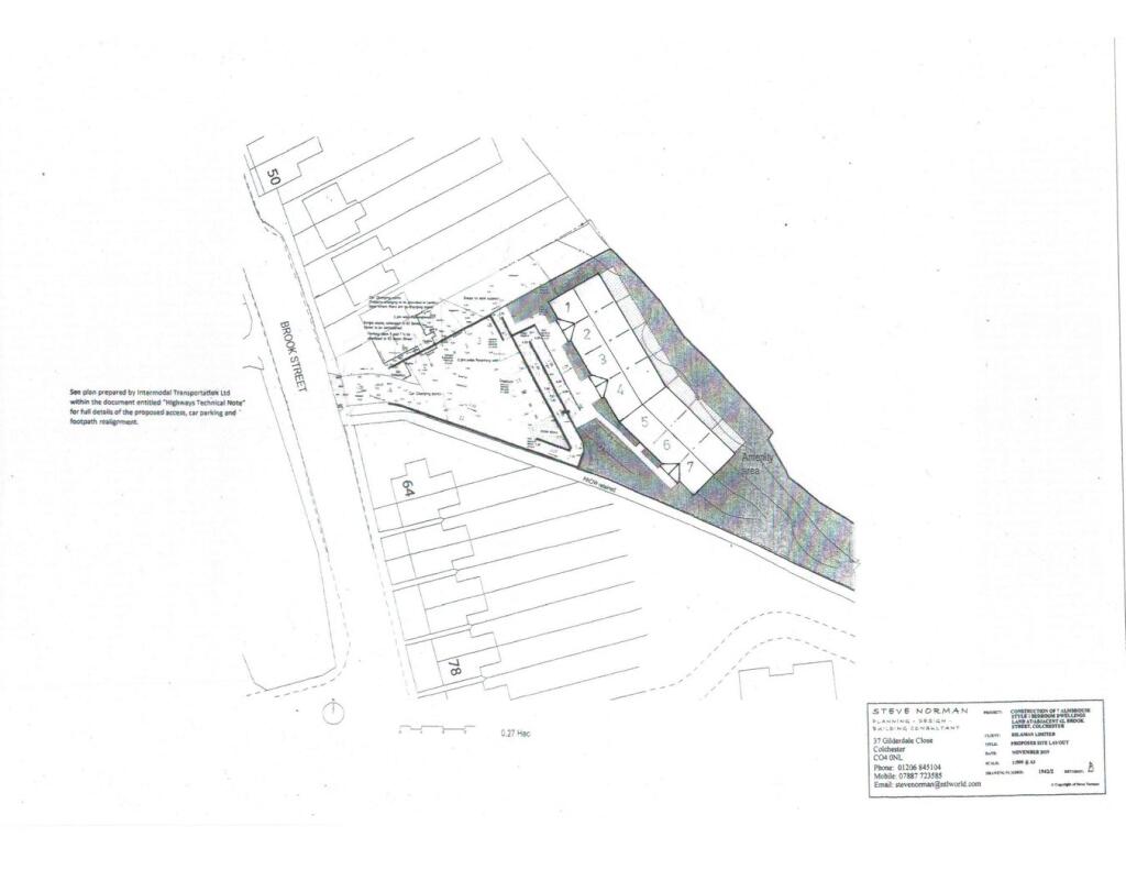
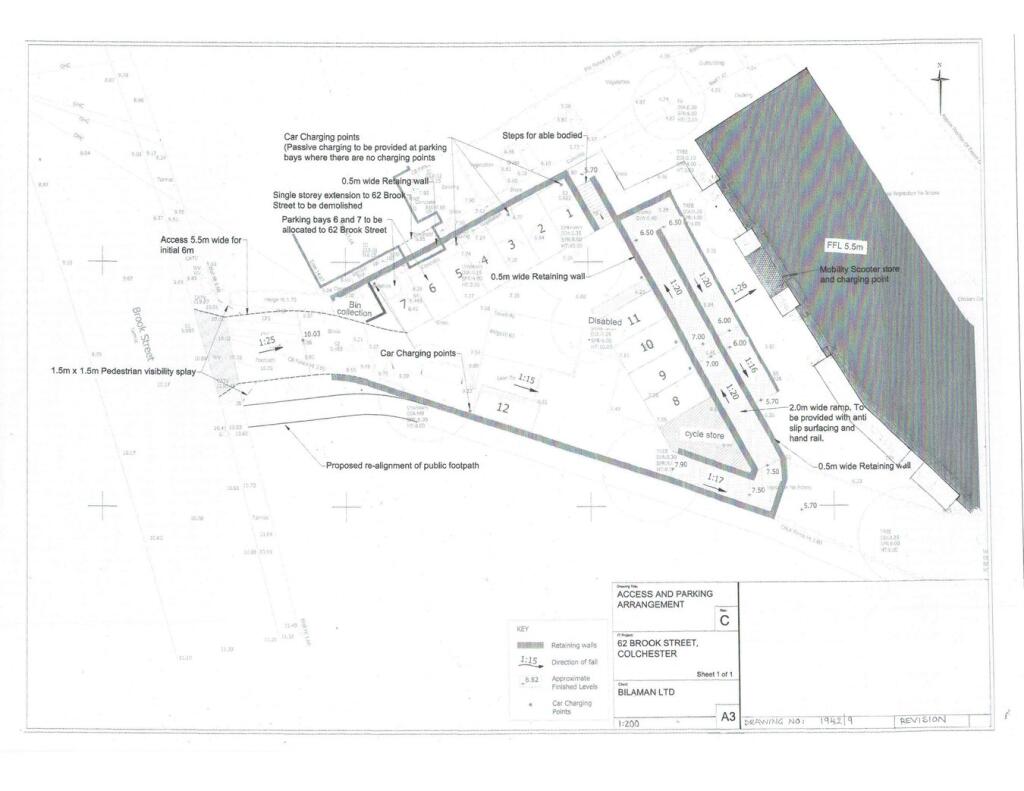
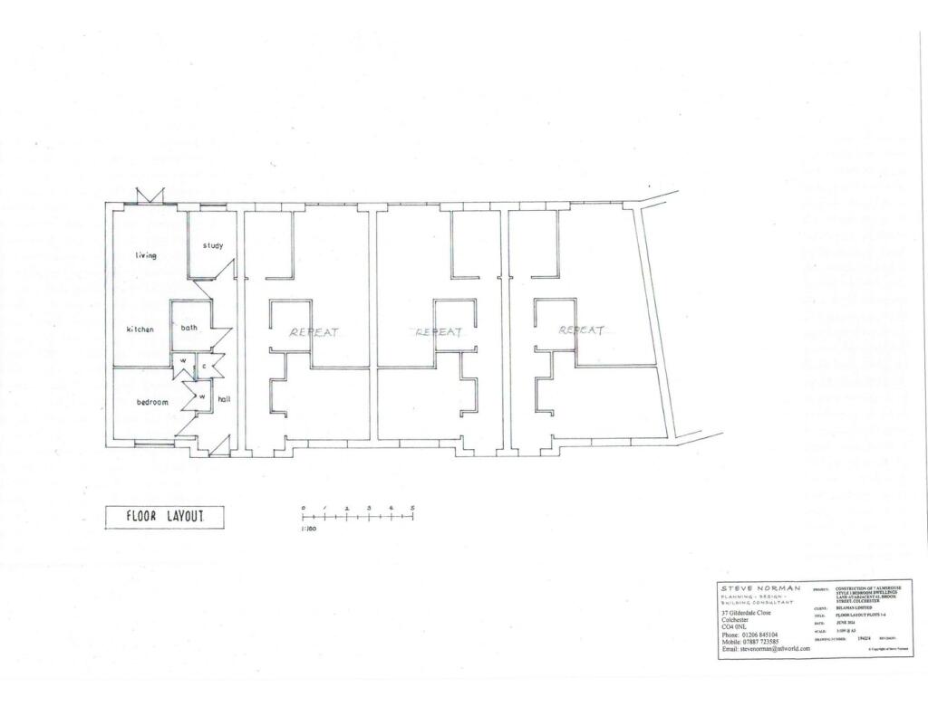
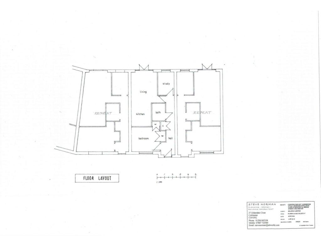
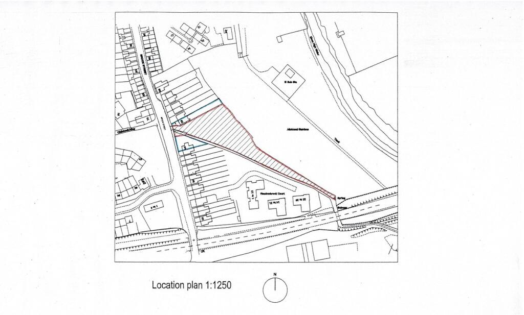
A rare development plot in central Colchester with full planning permission for seven single-storey “Alms House” style dwellings aimed at over‑55s. The scheme, granted under Colchester Borough planning ref 241421, proposes one‑ and two‑bed homes with associated parking and private outdoor space — ideal for a specialist retirement developer or investor targeting downsizers.
The site benefits from an excellent city‑centre location close to the mainline station, fast broadband and strong mobile signal, which will appeal to purchasers seeking convenience and connectivity. The design is described as well thought out, with generous garden areas and easy single‑level living that should command premium resale values in this market segment.
There are important practical considerations: the plot sits in an area recorded as deprived with a very high local crime rate, and part of the land currently shares title with a separate three‑bed semi that is not included in this sale. Early, accompanied viewings are by appointment only and buyers should verify the precise site extent and boundaries — the seller will provide formal drawings via solicitors on sale.
This opportunity suits a buyer able to progress a small specialist retirement scheme quickly and sensitively, taking the local social context into account. Flood risk is very low, but purchasers should undertake standard due diligence on title, boundaries, and local planning conditions before committing.
Plot for sale in Land To The Rear of 64 & 66 Blackheath, Facing Nightingale Court, Colchester, Essex, CO2 — £250,000 • 1 bed • 1 bath
Land for sale in Sheepen Place, Colchester, Essex, CO3 — £2,500,000 • 1 bed • 1 bath
Plot for sale in Bypass Road, St Osyth, Clacton-On-Sea, Essex, CO16 — £345,000 • 1 bed • 1 bath • 2100 ft²
Residential development for sale in Housing Development Site, Calais Street, Boxford, Sudbury CO10 — £700,000 • 1 bed • 1 bath
Plot for sale in Finch Way, Parsons Heath, Colchester, Essex, CO4 — £250,000 • 1 bed • 1 bath • 2500 ft²
Light industrial facility for sale in Plot C3, Junction 28 - A12, Colchester, CO4 6AT, CO4 — POA • 1 bed • 1 bath






























































































