Compact, chain-free three-bed terrace close to universities — ready for rent or renovation..
Chain-free three-bedroom Victorian terrace, ready to occupy or rent
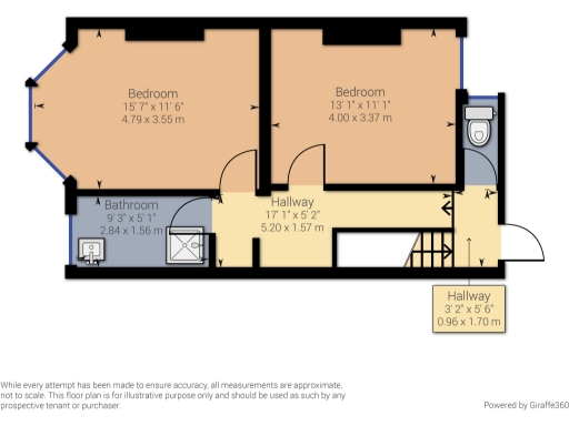
Short 556 sq ft layout; room sizes compact for three bedrooms
Modern kitchen and bathroom; double glazing already installed
Enclosed rear courtyard; no private driveway, on-street parking only
Solid brick walls likely uninsulated; energy upgrades advised
EPC rating D; potential to improve running costs and value
Located minutes from universities; strong student/professional demand
Area has above-average crime; factor for rentals and insurance
This compact Victorian terrace on Welbeck Avenue offers a straightforward, income-ready proposition in a busy Mutley neighbourhood. At 556 sq ft with three bedrooms and two reception rooms, it suits investors targeting student lets or buyers seeking a city-base close to Plymouth University and local arts colleges. The property is chain-free, so completion can be straightforward.
Internally the house is sensibly presented: a modern kitchen and bathroom, double glazing and gas central heating give immediate comfort and improve lettability. The layout provides flexible room uses—bedrooms that can be rented individually or used as home workspace—and a small enclosed courtyard for a private outdoor area.
There are practical issues to factor into any offer. The home is small for three bedrooms, so room sizes and storage are limited. The solid-brick walls are likely uninsulated (as built), which, together with the EPC D rating, suggests expenditure may be needed to raise energy efficiency. On-street parking and an areawide above-average crime rate are also realities of this urban location.
Overall, this freehold terrace is a no-chain opportunity in a high-demand student and city-worker market. It presents immediate rental potential with modest investment to improve energy performance and long-term value. Suitable buyers will be investors or purchasers seeking proximity to the universities and city amenities.
4 bedroom terraced house for sale in Belgrave Road, Plymouth, PL4 — £225,000 • 4 bed • 1 bath • 1165 ft²
3 bedroom terraced house for sale in Glen Park Avenue, Plymouth, Devon, PL4 — £245,000 • 3 bed • 2 bath • 798 ft²
3 bedroom terraced house for sale in Grafton Road, Mutley, Plymouth, PL4 — £210,000 • 3 bed • 2 bath • 1257 ft²
4 bedroom terraced house for sale in Derry Avenue, Plymouth, PL4 — £275,000 • 4 bed • 2 bath • 1424 ft²
4 bedroom end of terrace house for sale in Dale Road, Mutley, PL4 — £330,000 • 4 bed • 3 bath • 1484 ft²
6 bedroom terraced house for sale in Lisson Grove, Mutley, PL4 — £300,000 • 6 bed • 2 bath • 3057 ft²










































































































