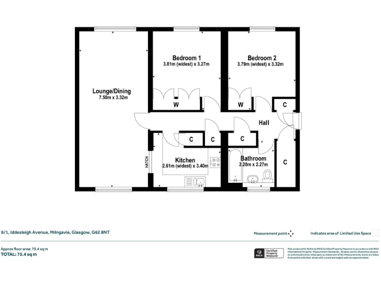
Ground-floor two-bedroom flat, about 812 sq ft
Quiet ground-floor two-bedroom flat in central Milngavie, offered freehold and set within a small three-property block. The apartment provides a spacious lounge/dining room, two double bedrooms and a garage with private parking, plus a small garden — practical for downsizers or couples wanting single-floor living close to local shops and the station.
The property has been well maintained but requires modernisation throughout, giving a buyer scope to refresh kitchen, bathroom and finishes to their own taste. Gas central heating and PVCu double glazing are already in place; the Energy Performance Certificate sits at band D.
Location is a key advantage: a few minutes’ walk from Milngavie village centre, shops, rail links and popular walking routes including parts of the West Highland Way. Mobile signal is excellent and there is no flooding risk, though broadband speeds are average.
Buyers should note a few material drawbacks: the flat needs renovation to bring it up to modern standards, council tax is above average (Band E), and local area data flags high deprivation despite the immediate village being amenity-rich. These factors should be weighed against the property’s freehold tenure, size (about 812 sq ft) and strong location.
2 bedroom ground floor flat for sale in Flat 1, 21 Woodlands Street, Milngavie, G62 8NX, G62 — £165,000 • 2 bed • 1 bath • 840 ft²
2 bedroom apartment for sale in Strathblane Road, Milngavie, G62 — £235,000 • 2 bed • 1 bath • 678 ft²
2 bedroom terraced house for sale in Dunlop Place Milngavie G62 7LL, G62 — £165,000 • 2 bed • 1 bath • 2348 ft²
1 bedroom flat for sale in 97 Mugdock Road, Milngavie, G62 8PA, G62 — £130,000 • 1 bed • 1 bath • 549 ft²
1 bedroom flat for sale in Park Avenue, Milngavie, G62 — £90,000 • 1 bed • 1 bath • 484 ft²
2 bedroom apartment for sale in Keystone Road, Milngavie, G62 — £145,000 • 2 bed • 1 bath • 597 ft²










































































































