Spacious period flat with gardens and excellent transport links.
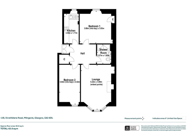
Freehold ground-floor Victorian flat, circa 1900
A well-proportioned two-bedroom ground-floor flat in a handsome Victorian terrace, offered freehold and ready for immediate occupation. The apartment preserves period character—bay-windowed living room, high ceilings and a feature fireplace—while benefiting from practical upgrades including a contemporary Vaillant combination boiler and a modern oversized walk-in shower room. At about 678 sq ft the layout suits downsizers or professionals seeking generous room sizes without extensive maintenance.
The location is a major draw: under a mile from Milngavie Village centre, regular rail services to Glasgow and Edinburgh, nearby bus routes, and direct access to Mugdock and Craigmaddie Reservoir walks. Gardens to the front and rear add private outdoor space unusual for ground-floor flats in the area. Internal décor is tidy but cosmetic updating would allow a new owner to personalise finishes and increase value.
Practical points to note: the property has an EPC rating of D and sits in Council Tax band D. While the building is described as being in good material condition, buyers should be aware of an indicated pattern of local deprivation in some statistics for the wider area. Overall this is a charming, well-located Victorian flat with scope for sympathetic modernisation and comfortable long-term use.
2 bedroom apartment for sale in Iddesleigh Avenue, Milngavie, G62 — £165,000 • 2 bed • 1 bath • 812 ft²
2 bedroom flat for sale in Clober Road, Milngavie, Glasgow, East Dunbartonshire, G62 — £200,000 • 2 bed • 1 bath • 719 ft²
2 bedroom ground floor flat for sale in Flat 1, 21 Woodlands Street, Milngavie, G62 8NX, G62 — £165,000 • 2 bed • 1 bath • 840 ft²
2 bedroom ground floor flat for sale in Overdale Street, Glasgow, G42 — £250,000 • 2 bed • 1 bath • 591 ft²
1 bedroom flat for sale in 97 Mugdock Road, Milngavie, G62 8PA, G62 — £130,000 • 1 bed • 1 bath • 549 ft²
2 bedroom flat for sale in Mingarry Street, North Kelvinside, G20 — £249,000 • 2 bed • 1 bath • 928 ft²






































































