OX12 9GB - 4 bedroom detached house for sale in Whittington Crescent,…

View on Property Piper

4 bedroom detached house for sale in Whittington Crescent, Wantage, OX12

Summary - 53, Whittington Crescent, WANTAGE OX12 9GB

4 bed 2 bath Detached

**Standout Features:**
- Modern four-bedroom detached family home
- Spacious L-shaped open-plan kitchen/dining/living area
- Abundant natural light with triple-aspect windows
- Separate study and ground floor cloakroom
- En-suite and built-in wardrobes in master bedroom
- Double garage and double-width driveway
- Large, private garden, ideal for families
- No onward chain

**Summary:**
Discover this beautifully presented four-bedroom detached family home, perfectly suited for contemporary living and entertaining. Bathed in natural light, the impressive L-shaped open-plan kitchen, living, and dining area is the heart of the home, seamlessly connecting to a large private garden via stylish French doors, creating an inviting ambiance for family gatherings. The separate study provides an ideal work-from-home setup, while the generous upstairs landing leads to four spacious bedrooms, including a luxurious master suite with an en-suite bathroom.

With a double garage and ample driveway space, parking is stress-free. Additionally, the expansive rear garden offers significant potential for landscaping or creating your outdoor oasis. Favorably positioned in the desirable Market Town of Wantage, with good access to schools, parks, and essential amenities, this exceptional property is an ideal choice for families looking for comfort, space, and a community feel. Don’t miss out on this rare opportunity to secure your future in a move-in-ready home—schedule a viewing today!

Property Details

Brochure Descriptions

Image Descriptions

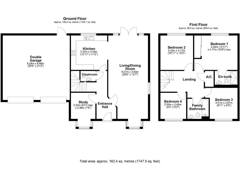
Floorplan Description

Rooms

Textual Property Features

Detected Visual Features

EPC Details

Nearby Schools

Nearest Bars And Restaurants

,,,,}

Nearest General Shops

,,}

Nearest Grocery shops

,,}

Nearest Supermarkets

,,}

Nearest Religious buildings

,,}

Nearest Medical buildings

,,,}

Nearest Leisure Facilities

,,,,}

Nearest Tourist attractions

,,}

Nearest Train stations

,,,,}

Nearest Bus stations and stops

,,,,}

Nearest Hotels

,,}

Tags

Local Market Stats

AirBnB Data

Similar Properties

Meta

High Res Images

Compatible Images

Low res Images

Thumbnails

Raw Images

High Res Floorplan Images

Compatible Floorplan Images

Low res Floorplan Images

FloorplanImages Thumbnail

Raw Floorplan Images