OX12 9EP - 4 bedroom link detached house for sale in Bec Close, Wantag…

View on Property Piper

4 bedroom link detached house for sale in Bec Close, Wantage, OX12

Summary - 11 BEC CLOSE WANTAGE OX12 9EP

4 bed 2 bath Link Detached House

Four-bedroom family home with private west-facing garden and tandem garage, offered with no onward chain.
Four bedrooms with ensuite to master
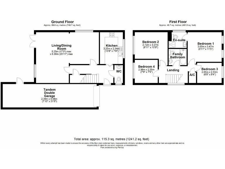
Set in a quiet cul‑de‑sac in Wantage, this four‑bedroom link‑detached home offers practical family living with generous outside space. The L‑shaped living/dining room and west‑facing rear garden provide sunny, sociable areas for day‑to‑day life and entertaining. A tandem double garage with personal door and driveway parking for two add useful storage and vehicle space.

The accommodation is arranged over two floors with a ground‑floor cloakroom, kitchen, and four bedrooms upstairs, including an ensuite to the master. The garden is mature and private, enjoying a patio and lawn sheltered by established trees and hedging. Local schools, bus routes and town amenities lie within comfortable walking distance.

The property was built in the late 1970s/early 1980s and shows its age in places; internal modernisation would unlock further potential. Windows are aluminium framed with replacement glass but installation date is unknown. Council tax is above average — an important ongoing cost to note. Offered freehold with no onward chain, it suits a family seeking space and a straightforward purchase process.

Property Details

Brochure Descriptions

Image Descriptions

Floorplan Description

Rooms

Textual Property Features

Target Audience

AI Tags

Detected Visual Features

EPC Details

Nearby Schools

Nearest Bars And Restaurants

,,,,}

Nearest General Shops

,,}

Nearest Grocery shops

,,}

Nearest Supermarkets

,,}

Nearest Religious buildings

,,}

Nearest Medical buildings

,,,}

Nearest Leisure Facilities

,,,,}

Nearest Tourist attractions

,,}

Nearest Train stations

,,,,}

Nearest Bus stations and stops

,,,,}

Nearest Hotels

,,}

Tags

Local Market Stats

AirBnB Data

Similar Properties

Meta

High Res Images

Compatible Images

Low res Images

Thumbnails

Raw Images

High Res Floorplan Images

Compatible Floorplan Images

Low res Floorplan Images

FloorplanImages Thumbnail

Raw Floorplan Images