**Standout Features:**
- Freehold development site with previous use as an engineering workshop
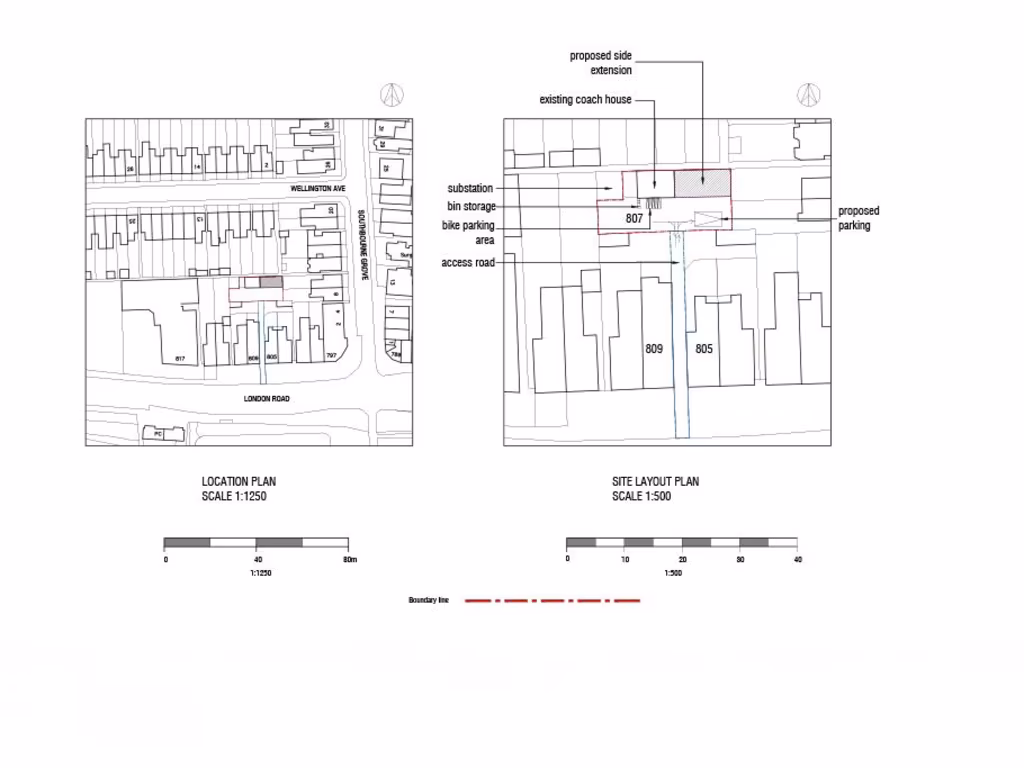
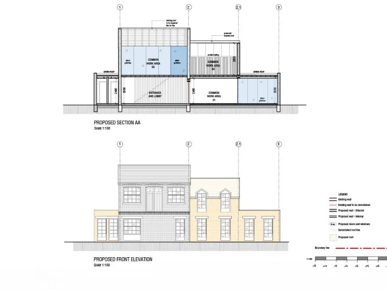
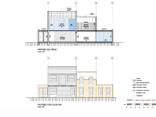
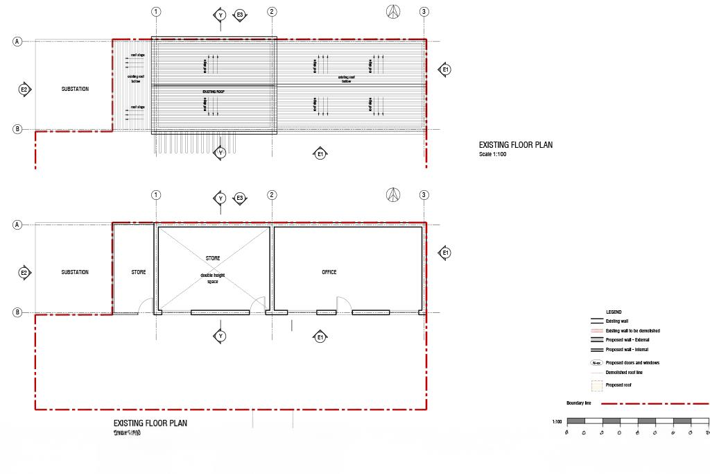
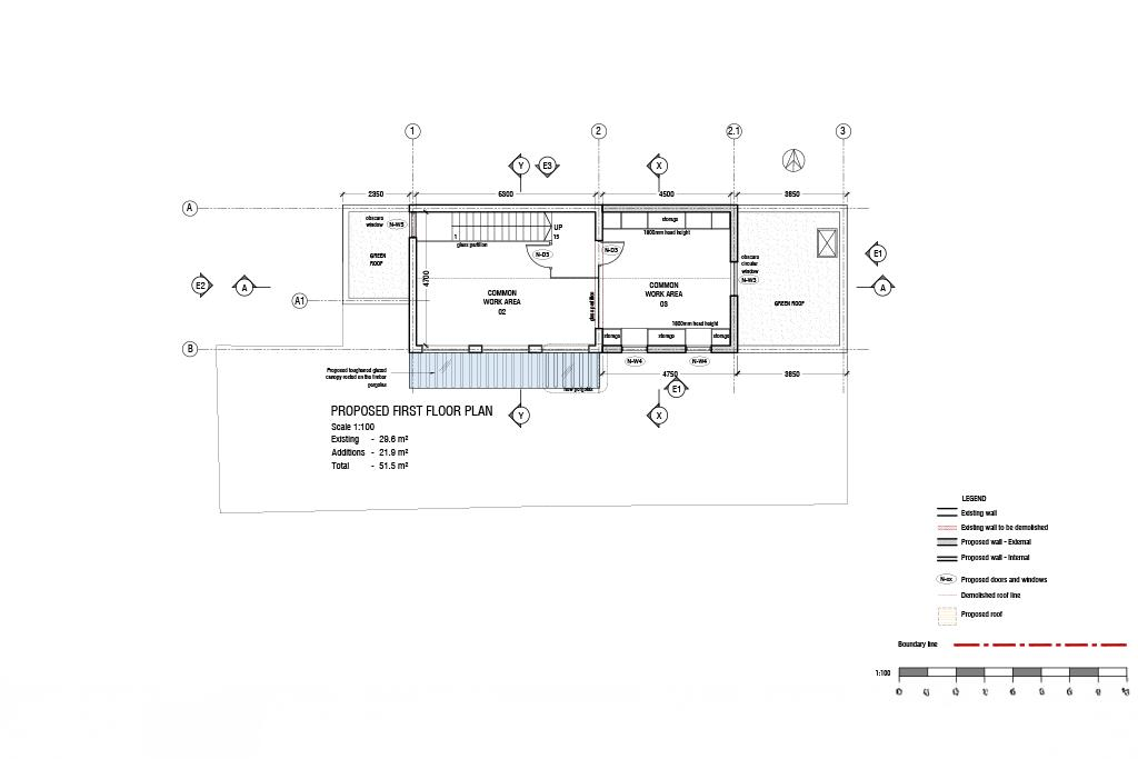
- Planning permission approved (24/01323/FUL) for conversion to offices with side extensions
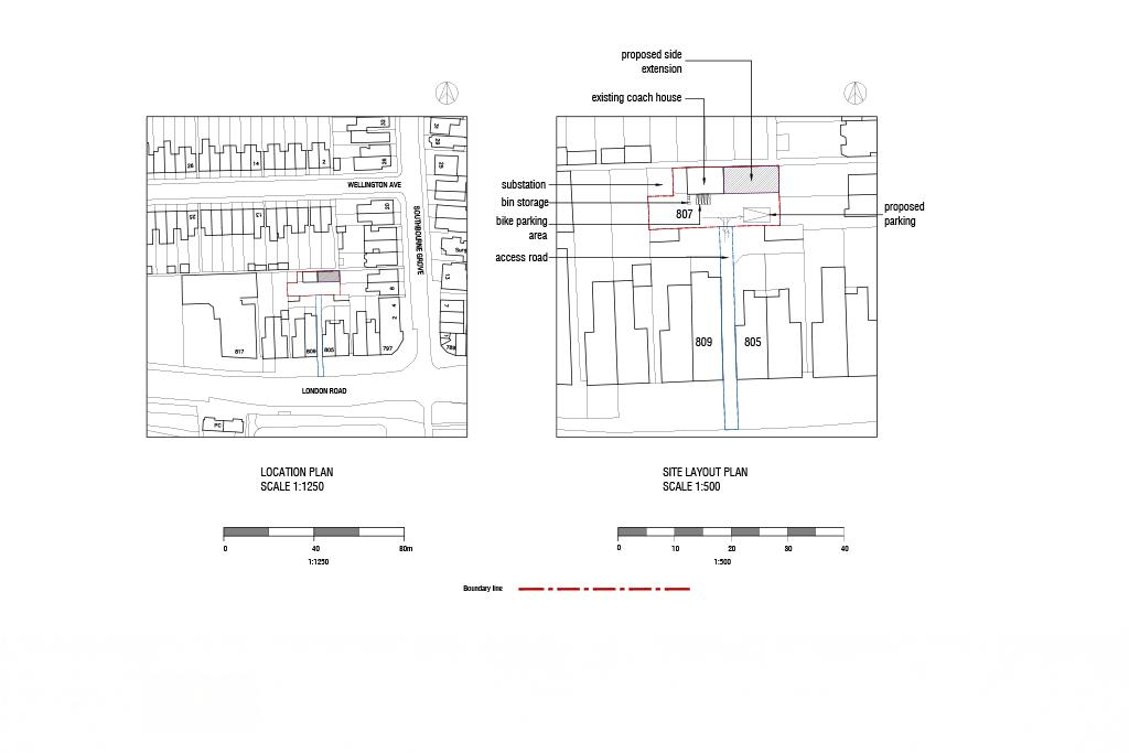
- Located in a prime area of Westcliff-On-Sea, opposite Chalkwell Park
- Off-street parking with a private driveway
- Council Tax Exempt 
- Requires renovation and modernization
This unique development site presents an exceptional opportunity for investors or entrepreneurs looking to establish a business in a sought-after location. Situated in Westcliff-On-Sea, just steps from Chalkwell Park, this property offers great visibility and access to local amenities, ensuring convenience for both clients and employees. The approved plans allow for conversion into offices, along with potential for extensions—ideal for those wishing to customize the space further.
Although it currently needs renovation, the property’s "fixer-upper" potential could be transformed into a thriving business hub. With ample off-road parking and a private drive, convenience is guaranteed. The surrounding area boasts a vibrant community with reputable schools, parks, and a variety of leisure activities, making this an enticing prospect for those ready to envision the possibilities. Don’t miss out on this opportunity—secure a viewing by appointment and imagine the future you can create in this promising locale.
 Residential development for sale in West Road, Westcliff-on-Sea, SS0 — £795,000 • 1 bed • 1 bath • 12500 ft²
 Residential development for sale in West Road, Westcliff-on-Sea, SS0 — £795,000 • 1 bed • 1 bath • 12500 ft² Land for sale in Woodside, Leigh-On-Sea, SS9 — £675,000 • 1 bed • 1 bath • 4213 ft²
 Land for sale in Woodside, Leigh-On-Sea, SS9 — £675,000 • 1 bed • 1 bath • 4213 ft² Mixed use property for sale in 1067 London Road, Leigh-on-Sea SS9 3JP, SS9 — £540,000 • 1 bed • 1 bath • 2277 ft²
 Mixed use property for sale in 1067 London Road, Leigh-on-Sea SS9 3JP, SS9 — £540,000 • 1 bed • 1 bath • 2277 ft² Land for sale in Sutton Road, Southend-on-Sea, Essex, SS2 — £495,000 • 1 bed • 1 bath • 7405 ft²
 Land for sale in Sutton Road, Southend-on-Sea, Essex, SS2 — £495,000 • 1 bed • 1 bath • 7405 ft² Plot for sale in **DEVELOPMENT OPPORTUNITY** Brendon Way, Westcliff-On-Sea, Essex, SS0 — £500,000 • 6 bed • 3 bath
 Plot for sale in **DEVELOPMENT OPPORTUNITY** Brendon Way, Westcliff-On-Sea, Essex, SS0 — £500,000 • 6 bed • 3 bath Land for sale in Lot, Wellstead Gardens, Westcliff-on-Sea SS0 0BU, SS0 — £800,000 • 1 bed • 1 bath • 3501 ft²
 Land for sale in Lot, Wellstead Gardens, Westcliff-on-Sea SS0 0BU, SS0 — £800,000 • 1 bed • 1 bath • 3501 ft²






























































