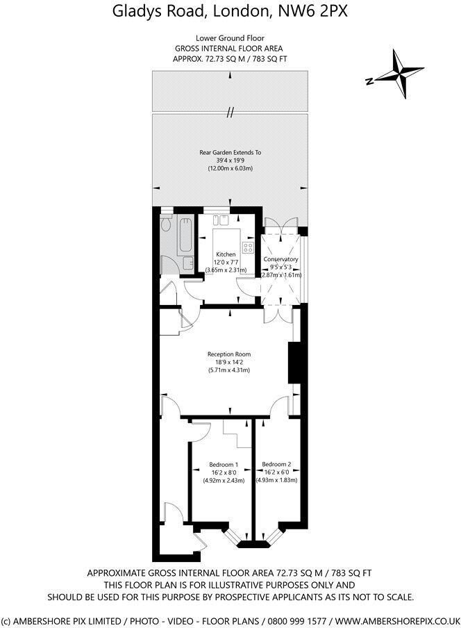
**Standout Features:**
- Bright and spacious 783 sq. ft two-bedroom garden flat
- Large open-plan reception with abundant natural light
- Conservatory leading to a 38' tiered garden with a spacious patio
- Separate kitchen and family bathroom
- Excellent transport links (0.3m from West Hampstead stations)
- SHARE OF FREEHOLD tenure offering a sense of ownership
- Strong local amenities in a vibrant area
**Concerns:**
- Above-average crime rate in the vicinity
- Solid brick walls with no insulation (assumed)
- Maintenance fees of £2,000
This charming two-bedroom garden flat presents an excellent opportunity for first-time buyers or small families seeking a blend of comfort and city lifestyle. The well-maintained property features a capacious living area bathed in natural light, complemented by a cozy conservatory that extends to a generous outdoor space—perfect for entertaining or relaxing. Located in the desirable West Hampstead area, enjoy easy access to local shops, restaurants, and various transport links.
Potential buyers will appreciate the strong community feel and outstanding nearby schools, making it an ideal investment for family life. While it does face an above-average crime rate, the appeal of a vibrant urban lifestyle, combined with the property’s ample living space and renovation potential, makes this offering a unique chance to own a piece of prime real estate. Don’t miss out on this opportunity to secure a comfortable urban retreat that also offers potential for personalization!
2 bedroom apartment for sale in Gladys Road, London, NW6 — £1,125,000 • 2 bed • 1 bath • 1127 ft²
2 bedroom flat for sale in Maygrove Road, London, NW6 2EB, NW6 — £550,000 • 2 bed • 1 bath • 561 ft²
2 bedroom flat for sale in West End Lane, London, NW6 2PA, NW6 — £750,000 • 2 bed • 1 bath • 1111 ft²
2 bedroom flat for sale in Hemstal Road, West Hampstead, London, NW6 — £650,000 • 2 bed • 2 bath • 704 ft²
1 bedroom flat for sale in Gladys Road, London, NW6 — £499,000 • 1 bed • 1 bath • 619 ft²
2 bedroom flat for sale in Sherriff Road, West Hampstead, London, NW6 — £700,000 • 2 bed • 2 bath • 884 ft²


























































