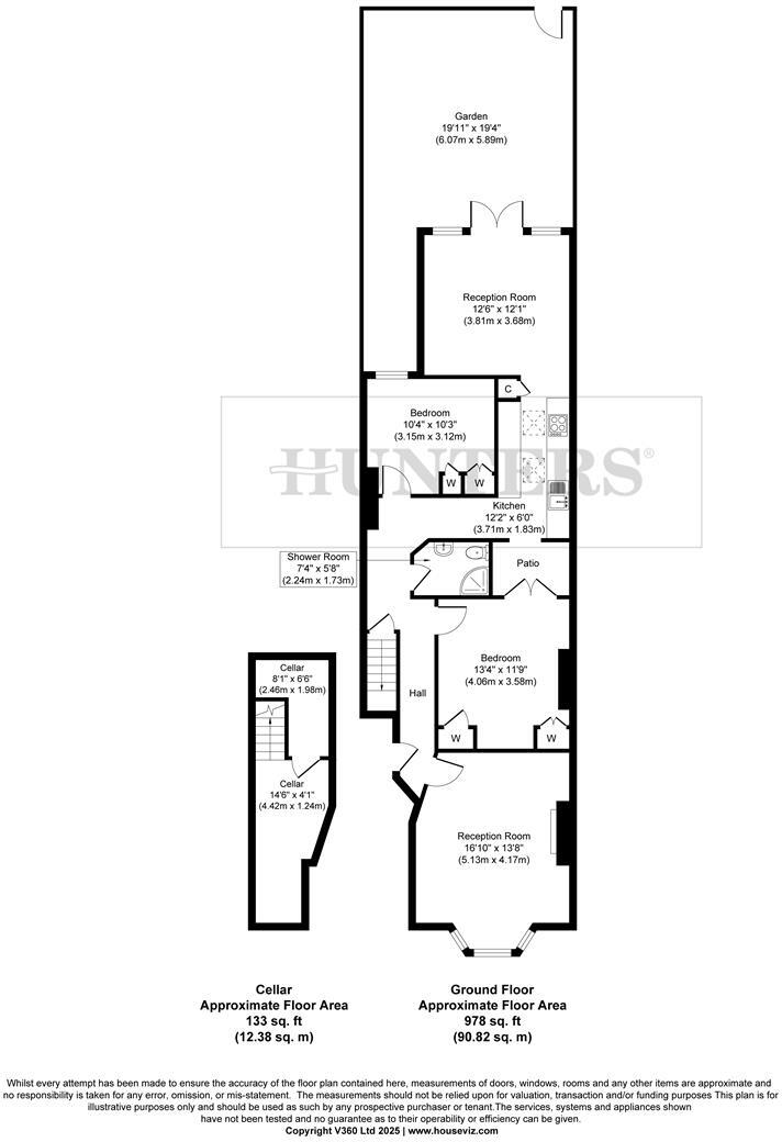
Ground-floor two-bedroom with high ceilings and private garden near transport and schools.
Generous 978 sq ft reception plus 133 sq ft cellar storage
A bright two-bedroom garden apartment in prime West Hampstead, offering generous living space and true family appeal. The main reception benefits from very high ceilings, large bay windows and period-style cornicing, creating an airy, characterful living room that flows toward a private garden — ideal for weekend play or entertaining. The modern galley kitchen with skylight and integrated appliances gives practical cooking space and a small dining area; demised cellar space adds useful storage.
Practical strengths include a long lease (990 years), share of freehold with the option to buy into the freehold after sale, and chain-free completion for a smoother move. The flat sits close to West End Lane shops and excellent transport links (Jubilee Line, London Overground and Chiltern services), and is surrounded by highly rated primary schools, making it well suited to families or professionals wanting convenient city living.
Buyers should note a single bathroom, and that some structural fabric is typical solid-brick construction with no assumed cavity insulation recorded. Ground rent is modest at £200. The property presents scope to personalise or reconfigure internal areas if desired — good potential to add value — but any buyer seeking a fully modernised home should allow for modest updating.
4 bedroom apartment for sale in Holmdale Road, West Hampstead, London, NW6 — £1,250,000 • 4 bed • 2 bath • 1280 ft²
2 bedroom flat for sale in West End Lane, West Hampstead, NW6 — £600,000 • 2 bed • 2 bath • 872 ft²
2 bedroom flat for sale in Gladys Road, West Hampstead, London, NW6 — £1,125,000 • 2 bed • 1 bath • 1121 ft²
2 bedroom maisonette for sale in Holmdale Road, London, NW6 — £1,100,000 • 2 bed • 1 bath • 1258 ft²
2 bedroom flat for sale in West End Lane, West Hampstead, NW6 — £875,000 • 2 bed • 2 bath • 792 ft²
3 bedroom apartment for sale in Crediton Hill, West Hampstead, NW6 — £1,500,000 • 3 bed • 2 bath • 1587 ft²










































