**Standout Features:**
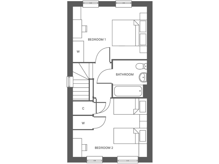
- Two double bedrooms with generous sizes
- Open-plan lounge/diner leading to a private south-west facing garden
- Modern kitchen with integrated appliances
- Solar panels and EV car charger installed
- Off-street parking for two vehicles
- Chain-free and freehold tenure
**Potential Considerations:**
- As a new build, some details may be subject to change during construction
- Limited current data on local schools for older students (Wixams Academy rated 'Requires Improvement')
Discover comfortable living in this spacious two-bedroom end of terrace house located in the desirable area of Royal Gardens, Wixams. This modern property boasts a generous open-plan lounge and dining space that flows seamlessly into a south-west facing garden, perfect for enjoying sunny afternoons. The fully-fitted kitchen, equipped with integrated appliances, caters to your culinary needs. Not only does this home offer off-street parking for up to two vehicles, but it also comes with the added advantages of solar panels and an EV charger — ideal for eco-conscious living.
Perfectly tailored for first-time buyers or investors, this freehold home is situated in a thriving community, complete with parks, schools, and amenities just a short walk away. The location also provides excellent transport links for those commuting to nearby towns or London, with easy access to the A6 and A421. Don't miss this opportunity to invest in a property that combines modern comforts and energy efficiency with the potential for future value growth. Act fast and envision your future in this inviting space!
2 bedroom terraced house for sale in Royal Gardens, Wixams, Bedford, MK45 — £325,000 • 2 bed • 1 bath • 796 ft²
2 bedroom semi-detached house for sale in Royal Gardens, Wixams, Bedford, MK45 — £337,500 • 2 bed • 1 bath
3 bedroom detached house for sale in Royal Gardens, Wixams, Bedford, MK45 — £422,500 • 3 bed • 2 bath • 983 ft²
4 bedroom detached house for sale in Royal Gardens, Wixams, Bedford, MK45 — £500,000 • 4 bed • 2 bath • 1361 ft²
3 bedroom semi-detached house for sale in Royal Gardens, Wixams, Bedford, MK45 — £390,000 • 3 bed • 2 bath • 983 ft²
5 bedroom detached house for sale in ROYAL GARDENS, Wixams, Bedford, MK45 — £585,000 • 5 bed • 3 bath • 1846 ft²






































