**Standout Features:**
- Newly built, double-fronted detached family home
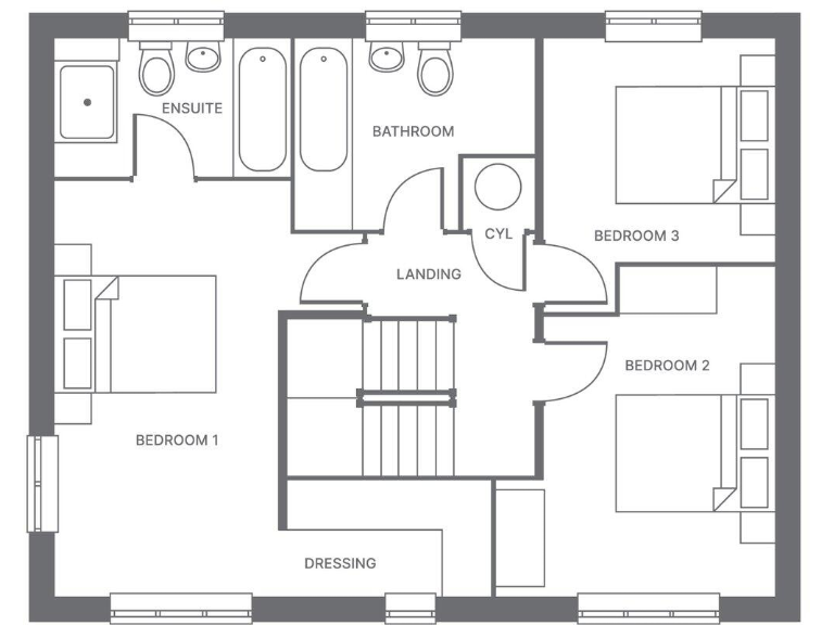
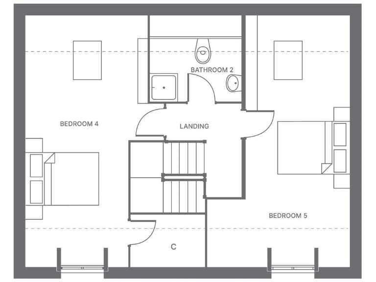
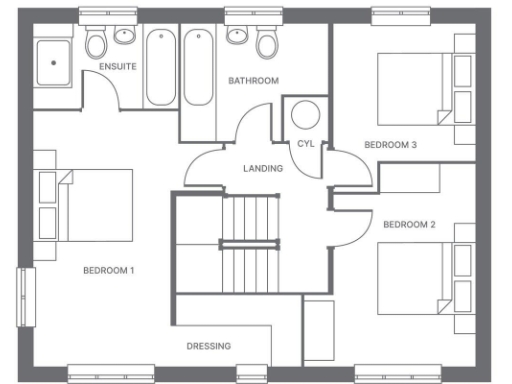
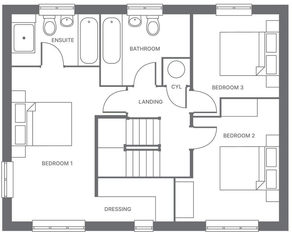
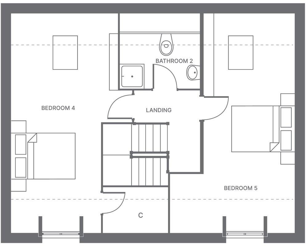
- Five spacious double bedrooms, including a luxurious master suite with en-suite and dressing area
- Expansive kitchen/diner and lounge with French patio doors, inviting natural light throughout
- Separate dining room with large bay window
- Generous garden, garage, and parking for up to three cars
- Located in the growing community of Wixams with essential amenities nearby
**Notable Concerns:**
- New build with standard construction measurements—check specifics for exact sizing
- Future homeowners should verify any changes from listed specifications upon completion
Discover comfort and modern living in this stunning five-bedroom detached house in Royal Gardens, Wixams. Spanning 1,846 sq feet, this exceptional property boasts a generous kitchen/diner and a stylish lounge, both featuring beautiful French patio doors that seamlessly connect indoor and outdoor spaces—a perfect setting for family gatherings and summer barbecues.
The luxurious master bedroom, complete with an en-suite and dressing area, is complemented by four additional doubles, making it ideal for families or those seeking extra room for guests, home offices, or hobbies. The design prioritizes natural light and functionality, ensuring comfort in every corner. A sizeable rear garden, a garage, and ample parking space for three vehicles enhance its appeal, providing convenience and potential for creative landscaping or entertainment setups.
This property, designed for a family-friendly lifestyle, is nestled within a sustainable community that offers schools, parks, and essential amenities—all within a short distance. Commuters will appreciate the easy access to major roadways and train services to London in under 45 minutes. With March Madness savings and assisted move options available, potential buyers should act quickly to seize this opportunity. Don’t miss the chance to call this remarkable home your own!
4 bedroom detached house for sale in Royal Gardens, Wixams, Bedford, MK45 — £500,000 • 4 bed • 2 bath • 1361 ft²
3 bedroom semi-detached house for sale in Royal Gardens, Wixams, Bedford, MK45 — £390,000 • 3 bed • 2 bath • 983 ft²
2 bedroom terraced house for sale in Royal Gardens, Wixams, Bedford, MK45 — £325,000 • 2 bed • 1 bath • 796 ft²
3 bedroom detached house for sale in Royal Gardens, Wixams, Bedford, MK45 — £422,500 • 3 bed • 2 bath • 983 ft²
2 bedroom end of terrace house for sale in Royal Gardens, Wixams, Bedford, MK45 — £337,500 • 2 bed • 1 bath • 796 ft²
2 bedroom coach house for sale in Abbey New Homes, Wixams, Bedford, MK45 — £290,000 • 2 bed • 2 bath • 807 ft²






















































