**Standout Features:**
- 4 spacious bedrooms with en-suite options
- Open plan kitchen/family room with double doors to lounge
- Feature square bay window enhancing natural light
- Additional integral garage and energy-efficient design
- 10-year NHBC warranty for peace of mind
- Chain-free opportunity for quick move-in
**Potential Downsides:**
- Located in a challenged area, consider local amenities and community dynamics
- Average mobile signal; broadband speeds are fast
Discover your new family home at Hartwood Chapel Gardens, a contemporary detached property that beautifully combines comfort and functionality. This four-bedroom residence features an inviting lounge lit by a charming square bay window and leads seamlessly into an open-plan kitchen and family room – perfect for both entertaining and family moments. With double doors opening into the garden, indoor-outdoor living is made effortless.
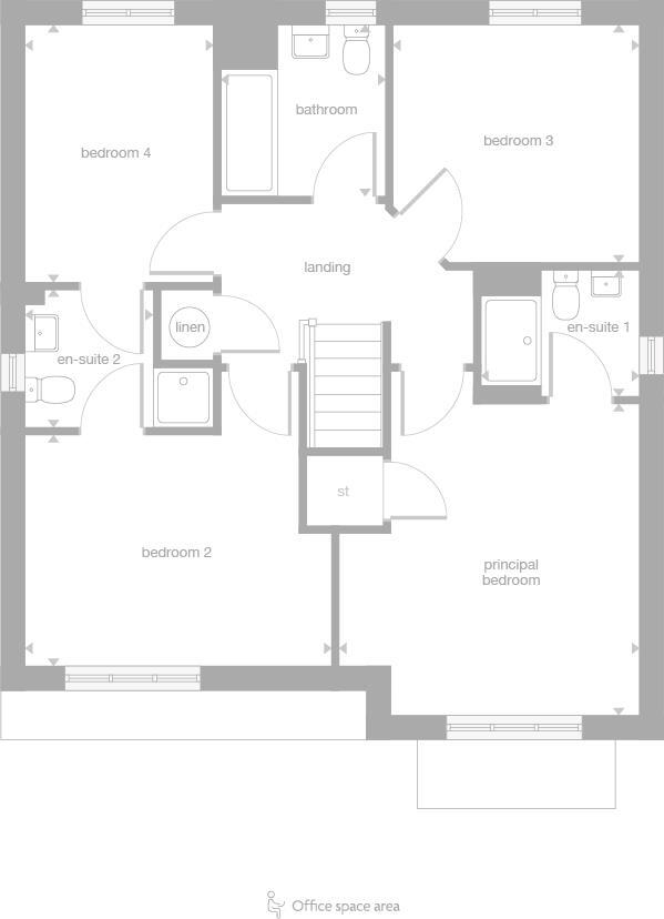
The upstairs layout boasts a principal bedroom with its own en-suite, alongside a convenient Jack and Jill bathroom shared between bedrooms. With an integral garage and a high energy-efficiency rating, this home meets modern living expectations while providing flexibility for future renovations. Ideal for first-time buyers or families looking for a tranquil environment, this chain-free opportunity won't last long! The property also comes with a 10-year NHBC warranty, assuring quality and durability for years to come. Embrace comfortable living in a promising neighborhood, ready for your personal touch!
4 bedroom detached house for sale in Chapel Gardens,
Havoc Road,
Dumbarton,
West Dunbartonshire,
G82 4JH, G82 — £375,000 • 4 bed • 1 bath
4 bedroom detached house for sale in Chapel Gardens,
Havoc Road,
Dumbarton,
West Dunbartonshire,
G82 4JH, G82 — £333,000 • 4 bed • 1 bath
4 bedroom detached house for sale in Chapel Gardens,
Havoc Road,
Dumbarton,
West Dunbartonshire,
G82 4JH, G82 — £312,000 • 4 bed • 1 bath
4 bedroom detached house for sale in Chapel Gardens,
Havoc Road,
Dumbarton,
West Dunbartonshire,
G82 4JH, G82 — £377,000 • 4 bed • 1 bath
4 bedroom detached house for sale in Chapel Gardens,
Havoc Road,
Dumbarton,
West Dunbartonshire,
G82 4JH, G82 — £391,000 • 4 bed • 1 bath
5 bedroom detached house for sale in Chapel Gardens,
Havoc Road,
Dumbarton,
West Dunbartonshire,
G82 4JH, G82 — £417,000 • 5 bed • 1 bath


























































