DT2 7JB - 3 bed thatched cottage renovation in Turnerspuddle, DT2 7JB

View on Property Piper

3 bedroom semi-detached house for sale in Turnerspuddle, Dorchester, DT2

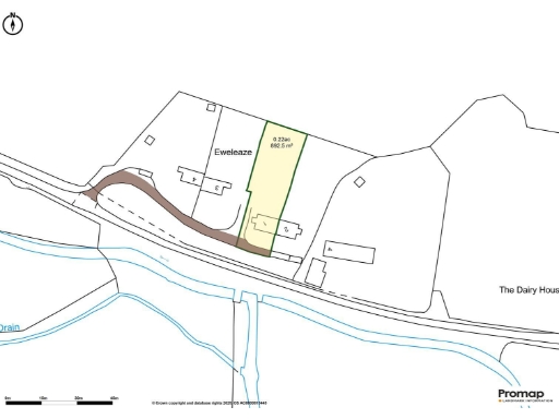
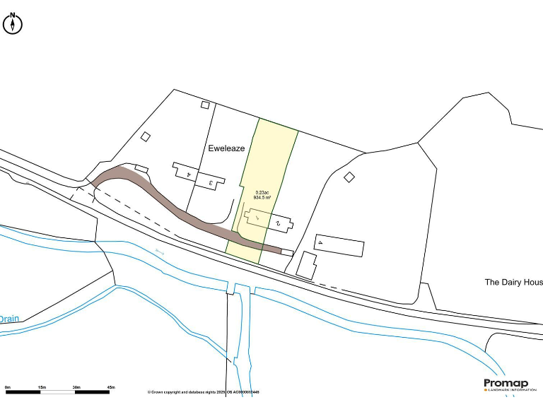
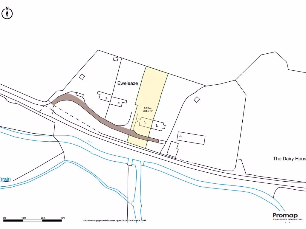
Summary - 1 Ewleaze Cottages, Turnerspuddle DT2 7JB

3 bed 1 bath Semi-Detached

Large plot and countryside views — ideal for an experienced renovator or developer.
Thatched cottage with traditional character and exposed beams
A three-bedroom thatched semi-detached cottage offered for sale by auction on Thursday 23 October 2025. The property requires complete renovation throughout and sits in an attractive rural setting with open farmland views and approximately 0.23 acres of gardens and grounds. There is scope to re-model or extend, subject to planning permission (STPP).

This lot will appeal to builders, developers and experienced renovators seeking a countryside project with strong location appeal — close to Bere Regis and within convenient driving distance of Dorchester, Wareham and the Jurassic Coast. The plot size and thatched character provide genuine potential to create a high-value finished home; the adjoining cottage is sold separately, which may interest those looking to acquire neighbouring land.

Buyers should factor known issues into their budgets: the house needs complete refurbishment, there is evidence of damp/mould internally, the shared septic tank does not meet modern regulations and will require replacement or a treatment plant, and the biomass heating is part of a community scheme with details in the legal pack. Access rights and a right of way are noted on the sale plan.

The property is freehold and will be sold at auction. Interested parties should review the legal pack for full service, access and biomass arrangements, and arrange surveys before bidding. This is a substantial countryside renovation opportunity with clear potential for uplift once remediated and modernised.

Property Details

Brochure Descriptions

Image Descriptions

Floorplan Description

Rooms

Textual Property Features

Target Audience

AI Tags

Detected Visual Features

EPC Details

Nearby Schools

Nearest Bars And Restaurants

,,,,}

Nearest General Shops

,,}

Nearest Grocery shops

,,}

Nearest Supermarkets

,,}

Nearest Religious buildings

,,}

Nearest Medical buildings

,,,}

Nearest Airports

}

Nearest Leisure Facilities

,,,,}

Nearest Tourist attractions

,,}

Nearest Train stations

,,,,}

Nearest Bus stations and stops

,,,,}

Nearest Hotels

,,}

Tags

Local Market Stats

Similar Properties

Meta

High Res Images

Compatible Images

Low res Images

Thumbnails

Raw Images

High Res Floorplan Images

Compatible Floorplan Images

Low res Floorplan Images

FloorplanImages Thumbnail

Raw Floorplan Images