DT2 7JB - 3 bed thatched cottage project in Turnerspuddle, DT2 7JB

View on Property Piper

3 bedroom semi-detached house for sale in Turnerspuddle, Dorchester, Dorset, DT2

Summary - 2 Ewleaze Cottages, Turnerspuddle DT2 7JB

3 bed 1 bath Semi-Detached

Rural renovation opportunity with large gardens and extension potential.
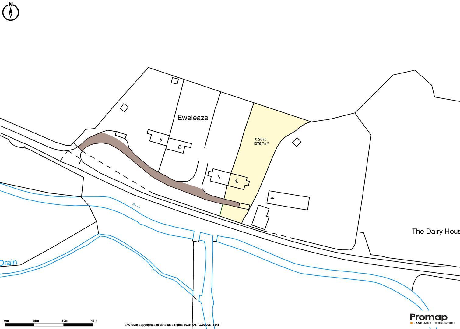
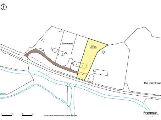
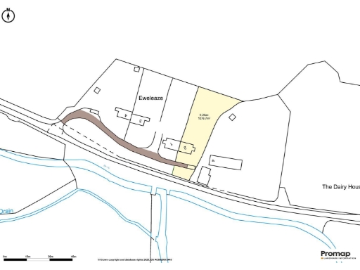
Thatched semi with about 0.26 acres of gardens and countryside views
Requires complete renovation throughout; sold at auction 23 October 2025
Scope to remodel and extend, subject to planning permission (STPP)
Shared septic tank non-compliant; replacement/treatment plant likely required
Heating via seller‑owned biomass/community scheme; check ongoing arrangements
Off‑street parking; mains water and electricity connected
Adjoining property offered separately; rights of way shown on sale plan
Freehold, Council Tax Band C, no flood risk
A rare semi-detached thatched cottage set in about 0.26 acres of gardens and grounds, offered for sale at auction. The house dates from the late 1950s and currently requires complete renovation throughout, making it a blank canvas for re‑modelling and extension subject to planning permission (STPP). Its rural setting delivers open countryside views and good road links to Bere Regis, Wareham, Dorchester and the Jurassic Coast.

Practical details to note: the property is freehold, will be sold at auction, and benefits from off‑street parking, mains water and electricity. Heating is via a biomass/community scheme currently owned and maintained by the seller; drainage is to a shared septic tank which does not meet modern regulations and will require replacement or a treatment plant at the buyer’s cost. Rights of way and an adjoining lot are shown on the sale plan.

For a developer, renovator or buyer seeking a countryside project, the plot size and setting are strong assets — there is scope to reconfigure and extend (STPP) to create a larger family home or a higher-value holiday/rental opportunity. The property’s thatched appearance and cob walls provide period character, but the interior and services are dated and need full refurbishment.

Viewers should budget for substantial works including drainage upgrade, interior refurbishment and possible permissions for structural change. The cottage is positioned in a quiet hamlet with fast broadband, excellent mobile signal and reasonable access to rail at Moreton, making it practical as a countryside base once refurbished.

Property Details

Brochure Descriptions

Image Descriptions

Floorplan Description

Rooms

Textual Property Features

Target Audience

AI Tags

Detected Visual Features

EPC Details

Nearby Schools

Nearest Bars And Restaurants

,,,,}

Nearest General Shops

,,}

Nearest Grocery shops

,,}

Nearest Supermarkets

,,}

Nearest Religious buildings

,,}

Nearest Medical buildings

,,,}

Nearest Airports

}

Nearest Leisure Facilities

,,,,}

Nearest Tourist attractions

,,}

Nearest Train stations

,,,,}

Nearest Bus stations and stops

,,,,}

Nearest Hotels

,,}

Tags

Local Market Stats

Similar Properties

Meta

High Res Images

Compatible Images

Low res Images

Thumbnails

Raw Images

High Res Floorplan Images

Compatible Floorplan Images

Low res Floorplan Images

FloorplanImages Thumbnail

Raw Floorplan Images