Chain-free period terrace close to village amenities and well-regarded schools.
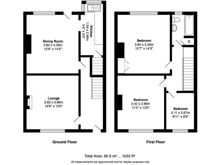
- Three double/single bedrooms and two reception rooms
- No upper chain; vacant possession available
- Cellar with light and power for storage or conversion
- Enclosed rear yard with outbuilding; small low-maintenance plot
- Gas central heating and double glazing throughout
- Superb front-facing views over the village
- Constructed before 1900; likely solid stone walls, no insulation
- On-street parking only; no private driveway
A bright, three-bedroom Victorian terrace offered chain free in the heart of Cross Hills. The house has neutral décor throughout, two reception rooms, and a cellar with light and power — useful storage or a hobby space. The front-facing rooms enjoy superb views and the property benefits from gas central heating and double glazing for everyday comfort.
Externally there is a small enclosed rear yard with an outbuilding suitable for storage, and on-street parking to the front. The plot is compact, so this home will suit buyers prioritising location, internal space and low-maintenance outdoor areas rather than a large garden.
Constructed before 1900 in stone, the walls are assumed to be solid with no built-in insulation; improving thermal performance could be a future upgrade. Overall the layout and size work well for a growing family or professional couple seeking convenient access to local shops, good schools and nearby towns for commuting.
Early viewing is recommended to appreciate the generous room proportions, cellar and outlook. The property is freehold, chain free and offered at a price that reflects its central village position and period character while leaving scope for sympathetic updating.
 2 bedroom end of terrace house for sale in 22 Beech Street, Cross Hills BD20 8TL, BD20 — £155,000 • 2 bed • 1 bath • 756 ft²
 2 bedroom end of terrace house for sale in 22 Beech Street, Cross Hills BD20 8TL, BD20 — £155,000 • 2 bed • 1 bath • 756 ft² 3 bedroom terraced house for sale in 8 St. Andrews Terrace, Cross Hills BD20 7DU, BD20 — £235,000 • 3 bed • 1 bath • 1227 ft²
 3 bedroom terraced house for sale in 8 St. Andrews Terrace, Cross Hills BD20 7DU, BD20 — £235,000 • 3 bed • 1 bath • 1227 ft² 1 bedroom terraced house for sale in 2 Prospect Street, Cross Hills BD20 7RH, BD20 — £105,000 • 1 bed • 1 bath • 536 ft²
 1 bedroom terraced house for sale in 2 Prospect Street, Cross Hills BD20 7RH, BD20 — £105,000 • 1 bed • 1 bath • 536 ft² 3 bedroom terraced house for sale in Ash Street, Cross Hills, BD20 — £167,500 • 3 bed • 1 bath • 741 ft²
 3 bedroom terraced house for sale in Ash Street, Cross Hills, BD20 — £167,500 • 3 bed • 1 bath • 741 ft² 3 bedroom terraced house for sale in Hargreaves Street, Cross Hills, BD20 — £183,000 • 3 bed • 1 bath • 879 ft²
 3 bedroom terraced house for sale in Hargreaves Street, Cross Hills, BD20 — £183,000 • 3 bed • 1 bath • 879 ft² 3 bedroom terraced house for sale in Ash Street, Cross Hills, BD20 — £199,950 • 3 bed • 1 bath • 1047 ft²
 3 bedroom terraced house for sale in Ash Street, Cross Hills, BD20 — £199,950 • 3 bed • 1 bath • 1047 ft²














































































