Characterful three-bedroom terrace with stunning dining kitchen, ideal for first-time buyers.
Stone-built three-bedroom mid-terrace with period character
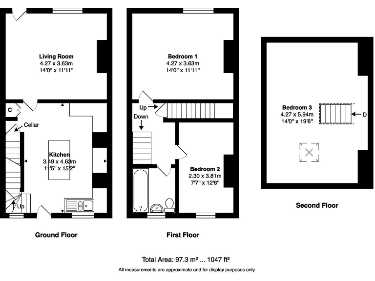
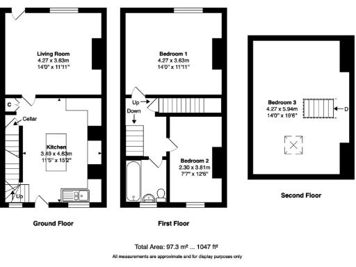
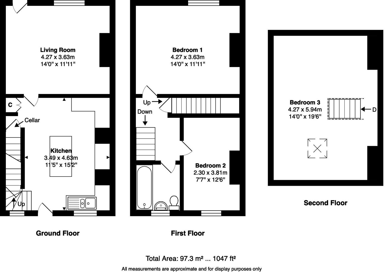
This stone-built mid-terrace on Ash Street combines Victorian character with a recently modernised feel, making it an attractive move for first-time buyers or buy-to-let investors. The south-facing sitting room centres on a multi-fuel stove and the dining kitchen is a standout, with island seating and contemporary fittings designed for everyday family life and entertaining.
Accommodation spans three floors and includes three double bedrooms and a good-quality bathroom. The top-floor attic bedroom with a Velux provides a bright, flexible space; room sizes are typical of town terraces and the overall footprint is average, offering practical living without excessive upkeep. The enclosed rear yard is low-maintenance and useful for storage, but is small and not suitable for extensive gardening.
Important practical points: the house is freehold, has mains gas central heating, double glazing (unknown install date) and cheap council tax. The solid stone walls are attractive but likely have little built-in insulation given the building age (pre-1900), so heating bills may be higher than modern builds and further insulation work could be considered.
Located in the heart of Cross Hills, the property sits close to shops, cafes, and good local schools, with reliable bus services and nearby train stations for commuters. Crime is low and mobile and broadband connectivity are strong. Overall, this is a well-presented, characterful home that offers sensible scope for further improvement and represents good value for first-time buyers or investors seeking a turnkey terrace in a popular village setting.
3 bedroom terraced house for sale in Ash Street, Cross Hills, BD20 — £167,500 • 3 bed • 1 bath • 741 ft²
3 bedroom terraced house for sale in Hargreaves Street, Cross Hills, BD20 — £183,000 • 3 bed • 1 bath • 879 ft²
1 bedroom terraced house for sale in 2 Prospect Street, Cross Hills BD20 7RH, BD20 — £105,000 • 1 bed • 1 bath • 536 ft²
3 bedroom terraced house for sale in South View, Cross Hills,, BD20 — £179,950 • 3 bed • 1 bath • 1033 ft²
3 bedroom terraced house for sale in South View, Cross Hills,, BD20 — £179,950 • 3 bed • 1 bath • 1015 ft²
2 bedroom terraced house for sale in Hargreaves Street, Cross Hills, BD20 — £162,500 • 2 bed • 1 bath • 772 ft²






































































