Three-floor town-centre property with flexible layout and conversion potential.
Prominent ground-floor shopfront with large pavement-level display windows
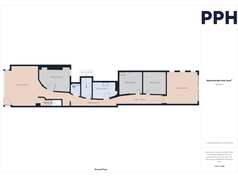
This substantial mid-terrace high-street property offers flexible town-centre accommodation across three floors, previously fitted as a treatment clinic. The ground floor features a prominent shopfront with large display windows and internal shutters; six individual treatment rooms and a large rear room open onto a private garden via bi-fold doors. The building’s 1,947 sq ft footprint and linear layout suit a range of uses: retail, clinic, office, or a mixed-use conversion with upper-floor ancillary/residential space.
The parade location benefits from steady local footfall, good nearby amenities and excellent mobile and fast broadband speeds. Visible external condition is good with traditional brick and painted façade, making the property immediately lettable or occupiable with modest cosmetic work. The layout and size present clear rental or owner-occupation potential for buyers seeking a town-centre commercial asset at this price point.
Notable considerations: tenure is unknown and the property will require checks (title, planning, and potential change-of-use) prior to purchase. The interior is fitted for treatment use, so conversion for alternative uses will need refurbishment and possibly building-regulation updates. No flooding risk recorded, and crime levels are average in an ageing urban community context.
For investors or occupiers looking for flexible, medium‑sized town-centre commercial space, this property offers scale, visibility and conversion upside. Buyers should factor in legal and planning due diligence and any refurbishment costs when assessing net yield or fit‑out budgets.
Office for sale in 16-20 George Street, Hull, East Yorkshire, HU1 — £195,000 • 1 bed • 1 bath • 2476 ft²
Commercial property for sale in 37-39 George Street, Hull, HU1 3BA, HU1 — £235,000 • 1 bed • 1 bath • 2566 ft²
Commercial property for sale in 18 Butcher Row, Beverley, East Riding Of Yorkshire, HU17 0AB, HU17 — £675,000 • 1 bed • 1 bath • 4625 ft²
5 bedroom terraced house for sale in 1-7 Beckside, Beverley, HU17 0PB, HU17 — £550,000 • 5 bed • 2 bath • 5000 ft²
High street retail property for sale in New Bridge Road, Hull, HU9 — £125,000 • 1 bed • 1 bath • 485 ft²
Commercial property for sale in 178 Hull Road, Hessle, 178 Hull Road, Hessle, HU13 9NH, HU13 — £139,950 • 1 bed • 1 bath • 998 ft²


















































