**Property Highlights:**
- Spacious semi-detached family home with three bedrooms
- Chain-free sale
- Large living/dining area ideal for entertaining
- Extended kitchen with built-in appliances and breakfast bar
- Manageable rear garden with lawn, perfect for families
- Garage and driveway for off-street parking
- Close to South Godstone train station for easy commute
- Located in a peaceful, affluent neighborhood with low crime rates
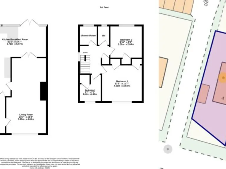
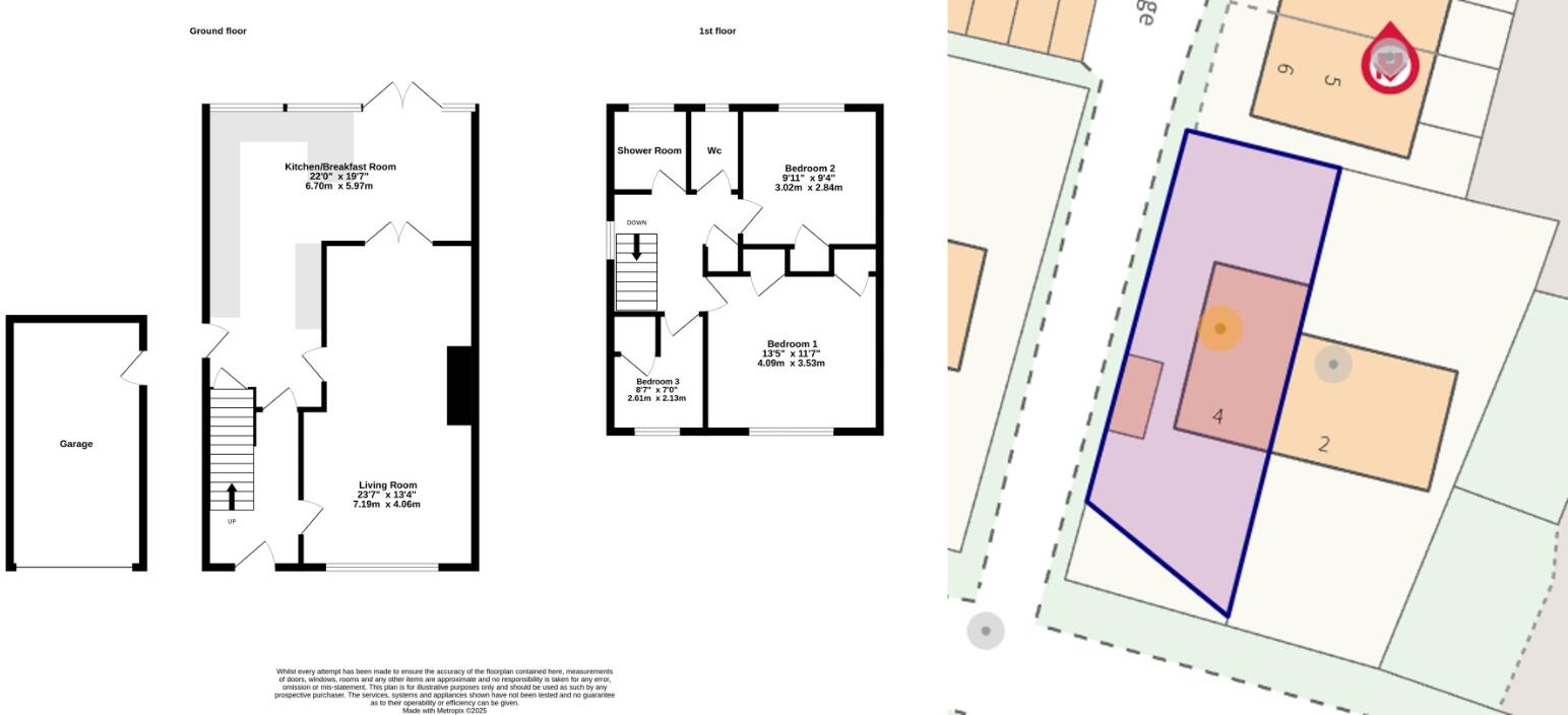
Discover your ideal family home in this charming three-bedroom semi-detached house, perfectly situated just a stone's throw from South Godstone train station. With its spacious living and dining area, plus an extended kitchen that invites light and enhances the social atmosphere, this property caters beautifully to family living and entertaining.
The upstairs layout includes a generous master bedroom with built-in wardrobes, complemented by another double bedroom and a single room. The well-maintained family bathroom features a separate WC, making morning routines seamless. Outside, enjoy the manageable garden and the advantage of a garage and additional off-street parking for up to two cars.
This property offers a unique opportunity for first-time buyers or families looking to settle into a tranquil environment with excellent local amenities. While the broadband speed is noted as slow, the area boasts a strong mobile signal and a comfortable community vibe. With the potential for further extensions (subject to planning permission), this chain-free home is ready for you to move in and make it your own. Don’t miss out on this exclusive listing; schedule a viewing today!
3 bedroom terraced house for sale in Oaklands, South Godstone, Godstone, RH9 — £400,000 • 3 bed • 1 bath • 1001 ft²
3 bedroom semi-detached house for sale in Lagham Road, South Godstone, Godstone, RH9 — £425,000 • 3 bed • 1 bath • 893 ft²
3 bedroom end of terrace house for sale in Oaklands, South Godstone, Godstone, RH9 — £415,000 • 3 bed • 1 bath • 990 ft²
3 bedroom link detached house for sale in South Godstone, Godstone, RH9 — £435,000 • 3 bed • 1 bath • 852 ft²
3 bedroom semi-detached house for sale in Lagham Road, South Godstone, Surrey, RH9 — £400,000 • 3 bed • 1 bath • 893 ft²
3 bedroom semi-detached house for sale in Bletchingley Road, Godstone, RH9 — £700,000 • 3 bed • 2 bath • 1362 ft²






















































