**Standout Features:**
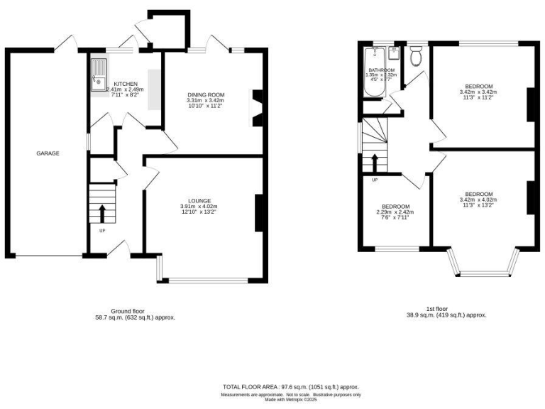
- Semi-detached family house with three bedrooms.
- Generously sized rooms with potential for modern renovations.
- Off-street parking with garage and front & rear gardens.
- No chain, facilitating a quicker move-in process.
- Prime location near Glenthorne High School and Sutton Common train station.
**Concerns:**
- Property requires renovation and modernization.
- Potential insulation issues due to solid brick walls.
This semi-detached family home offers a unique opportunity for those looking to invest in a property where they can make their mark. With three spacious bedrooms, two reception areas, and a sizable kitchen, this house presents you with an ideal canvas for transformation. The off-street parking and private garage add significant value, providing convenience that’s hard to come by in a suburban setting. Enjoy the potential for peaceful family living surrounded by highly-rated local schools and easy access to transport links.
While the property does require refurbishment, it’s priced to sell at £495,000, and with no chain, you can move in and start making it your own immediately. The decent plot size means there's also room for extensions or alterations, giving you flexibility for future growth. Don't miss out on this opportunity to create your perfect family home in a sought-after area. Act quickly to secure your viewing!
3 bedroom semi-detached house for sale in Glenthorne Gardens, Sutton, SM3 — £500,000 • 3 bed • 1 bath • 1046 ft²
3 bedroom semi-detached house for sale in Poplar Road, Sutton, Cheam, SM3 — £535,000 • 3 bed • 1 bath • 920 ft²
3 bedroom semi-detached house for sale in Fir Road, Sutton, SM3 — £600,000 • 3 bed • 2 bath • 1388 ft²
4 bedroom semi-detached house for sale in Wordsworth Drive, Cheam, Sutton, SM3 — £700,000 • 4 bed • 1 bath • 1732 ft²
3 bedroom semi-detached house for sale in Sherborne Road, Sutton, SM3 — £525,000 • 3 bed • 1 bath • 1242 ft²
3 bedroom semi-detached house for sale in Banstead Road, Carshalton, Greater London, SM5 — £525,000 • 3 bed • 1 bath • 866 ft²


































































