SM3 8HD - 4 bedroom semidetached house for sale in Wordsworth Drive,…

View on Property Piper

4 bedroom semi-detached house for sale in Wordsworth Drive, Cheam, Sutton, SM3

Summary - 39, WORDSWORTH DRIVE, SUTTON, CHEAM SM3 8HD

4 bed 1 bath Semi-Detached

**Standout Features:**
- Four bedrooms with versatile living spaces
- Chain-free sale for quick and easy transactions
- Off-street parking and garage
- Spacious garden ideal for families
- Excellent local schools with high Ofsted ratings
- Needs renovation, offering substantial modernization potential
- Located in a low-crime, affluent suburb

This spacious semi-detached home offers a golden opportunity for buyers looking to create their perfect family haven. With four well-proportioned bedrooms and two versatile reception rooms, there's ample room for comfortable living and entertaining. The modern living area is bathed in natural light, while the functional kitchen provides the perfect canvas for a remodel. Enjoy the convenience of off-street parking, an attached garage, and a generous garden that invites outdoor activities and relaxation.

Situated in a desirable location, this home is surrounded by highly regarded schools and boasts excellent transport links to central London. Although the property requires renovation, it holds immense potential for value appreciation, making it an attractive option for both families and investors.

Don’t miss the chance to secure this rewarding project in a tranquil neighborhood with extensive amenities. Early viewing is highly recommended to fully appreciate its promise!

Property Details

Brochure Descriptions

Image Descriptions

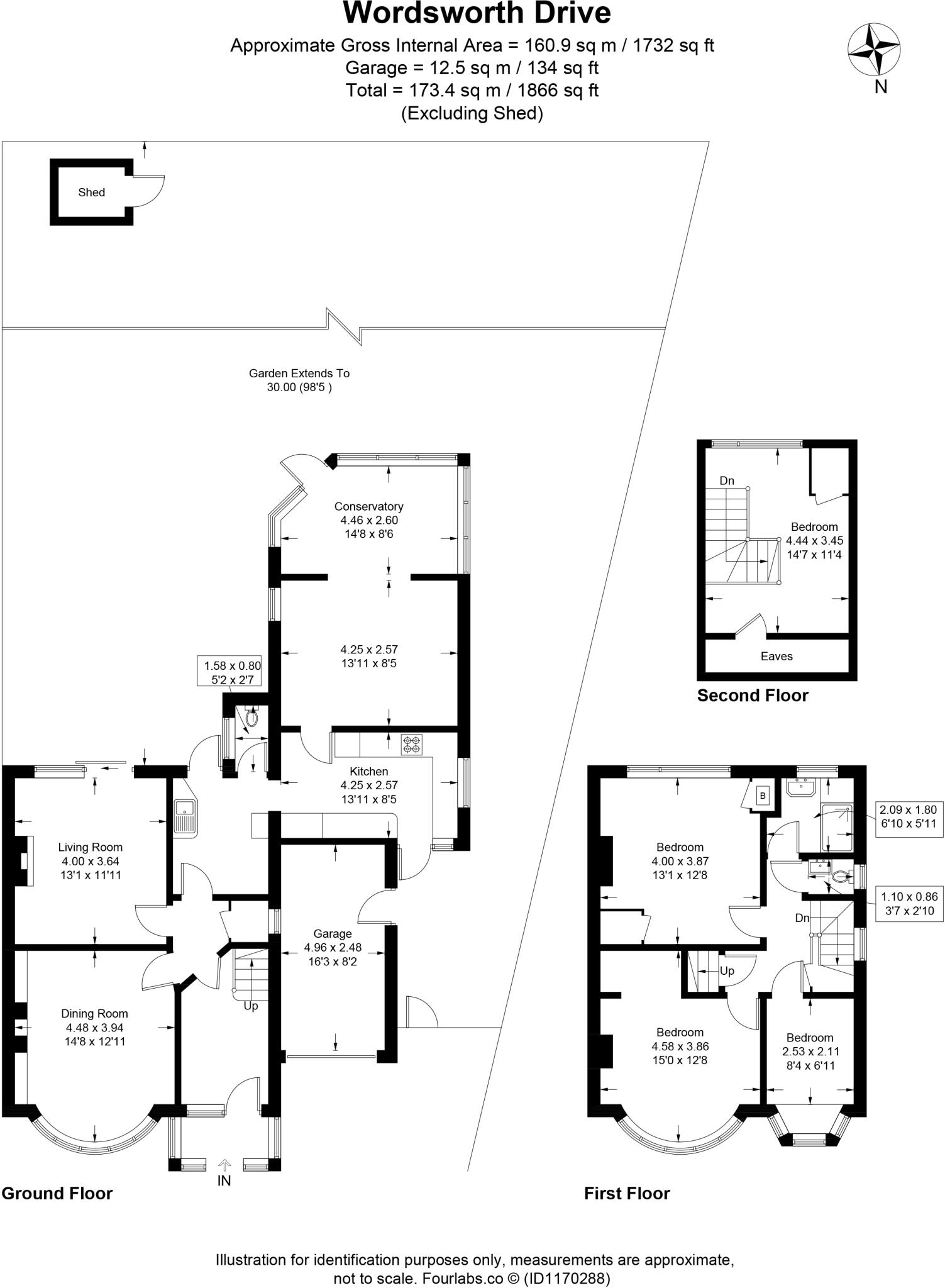
Floorplan Description

Rooms

Textual Property Features

Detected Visual Features

EPC Details

Nearby Schools

Nearest Bars And Restaurants

,,,,}

Nearest General Shops

,,}

Nearest Grocery shops

,,}

Nearest Supermarkets

,,}

Nearest Religious buildings

,,}

Nearest Medical buildings

,,,}

Nearest Airports

,,}

Nearest Leisure Facilities

,,,,}

Nearest Tourist attractions

,,}

Nearest Train stations

,,,,}

Nearest Bus stations and stops

,,,,}

Nearest Hotels

,,}

Tags

Local Market Stats

Similar Properties

Meta

High Res Images

Compatible Images

Low res Images

Thumbnails

Raw Images

High Res Floorplan Images

Compatible Floorplan Images

Low res Floorplan Images

FloorplanImages Thumbnail

Raw Floorplan Images