Move-in ready home with garden, garage conversion and coastal countryside access.
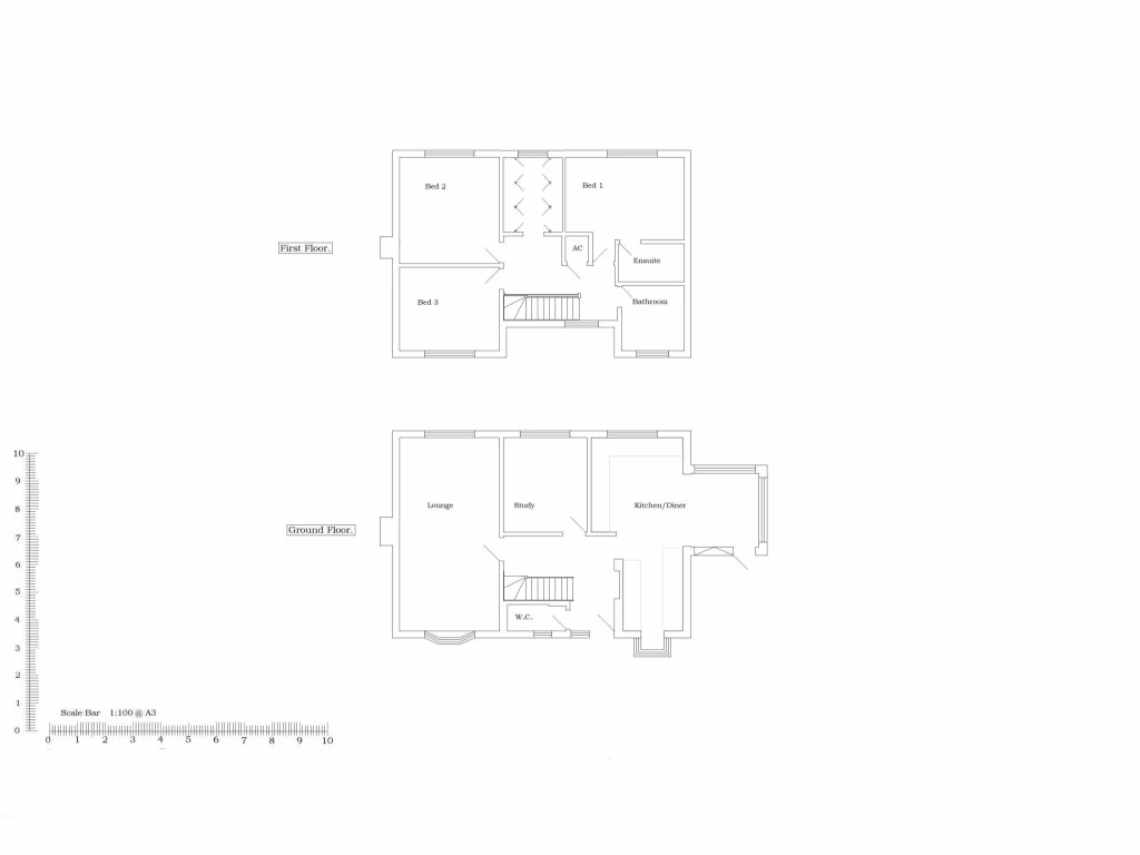
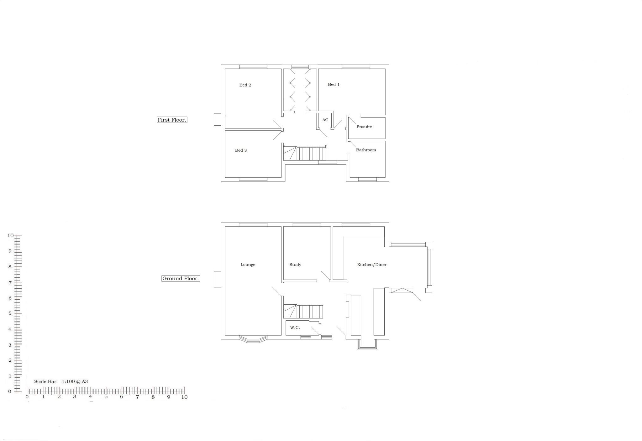
Four bedrooms with master en-suite and family bathroom
Converted double garage provides three heated, versatile rooms
Extended light-filled kitchen with bi-fold doors to garden
Large private rear garden, two patios, shed and workshop
Off-street parking for multiple vehicles on driveway
EPC currently E (rated before recent heating and window upgrades)
Modest total floor area (~1,046 sq ft) for a four-bedroom home
Council tax above average; area classified as relatively deprived
This four-bedroom detached house on a quiet cul-de-sac offers adaptable family living with bright, modern interiors and a large private garden. The extended kitchen/breakfast room with bi-fold doors and a bay-fronted lounge create flexible day-to-day space for family meals and relaxed entertaining. The converted double garage currently provides three heated rooms useful as a playroom, gym and study or potential annexe space.
Practical upgrades include a high-efficiency boiler (2021), replacement windows and external doors (2021/2022), LED lighting and fibre broadband — all helping running costs and comfort. The property sits on a generous plot with lawn, two patios, mature planting and off-street parking. Local footpaths (the Essex Way) and nearby coastline offer countryside and coastal recreation within easy reach.
Notable considerations: the house measures c.1,046 sq ft (relatively modest overall floor area for four bedrooms) and the EPC is currently rated E (assessment pre-dates some recent upgrades). The local area scores as relatively deprived and council tax is above average. Plans are available for a loft conversion but any works would require local authority planning approval.
For families seeking peace, outdoor space and versatile accommodation near both coast and countryside, this home is largely move-in ready and offers clear potential to increase living space subject to permissions. Schools, local shops and bus links lie within a short walk, while rail connections reach larger towns and London with a change.
4 bedroom detached house for sale in Hewitt Road, Ramsey, CO12 — £425,000 • 4 bed • 3 bath • 1626 ft²
4 bedroom detached house for sale in Fronks Road, Harwich, CO12 — £535,000 • 4 bed • 2 bath • 1363 ft²
4 bedroom detached house for sale in Military Way, Dovercourt, Harwich, CO12 — £370,000 • 4 bed • 2 bath • 953 ft²
4 bedroom detached house for sale in Wick Lane, Harwich, Essex, CO12 — £525,000 • 4 bed • 2 bath • 1481 ft²
4 bedroom detached house for sale in Highfield Avenue, Harwich, Essex-, CO12 — £575,000 • 4 bed • 3 bath • 1217 ft²
3 bedroom detached house for sale in Main Road, Harwich, CO12 — £290,000 • 3 bed • 1 bath • 965 ft²


























































































































