**Standout Features:**
- Converted traditional stone barn with rustic charm
- Two holiday cottages (2 and 3 bedrooms) with income potential
- Located in the picturesque coastal village of Roch, near Pembrokeshire's stunning coastline
- Communal courtyard and a private garden to Meadow Barn
- Off-street parking and excellent mobile signal & fast broadband
**Potential Concerns:**
- Limited occupancy on holiday cottages
- Structural maintenance may be required
**Property Summary:**
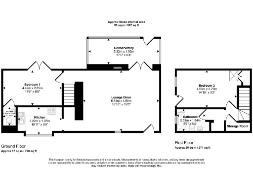
Seize this rare opportunity to own a beautifully converted barn, accompanied by two holiday cottages, nestled in the charming coastal village of Roch. Perfect for families or investors, Meadow Barn features two spacious bedrooms with en-suite options, an open-plan living area, and a garden offering a peaceful retreat. The additional two cottages present an ideal revenue-generating venture, showcasing thoughtful layouts and good decorative order, ready for immediate rental or personal use.
This property exudes character with exposed stone walls and vaulted ceilings, complemented by modern conveniences like double glazing and off-street parking. Located just a stone's throw from the stunning Newgale beach and vibrant community amenities, including a primary school and bus services to Haverfordwest, it truly offers a slice of coastal life with plenty of room for your business ambitions or family gatherings. Don’t miss out on this unique property—opportunities like this in such a desirable locale are rarely available!
2 bedroom barn conversion for sale in Trefin, Haverfordwest, Pembrokeshire, SA62 — £350,000 • 2 bed • 2 bath
12 bedroom detached house for sale in Rosemarket, Milford Haven, Pembrokeshire, SA73 — £900,000 • 12 bed • 8 bath
3 bedroom barn conversion for sale in Mathry, Haverfordwest, SA62 — £685,000 • 3 bed • 1 bath • 2093 ft²
4 bedroom semi-detached house for sale in Llanferran Farm, Rhodiad, St Davids, SA62 — £450,000 • 4 bed • 2 bath • 1002 ft²
3 bedroom barn conversion for sale in Mathry, Haverfordwest, SA62 — £365,000 • 3 bed • 2 bath • 1098 ft²
6 bedroom barn conversion for sale in Crundale, Haverfordwest, Pembrokeshire, SA62 — £675,000 • 6 bed • 5 bath • 3182 ft²


























































































































































