Tucked semi-rural plot with full planning and strong privacy for builders.
Full planning permission for detached three-bed house (Application No. 232413).
Mature specimen trees provide strong privacy and screening.
Site overgrown; requires clearance, levelling and arboricultural checks.
Mains water, gas and electricity available nearby but likely not connected.
Planning valid for three years from 9 Oct 2023; confirm timelines.
Management Company exists; communal charges may apply.
Broadband speeds very slow; mobile signal excellent.
Site described as small in records despite 2,075 sq ft house plan.
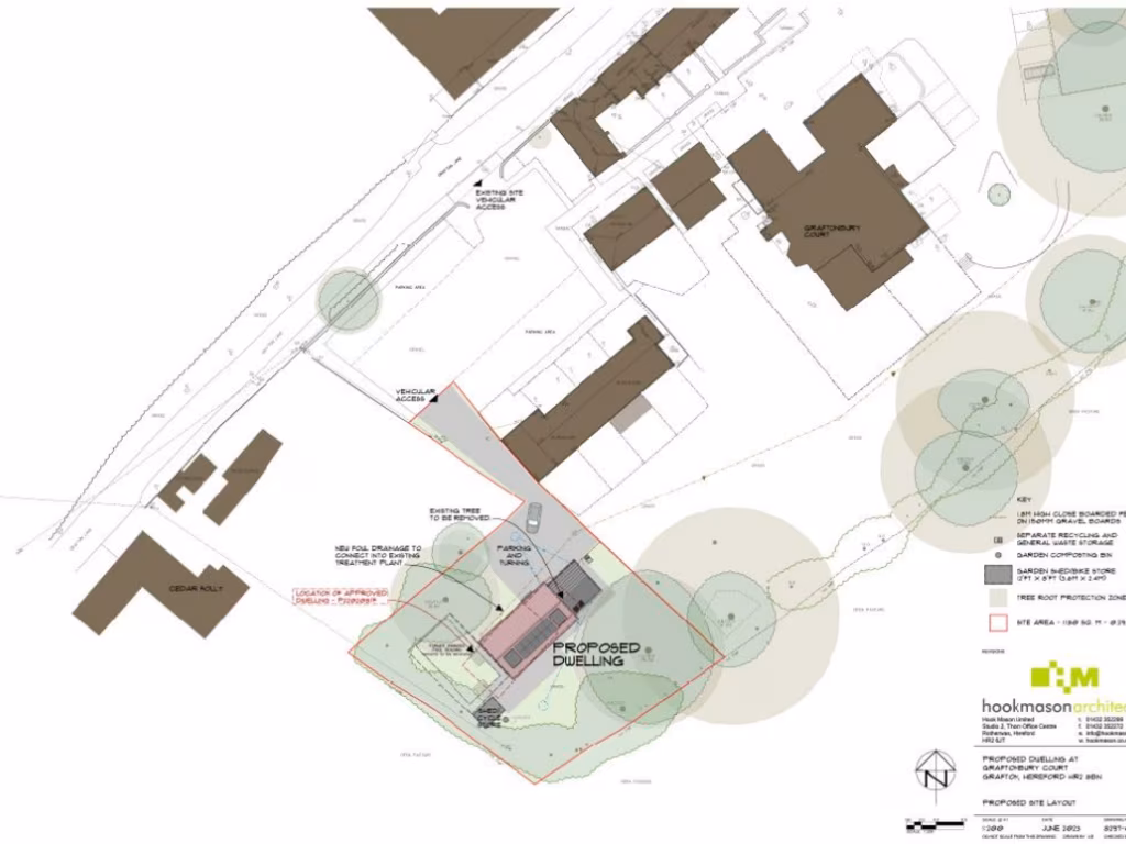
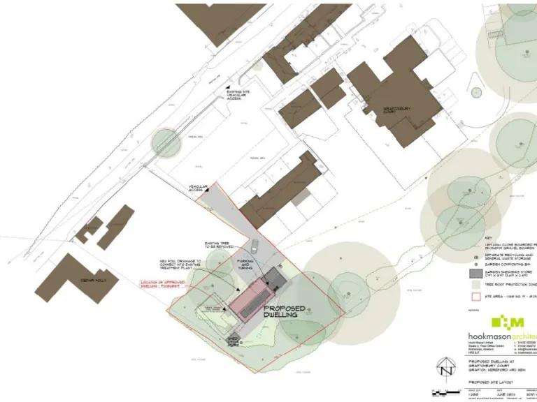
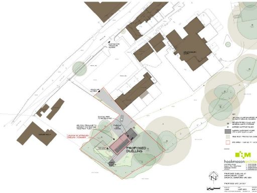
A freehold building plot with full planning permission for a detached three-bedroom house, located in a tucked-away, semi-rural spot a couple of miles south of Hereford. The approved scheme provides about 2,075 sq ft of accommodation over two floors, with generous reception rooms and three double bedrooms. This is a straightforward opportunity for a buyer or small developer wanting to build a substantial family home in a private, treed setting.
The site is enclosed by mature specimen trees and dense hedging that give strong privacy and screening. Ground is mostly level but presently overgrown in places; photos and the site description note bramble, root debris and an old polytunnel/greenhouse that will require clearance. Mains water, gas and electricity are available nearby but not confirmed as connected — a services check and topographical survey are advisable before work begins.
Practical points to note: full planning permission was granted on 9 Oct 2023 (Application No. 232413) and is valid for three years. A Management Company exists with associated communal charges for shared areas and services. Broadband speeds in the area are reported as very slow, and the site is described in some records as a small plot despite the approved house size, so confirm plot dimensions and any arboricultural constraints early.
Overall, this plot suits buyers wanting privacy and mature planting who are prepared to budget for site clearance, surveys, and connection of services. It represents a clear development opportunity close to Hereford, with good local schools and road access to nearby towns.
Plot for sale in Grafton Lane, Grafton, Hereford, HR2 — £150,000 • 1 bed • 1 bath • 2319 ft²
Land for sale in Graftonbury Lane, Herefordshire, HR2 — £99,000 • 1 bed • 1 bath • 1200 ft²
Land for sale in The Mews Plot, Graftonbury, Hereford, HR2 — £135,000 • 1 bed • 1 bath
Plot for sale in Ruckhall, Nr Eaton Bishop, Hereford, HR2 — £180,000 • 1 bed • 1 bath
Plot for sale in Church Way, Holmer, Hereford, HR1 — £225,000 • 4 bed • 2 bath
Plot for sale in Harewood End, Hereford, HR2 — £300,000 • 1 bed • 1 bath


























