Quiet riverside setting with generous garden and practical layout.
Two-bedroom period terraced cottage with ground-floor extension
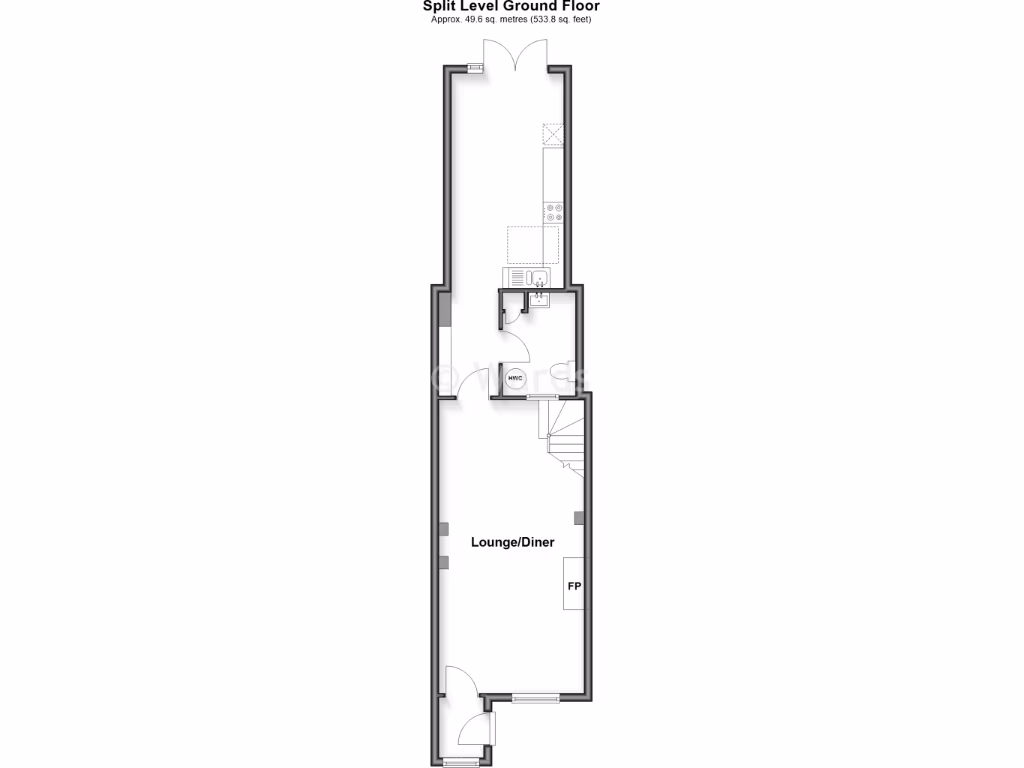
This well-presented two-bedroom terraced cottage sits on Pilgrims Way, set against open countryside and riverside walks. The ground-floor extension creates a generous lounge/diner and separate kitchen/diner, while a cloakroom downstairs and shower room upstairs add practical convenience. A sizable rear garden and pleasant country views extend the living space outdoors.
The property is offered freehold and is suitable as a retirement home. A Home for Life Lifetime Lease example price is shown at £208,500 (guide based on an average saving); the full market price is £315,000. The actual Lifetime Lease cost varies by age, personal circumstances and the percentage of the property you choose to secure — this plan is available only to buyers aged 60 or over.
Practical considerations: the house uses LPG-fired central heating and has double glazing of unknown age. Cavity walls are uninsulated (assumed), so loft or wall insulation upgrades could improve comfort and running costs. Broadband speeds are very slow here, although mobile signal is excellent. The chimney and some outdoor areas require routine maintenance.
Overall, the home offers quiet, rural living with good local schools nearby and low crime, making it an appealing option for downsizers seeking countryside access. Buyers wanting faster internet, improved fabric insulation or cosmetic updates should factor those works into their plans.
2 bedroom terraced house for sale in Tutsham Farm, West Farleigh, Maidstone, Kent, ME15 — £330,000 • 2 bed • 2 bath • 868 ft²
2 bedroom end of terrace house for sale in The Tideway, Rochester, Kent, ME1 — £198,500 • 2 bed • 2 bath • 492 ft²
3 bedroom terraced house for sale in High Street, Wouldham, Rochester, Kent, ME1 — £215,000 • 3 bed • 1 bath • 551 ft²
3 bedroom end of terrace house for sale in Tram Way, Wouldham, Rochester, Kent, ME1 — £281,000 • 3 bed • 2 bath • 807 ft²
2 bedroom terraced house for sale in Chillington Close, Upper Halling, Rochester, Kent, ME2 — £185,500 • 2 bed • 1 bath • 614 ft²
2 bedroom terraced house for sale in Wainscott, Wainscott, Rochester, Kent, ME3 — £192,000 • 2 bed • 1 bath • 657 ft²














































