Well-positioned starter home with garage and generous versatile living space.
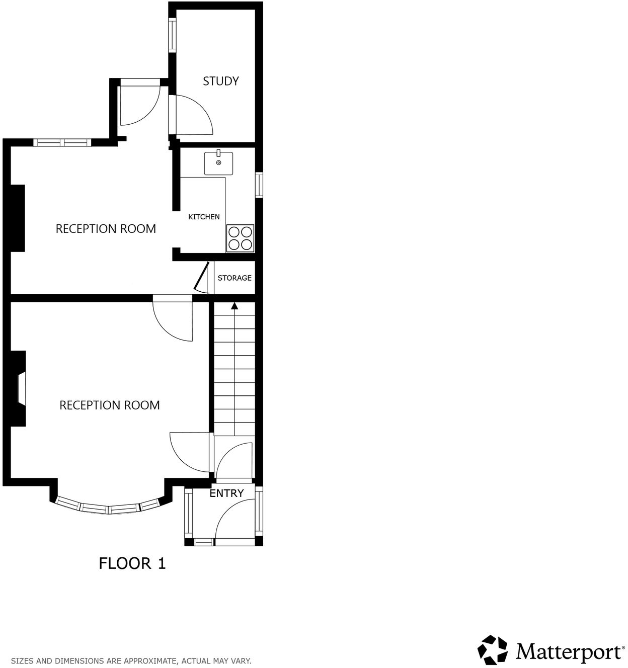
Two reception rooms plus ground-floor study for flexible living
Off-road parking for two cars and detached garage
Front and rear gardens with scope for landscaping or extension
Two bedrooms and one bathroom — compact upstairs layout
EPC rating E — likely requires energy-efficiency improvements
Freehold tenure; council tax described as low/cheap
Fast broadband and excellent mobile signal for remote working
Located near good primary school and village amenities
This well-situated two-bedroom semi-detached house on Uppingham Road offers practical family living in a quiet, affluent village setting. The ground floor layout includes two reception rooms, a separate study and a fitted kitchen, giving flexible space for a couple or small family. Off-road parking for at least two cars plus a detached garage adds useful storage and convenience.
Upstairs are two bedrooms and a single bathroom — a straightforward layout that suits everyday life but may feel compact for growing families. The property benefits from double glazing, mains gas central heating with a boiler and radiators, fast broadband and excellent mobile signal, all helpful for modern working and schooling needs. Local schools are within easy reach and village amenities, buses to Leicester and surrounding countryside are close by.
The house sits on a decent plot with front and rear gardens that offer potential for landscaping or small extensions (subject to planning). The Energy Performance Certificate is rated E, so prospective buyers should budget for insulation or heating improvements if energy efficiency is a priority. Overall, this freehold home is best suited to first-time buyers, downsizers or those seeking a manageable family home with parking and a garage in a very affluent, low-crime area.
3 bedroom semi-detached house for sale in Uppingham Road, Houghton on the Hill, Leicestershire, LE7 — £275,000 • 3 bed • 2 bath • 961 ft²
3 bedroom semi-detached house for sale in Uppingham Road, Houghton-On-The-Hill, LE7 — £375,000 • 3 bed • 1 bath • 941 ft²
4 bedroom detached house for sale in Forsells End, Houghton-On-The-Hill, Leicester, LE7 — £525,000 • 4 bed • 1 bath • 1743 ft²
4 bedroom end of terrace house for sale in Field Close, Houghton-on-the-Hill, Leicester, Leicestershire, LE7 — £290,000 • 4 bed • 1 bath • 1119 ft²
4 bedroom link detached house for sale in St. Catharines Way, Houghton-On-The-Hill, Leicester, LE7 — £405,000 • 4 bed • 1 bath • 1076 ft²
4 bedroom detached house for sale in Firs Road, Houghton-on-the-hill, Leicester, LE7 — £575,000 • 4 bed • 3 bath • 2721 ft²


















































































