**Standout Features:**
- Grade II listed traditional cottage with period features
- Breathtaking views over Winster Valley
- Detached garage with conversion potential
- Insulated summerhouse, ideal as an office or hobby room
- Expansive gardens with effective use of outdoor space
- Excellent mobile signal and fast broadband
**Concerns:**
- Listed status may complicate renovations
- Average energy rating of “F” may need attention
- Requires shared private drainage and water systems
**Summary:**
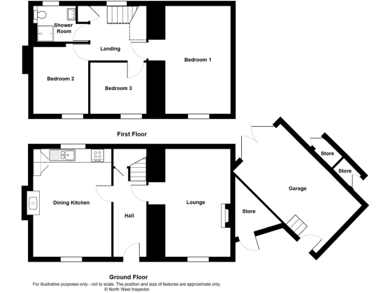
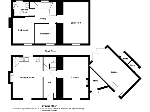
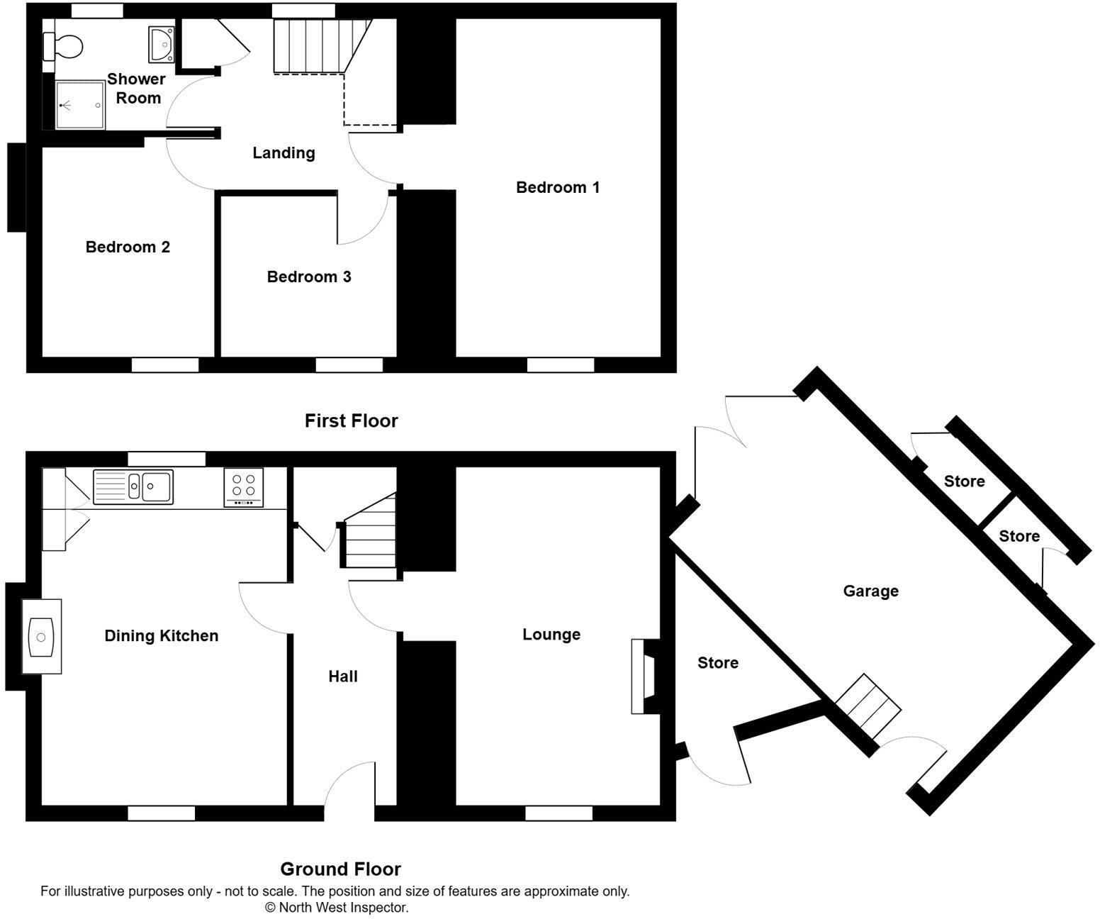
Discover "High Ludderburn," a beautifully presented Grade II listed cottage nestled amidst the tranquil landscapes of the Lake District. This unique property features traditional charm with its stone construction, oak latch doors, and stone-flagged flooring, creating an inviting and comfortable living atmosphere. With three spacious bedrooms, a generous living area, and a well-equipped kitchen, it's perfect for family life or as a peaceful retreat. The expansive gardens and an enchanting orchard providing serene views over the iconic Winster Valley elevate outdoor enjoyment, perfect for nature lovers.
Highlights of the property include a detached garage holding conversion potential, along with a fully insulated summerhouse that offers flexibility as a home office or creative space. With ample parking for four vehicles, this home combines rural charm with practical living. While its Grade II listed status adds character, it also means any renovations may require careful consideration. Though the property’s energy rating of “F” suggests opportunities for improvement, its location within the National Park guarantees exclusivity and captivating surroundings. Don't miss this rare opportunity to embrace a tranquil lifestyle in a quintessential Lake District setting!
5 bedroom detached house for sale in Kentmere, Kendal, Cumbria, LA8 — £850,000 • 5 bed • 3 bath • 2618 ft²
3 bedroom detached house for sale in Old Breasty Haw, Satterthwaite, Ulverston, LA12 8LS, LA12 — £775,000 • 3 bed • 3 bath • 1619 ft²
4 bedroom detached house for sale in The Crosses, Windermere, Cumbria, LA23 1JU, LA23 — £1,327,500 • 4 bed • 3 bath • 1962 ft²
3 bedroom cottage for sale in Maltkiln Cottages, Grizebeck, Kirkby-in-Furness, LA17 — £385,000 • 3 bed • 2 bath • 2316 ft²
6 bedroom detached house for sale in Sawrey Ground and Cottage, Hawkshead Hill, Hawkshead, Cumbria, LA22 0PP, LA22 — £1,150,000 • 6 bed • 5 bath • 2394 ft²
2 bedroom terraced house for sale in Watermillock, Penrith, CA11 — £430,000 • 2 bed • 1 bath • 829 ft²






















































































































