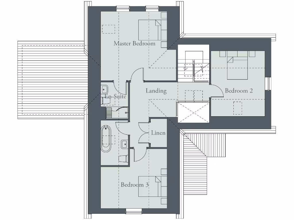
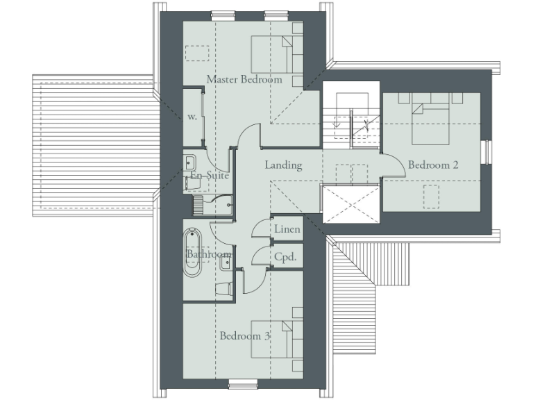
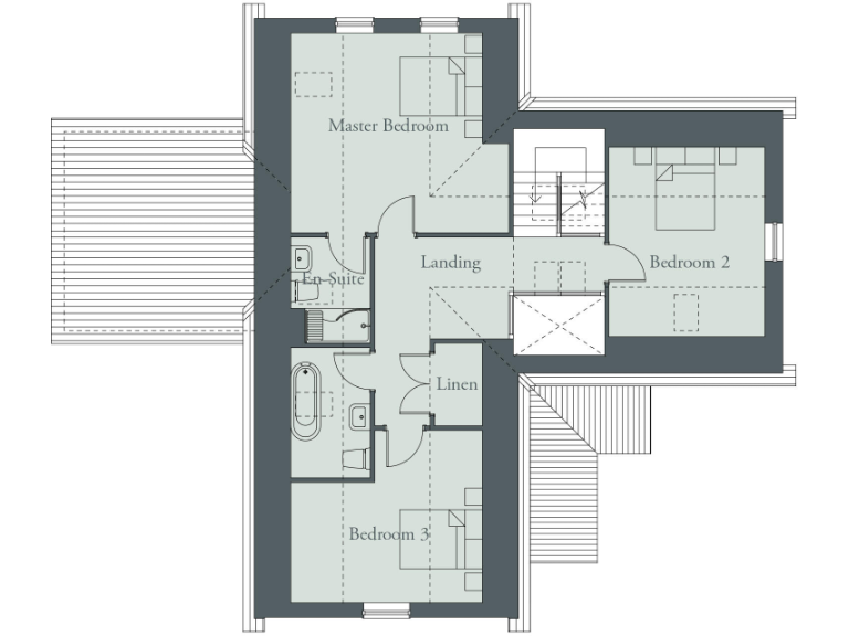
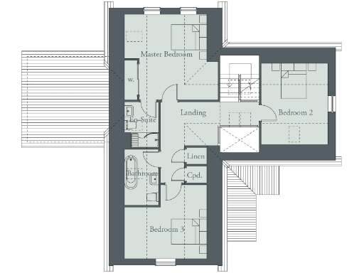
New-build detached family home with four bedrooms and three bathrooms
Designed for family life and finished to a high specification, this architect-designed detached home sits in a small cluster of houses in rural Aberdeenshire. The ground floor's open-plan kitchen, sitting and dining area flows through to a vaulted garden room with doors onto a sheltered patio and generous lawn — ideal for everyday family use and entertaining. A snug provides a quiet home office or playroom. There are three reception rooms in total and four well-proportioned bedrooms, including a ground-floor double and a master with ensuite.
Built with energy efficiency in mind, the house features an air-source heat pump, mechanical ventilation with heat recovery (MVHR) and integrated solar panels; the property achieves an EPC Band B. The contemporary specification includes Laing’s of Inverurie kitchens and bathrooms, large windows that maximise natural light and countryside views, and a mix of stone, slate, render and larch cladding that complements the setting.
Practical advantages include a private driveway with ample off-street parking and scope to add a single garage, a utility and plant room, and generous garden grounds that are sheltered and private. The secluded location delivers tranquillity and open views while Inverurie is about seven miles away for shopping, schools and services.
Buyers should note material practicalities: the property uses private water and a septic tank drainage system; broadband speeds are reported as very slow despite excellent mobile signal. The immediate area is described as remoter and the wider locality classed as very deprived, which may affect local services and resale considerations.
4 bedroom detached house for sale in Cuthbertson Walk
Bucksburn
Aberdeen
AB21 9HG, AB21 — £359,995 • 4 bed • 1 bath • 1156 ft²
4 bedroom detached house for sale in The Croft Plot 10 South Ythsie, Aberdeen, AB41 7LS, AB41 — £450,000 • 4 bed • 2 bath
4 bedroom detached house for sale in Auchnavaird, Ellon, AB41 — £425,000 • 4 bed • 3 bath • 2131 ft²
5 bedroom detached house for sale in Schivas View, Ythanbank, AB41 — £445,000 • 5 bed • 4 bath • 2573 ft²
4 bedroom detached house for sale in 7 Bruntwood Tap, Inverurie, Aberdeenshire, AB51 4LS, AB51 — £399,000 • 4 bed • 4 bath • 1894 ft²
5 bedroom detached house for sale in 3 Glebe Park, Oldmeldrum, Inverurie, Aberdeenshire, AB51 0ZX, AB51 — £585,000 • 5 bed • 3 bath • 2680 ft²














































































