RG14 1JL - Land for sale in Elizabeth House, 1319 London Road, Newbury…

View on Property Piper

Land for sale in Elizabeth House, 13-19 London Road, Newbury, Berkshire, RG14 1JL, RG14

Summary - ELIZABETH HOUSE, 13-19, LONDON ROAD RG14 1JL

1 bed 1 bath Land

**Standout Features:**
- Large commercial office building spanning four floors.
- Newly renovated with modern finishes and excellent natural light.
- 21 designated off-street parking spaces.
- Prime location near major transportation routes and retail centers.
- Flexible open-plan layout with potential for office customization.
- High-quality amenities including air conditioning and LED lighting.

**Potential Concerns:**
- Primarily urban views with no exceptional scenic outlooks.
- Located in an area with high crime rates.

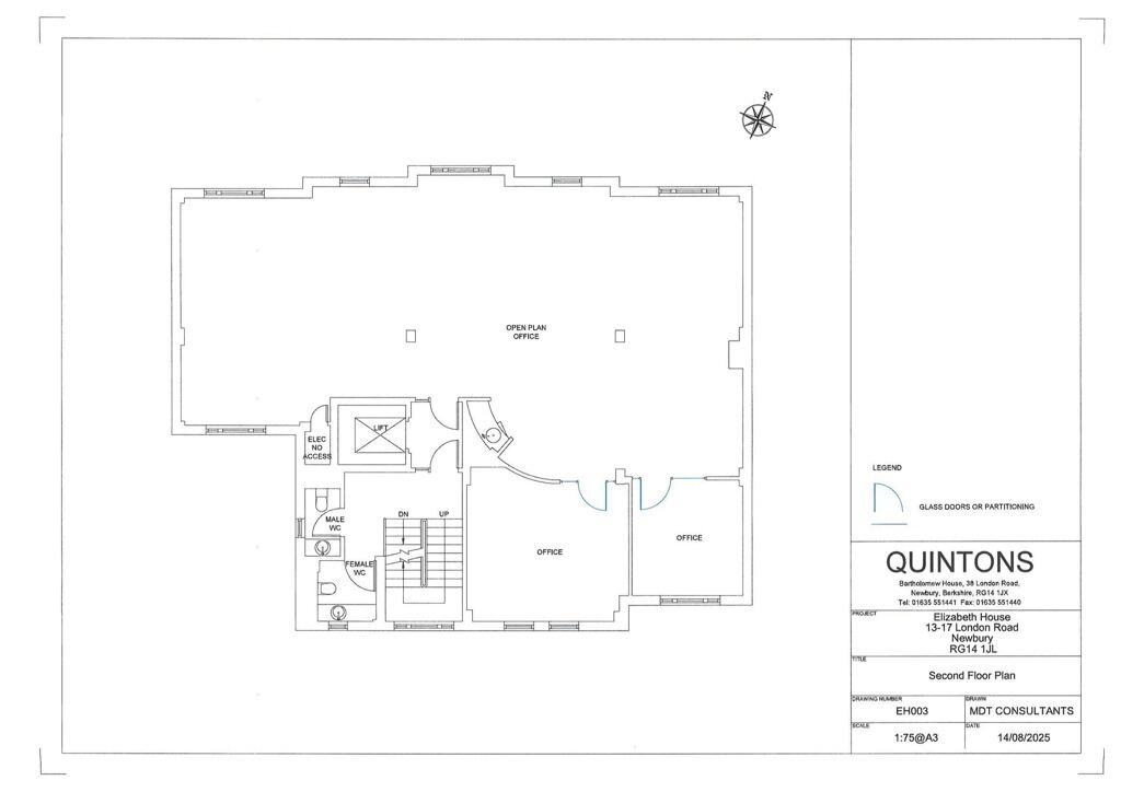
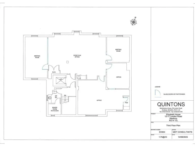
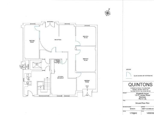
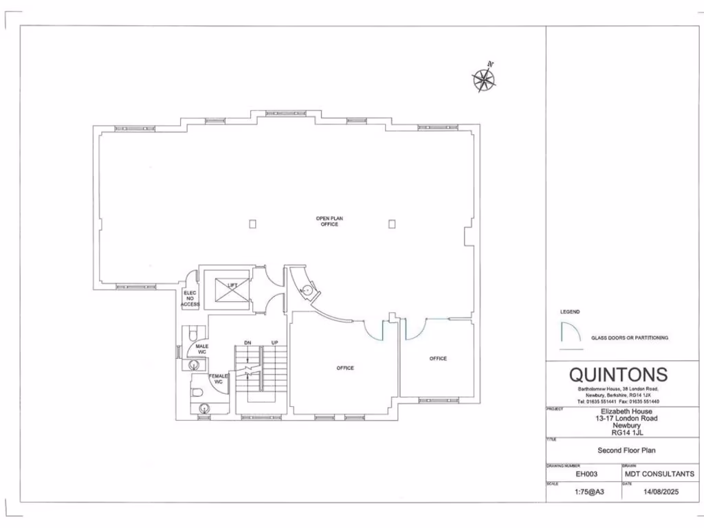
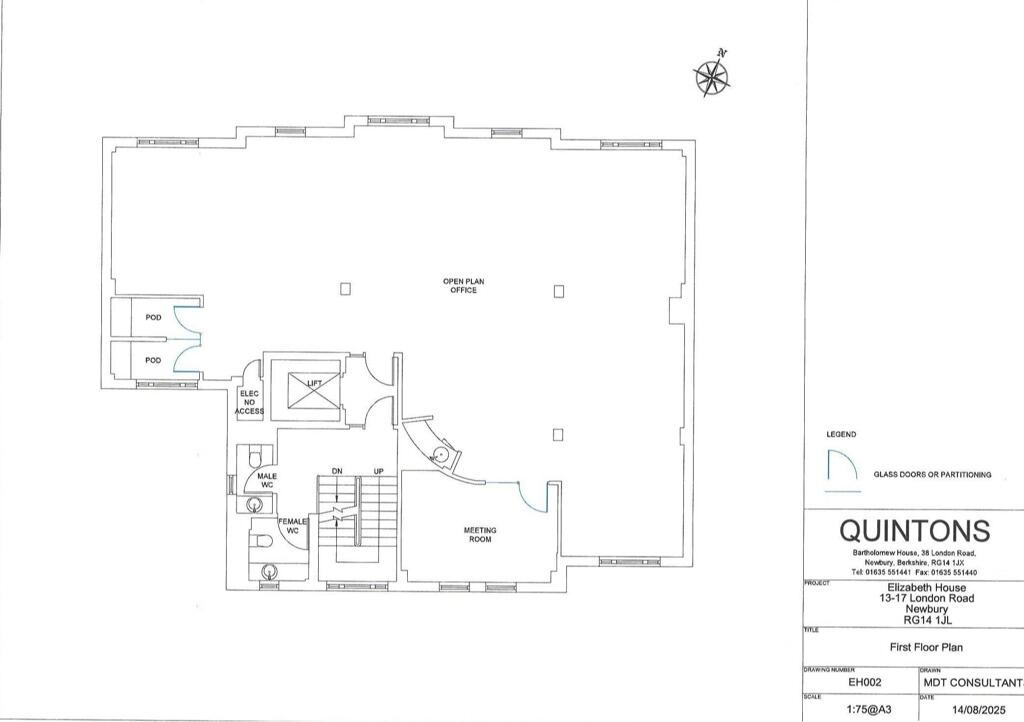
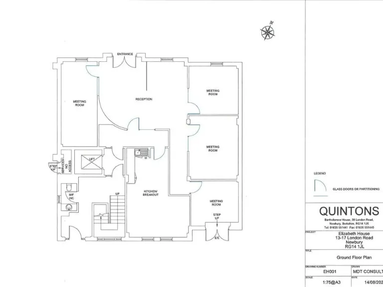
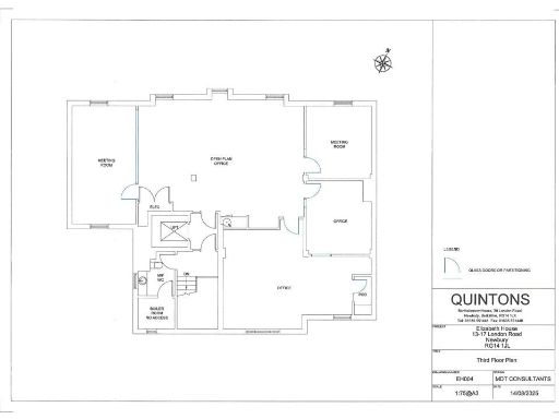
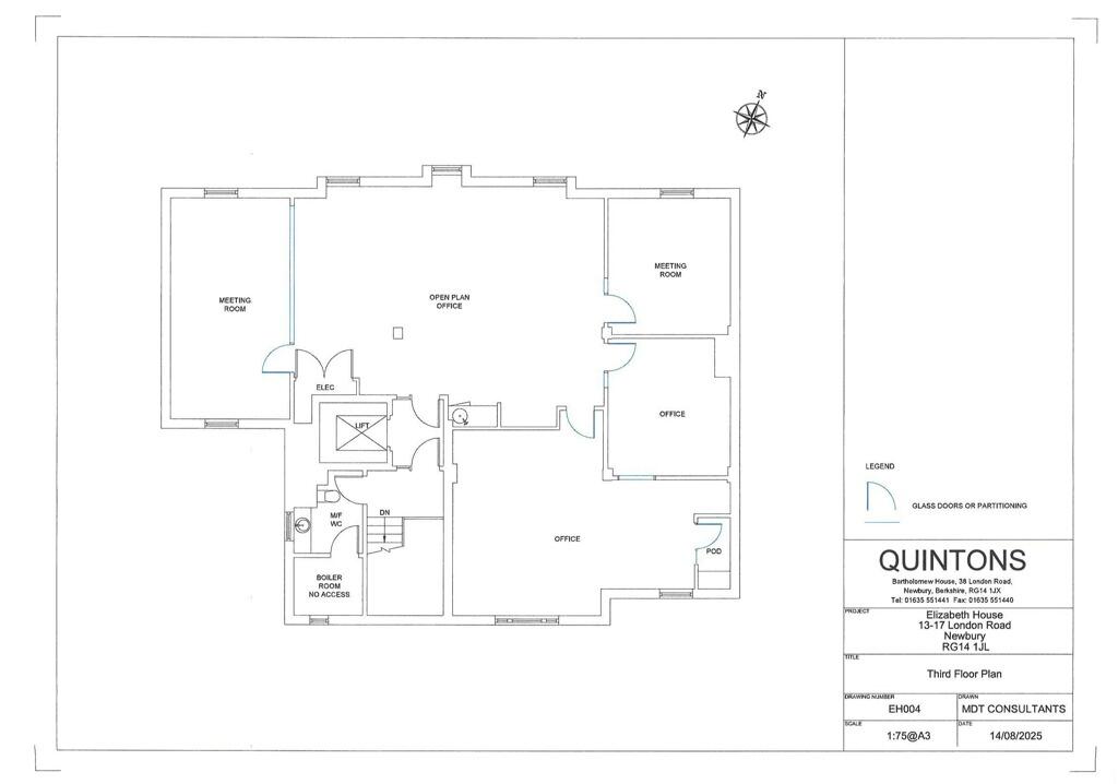
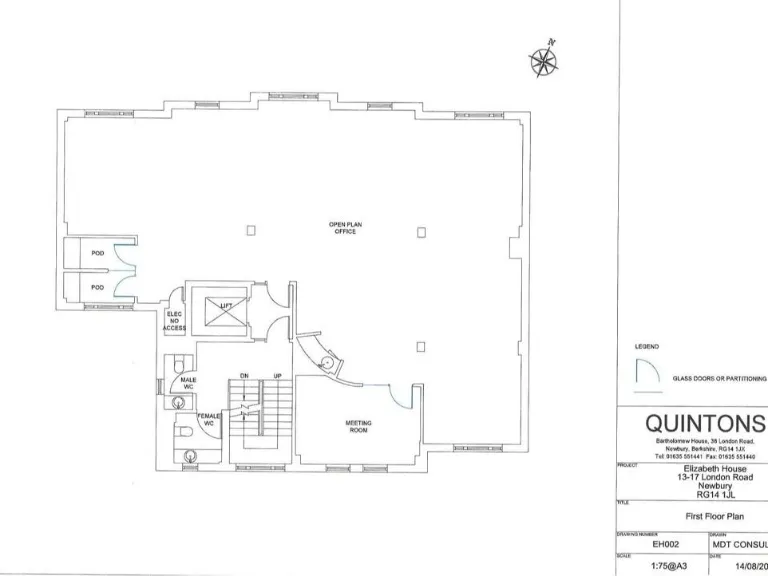
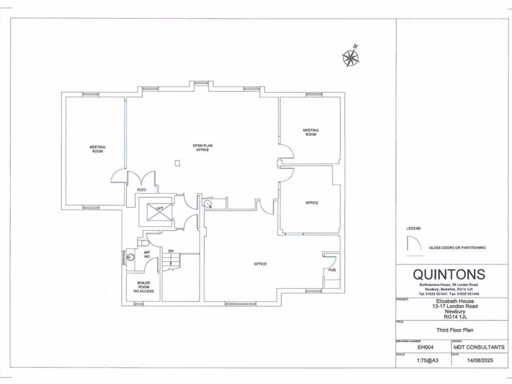
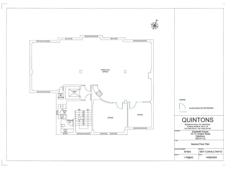
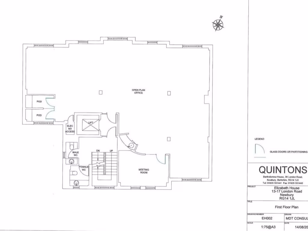
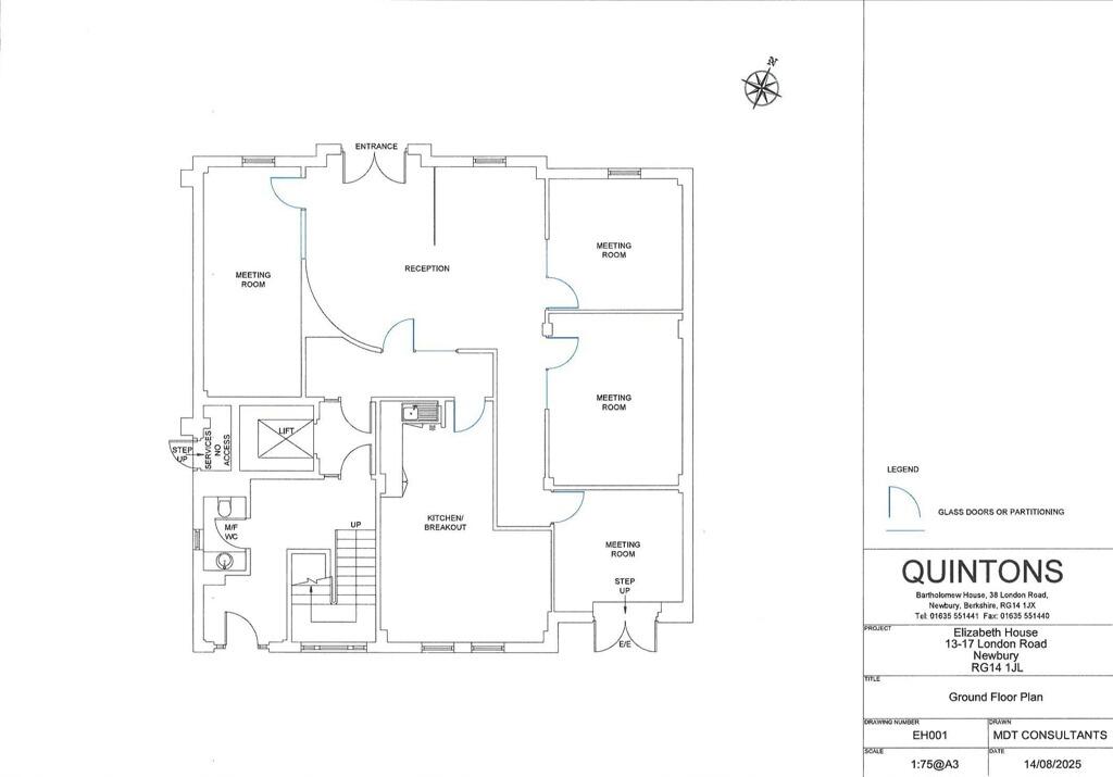
Discover Elizabeth House, an expansive, newly renovated commercial property in the heart of Newbury. Spanning four floors and offering a generous total area of 6,567 square feet, this self-contained office space features an open-plan layout flooded with natural light and versatile zones, including private meeting rooms and director's offices. Situated close to the A4/A339 intersection, this prime location provides easy access to the main railway station and popular retail centers like Parkway and Northbrook Street.

Equipped with modern amenities—air conditioning, LED lighting, and high-quality washrooms—this office space is ideal for mid to large organizations seeking a contemporary work environment. With 21 dedicated parking spaces, convenience is maximized for both employees and clients. While the surrounding area offers vibrant urban amenities, be aware of the higher crime rate in the vicinity. This opportunity to acquire a spacious office in a bustling area won't last long, providing a unique chance for investors or businesses aiming for growth and visibility in Newbury.

Property Details

Brochure Descriptions

Image Descriptions

Textual Property Features

Detected Visual Features

Nearby Schools

Nearest Bars And Restaurants

,,,,}

Nearest General Shops

,,}

Nearest Grocery shops

,,}

Nearest Supermarkets

,,}

Nearest Religious buildings

,,}

Nearest Medical buildings

,,,}

Nearest Leisure Facilities

,,,,}

Nearest Tourist attractions

,,}

Nearest Train stations

,,,,}

Nearest Bus stations and stops

,,,,}

Nearest Hotels

,,}

Tags

Local Market Stats

AirBnB Data

Similar Properties

Meta

High Res Images

Compatible Images

Low res Images

Thumbnails

Raw Images