Large three‑floor office block with 20 parking spaces in central Newbury..
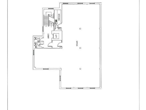
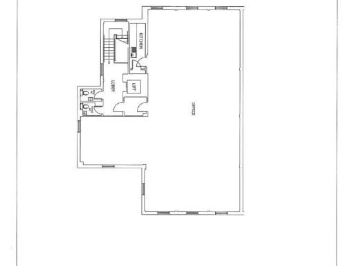
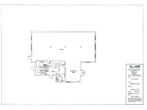
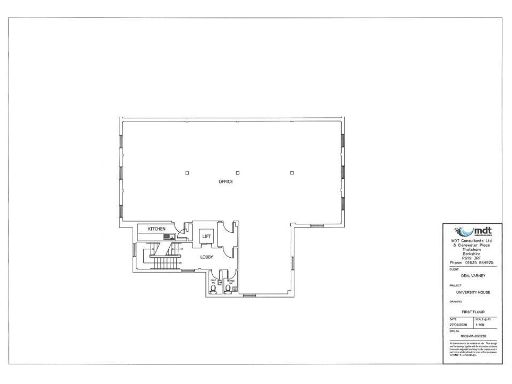
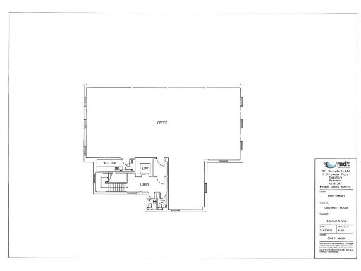
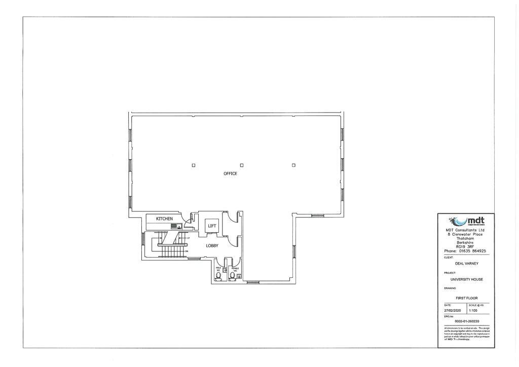
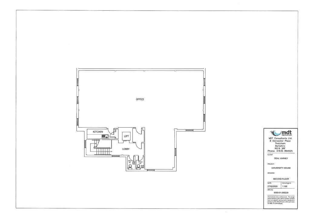
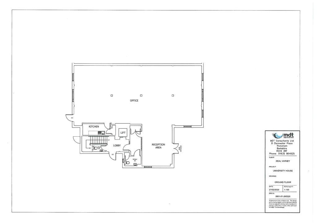
Substantial office block — 5,698 sq ft over three floors
Prominent corner position at Oxford Square, good natural light
Fully serviced: air-con, gas heating, raised floors, suspended ceilings
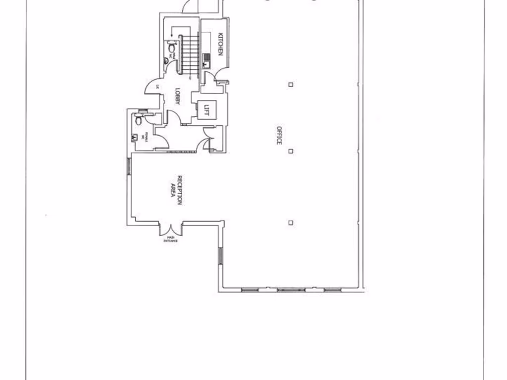
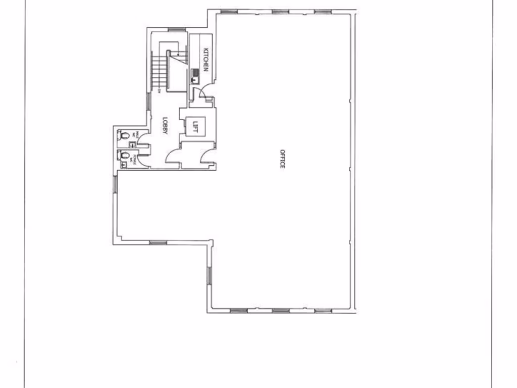
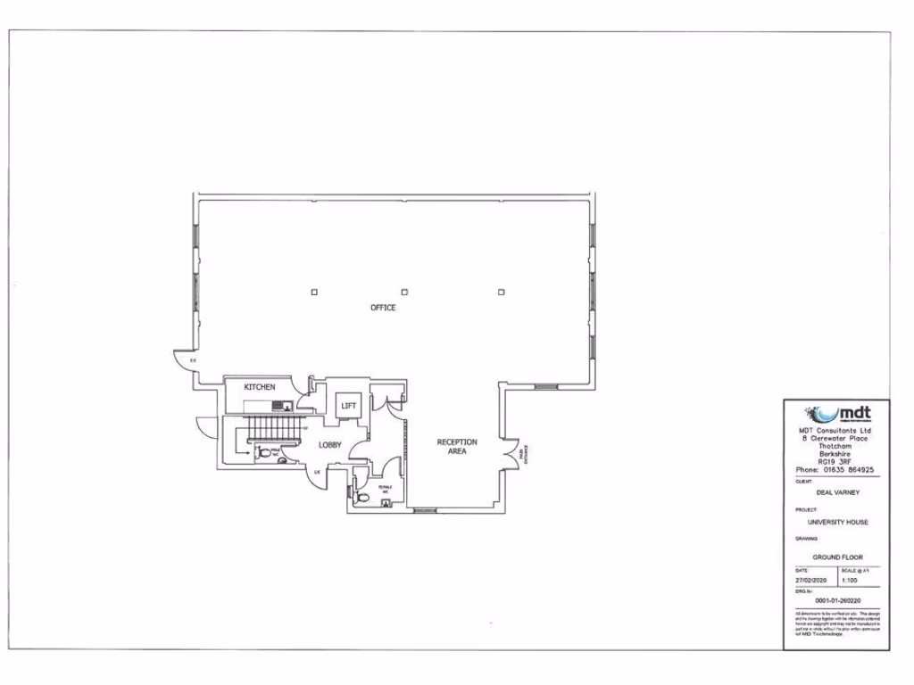
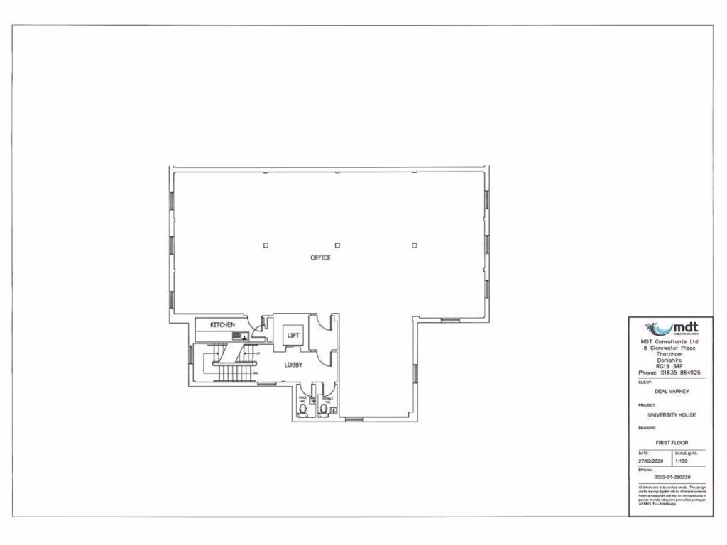
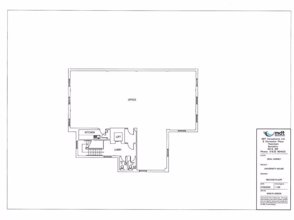
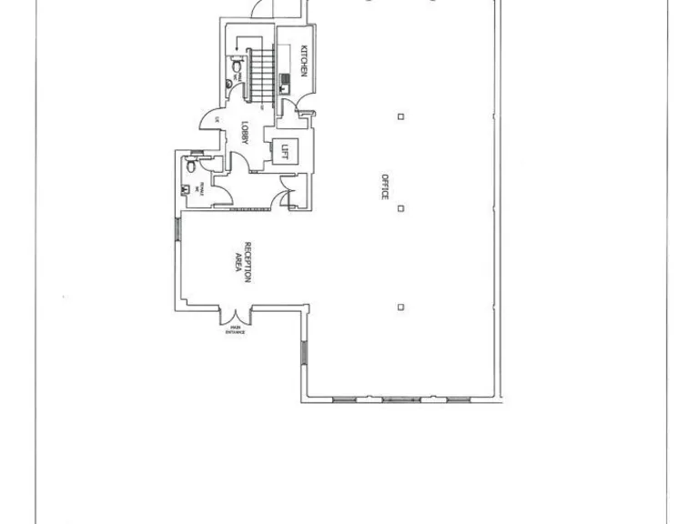
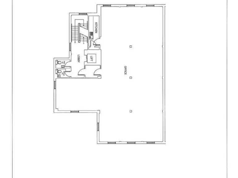
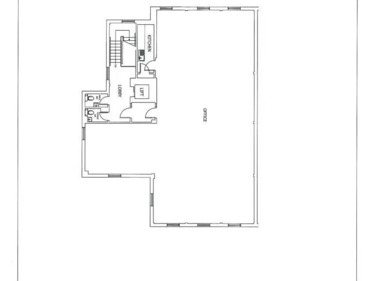
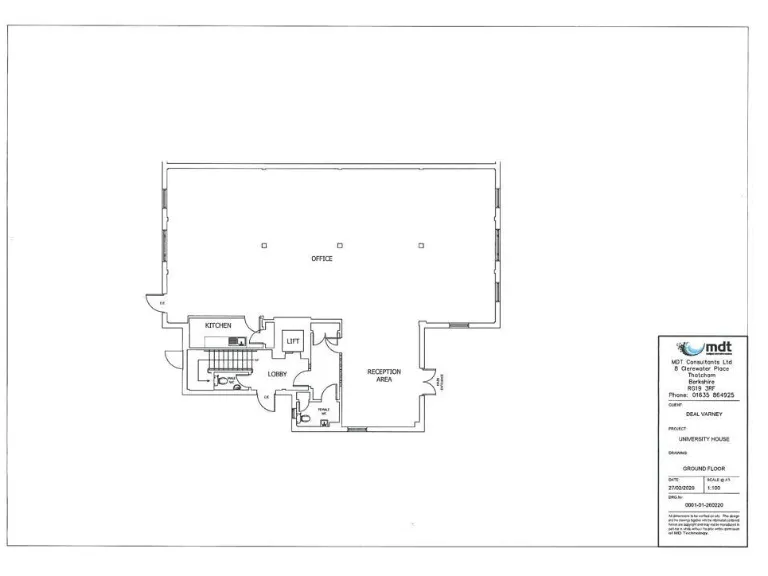
Eight-person passenger lift and LED lighting throughout
20 car parking spaces in adjacent multi-storey car park
Tenure unknown — buyer must verify lease/title details
Area records higher crime levels — consider security implications
Offered at £1,100,000; allow budget for refurbishment/updates
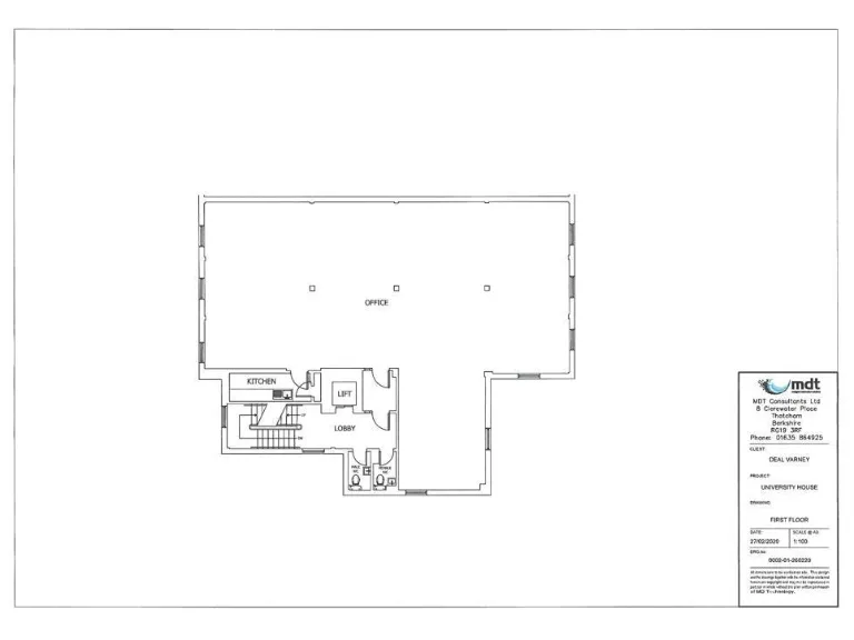
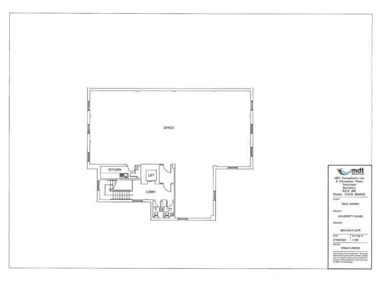
University House is a substantial modern office building arranged over three floors, offering a net internal area of 5,698 sq ft in a prominent corner position at Oxford Square, Newbury. The property is fitted for immediate commercial use with air-conditioning, gas-fired central heating, full access raised floors, suspended ceilings, LED lighting and an eight-person passenger lift. Twenty car parking spaces are available in the adjacent multi-storey car park.
This asset suits investors or developers seeking a well-specified office block in a town-centre location with good transport links and nearby retail amenities. The building’s layout and services reduce initial capital expenditure for continued office use, while the size and position present potential for reconfiguration or repositioning subject to planning and lease considerations.
Notable cautions are factual and important: tenure details are unknown and should be clarified; the area records higher-than-average crime levels, which could affect occupier demand or security costs; and the property will likely need routine refurbishment over time to maintain market appeal. Flood risk is low. Pricing at £1,100,000 reflects the asset’s scale and central location but buyers should allow for due diligence on tenancy, service arrangements and any remedial or upgrade works.
Property for sale in Oxford Square, Oxford Square, Oxford Street, Newbury, Berkshire, RG14 1JQ, RG14 — £4,500,000 • 1 bed • 1 bath • 28368 ft²
Land for sale in Elizabeth House, 13-19 London Road, Newbury, Berkshire, RG14 1JL, RG14 — £1,000,000 • 1 bed • 1 bath • 6567 ft²
Land for sale in 5 Wharf Street, Newbury, Berkshire, RG14 5AN, RG14 — £375,000 • 1 bed • 1 bath • 2393 ft²
5 bedroom detached house for sale in Northbrook Street, Newbury, Berkshire, RG14 — £950,000 • 5 bed • 5 bath • 3198 ft²
Property for sale in 17 Cheap Street, Newbury, Berkshire, RG14 5DD, RG14 — £300,000 • 1 bed • 1 bath • 1812 ft²
Office for sale in Astor House, Newbury Business Park, London Road, Newbury, RG14 2PZ, RG14 — POA • 1 bed • 1 bath • 18000 ft²






















































