Freshly renovated with efficient heating and a low-maintenance garden for family living.
Newly renovated throughout and ready to move into
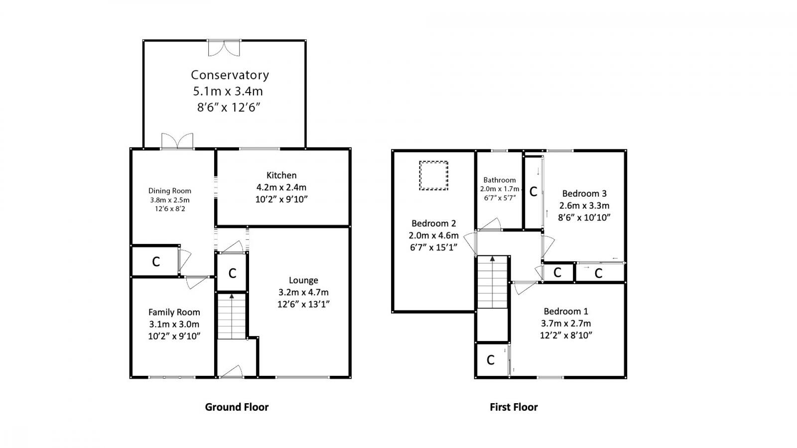
This newly renovated three-bedroom semi-detached villa is presented in turnkey condition and suits a family seeking move-in-ready accommodation. The interior benefits from a bright living room with a full-length bay window, an extended ground-floor space currently used as a family/TV room, and a light-filled conservatory overlooking a low-maintenance rear garden.
The kitchen is fitted with contemporary cabinetry and integrated appliances and connects directly to the conservatory, creating a practical social hub. Upstairs are three well-presented bedrooms and a modern tiled family shower room. Recent upgrades include fresh neutral décor, improved storage and an air source heat pump central heating system for greater efficiency.
Externally the property offers off-street parking on a driveway and a private enclosed garden designed for minimal upkeep. Transport links are a practical strength, with easy access to the M74 and M8 and local bus and rail connections, plus nearby amenities and schools.
Notable drawbacks are factual: the property sits within an area classified as very deprived, the tenure is not specified, and there is only one bathroom serving three bedrooms. Council tax is described as moderate. These points should be considered alongside the home’s strong renovation and efficiency upgrades when assessing suitability.
3 bedroom semi-detached house for sale in Garfield Avenue, Bellshill, ML4 — £175,000 • 3 bed • 1 bath • 850 ft²
3 bedroom terraced house for sale in Milnwood Drive, Bellshill, ML4 — £140,000 • 3 bed • 1 bath • 936 ft²
3 bedroom terraced house for sale in Quarryknowe Place, Bellshill, ML4 — £140,000 • 3 bed • 1 bath • 893 ft²
3 bedroom semi-detached house for sale in Ravenscraig Court, Bellshill, ML4 — £199,995 • 3 bed • 1 bath • 665 ft²
3 bedroom semi-detached house for sale in Telford Terrace, The Murray, East Kilbride, South Lanarkshire, G75 — £190,000 • 3 bed • 1 bath • 990 ft²
4 bedroom detached house for sale in Highwood Gardens, Bellshill, ML4 — £265,000 • 4 bed • 2 bath • 1292 ft²






















































































