Quiet court setting with garden and driveway, ideal for growing households.
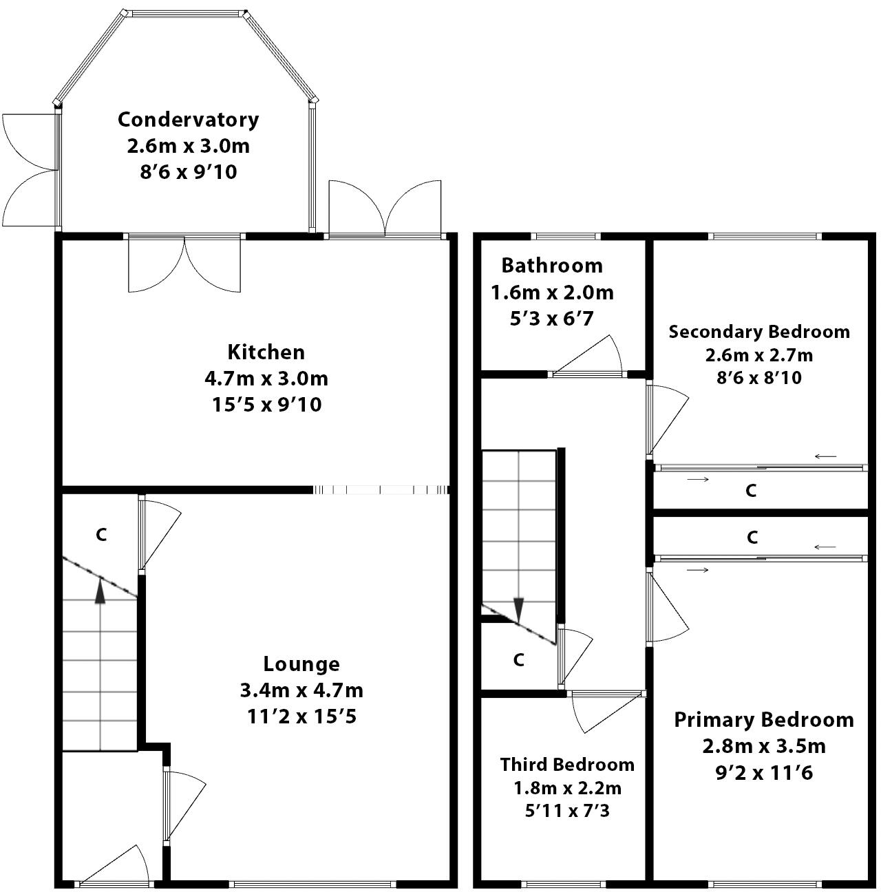
- Three bedrooms within approximately 665 sq ft
- Low-maintenance enclosed rear garden with raised decking
- Off-street driveway parking and double glazing
- Excellent mobile signal and fast broadband
- Single family bathroom only
- Small overall size may suit downsizers or small families
- Wider area classified as very deprived — consider resale/rental implications
- Tenure unknown; buyer should verify ownership details
Tucked away on Ravenscraig Court, this three-bedroom semi-detached house offers compact, practical living across approximately 665 sq ft. The living room and kitchen/dining areas are light-filled, with French doors opening to a low-maintenance rear garden and a conservatory currently used as a dining space.
Practical features include off-street parking, gas central heating and double glazing, plus excellent mobile signal and fast broadband — useful for remote working or streaming. Two of the upstairs bedrooms have fitted wardrobes; the single family bathroom serves all three bedrooms.
Buyers should note the property’s small overall size and single bathroom, which may feel limiting for larger families. The wider area is classified as very deprived; local services are present but social and economic challenges in the locality may influence long-term resale or rental prospects. Tenure is not specified — purchasers should confirm ownership status and any associated fees before progressing.
This home suits buyers seeking a well-located, low‑upkeep property with straightforward living spaces and outside parking. It presents immediate move-in potential with modest scope to personalise, or could interest investors looking for a manageable three-bedroom in Bellshill, subject to local market considerations.
3 bedroom semi-detached house for sale in Argyll Place, Bellshill, ML4 — £185,000 • 3 bed • 1 bath • 697 ft²
2 bedroom semi-detached house for sale in Garfield Avenue, Bellshill, ML4 — £139,995 • 2 bed • 1 bath • 675 ft²
3 bedroom terraced house for sale in Bridgeford Avenue, Bellshill, ML4 — £132,500 • 3 bed • 2 bath • 818 ft²
3 bedroom terraced house for sale in Peacock Wynd, Motherwell, ML1 — £175,000 • 3 bed • 1 bath • 777 ft²
4 bedroom detached house for sale in 57 Love Drive, Bellshill, ML4 — £265,000 • 4 bed • 2 bath • 933 ft²
3 bedroom terraced house for sale in Milnwood Drive, Bellshill, ML4 — £140,000 • 3 bed • 1 bath • 936 ft²


































































































































































