Affordable two-bedroom home with modern fittings and low running costs.
Overlooks communal green space with a private first-floor entrance
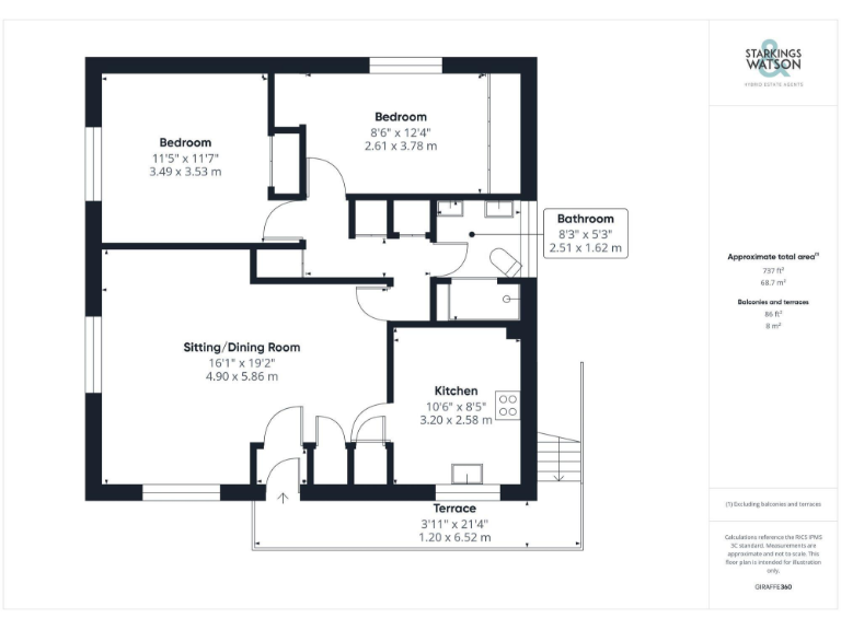
19' dual-aspect sitting/dining room, open-plan layout
Modern fitted kitchen with integrated appliances
Two double bedrooms with integrated wardrobes
Refitted three-piece family shower room
All windows and doors replaced in 2022
Leasehold — approximately 90 years remaining
Service charge £300pa; ground rent £10pa; crime above average
This bright first-floor flat overlooks communal green space and has been recently remodelled for low-maintenance living. The open-plan 19' dual-aspect sitting and dining room and modern fitted kitchen with integrated appliances create a comfortable everyday layout for a couple or first-time buyer. Two double bedrooms with integrated wardrobes and a refitted three-piece shower room complete the practical accommodation.
Important ownership details are clear: the property is leasehold with around 90 years remaining, an annual service charge of £300 and ground rent of £10. All external windows and doors were replaced in 2022, reducing immediate maintenance needs, though communal areas and balcony finishes may benefit from longer-term upkeep.
Location offers fast broadband, excellent mobile signal and easy access to local amenities and schools, but the neighbourhood shows higher-than-average crime and is in a very deprived area classification. These factors should be weighed alongside the affordable asking price and low council tax.
Overall, this flat suits a first-time buyer or buy-to-let investor seeking a recently renovated, low-upkeep home with scope to add value through targeted cosmetic or external improvements. Be aware of lease length and neighbourhood factors when assessing long-term suitability.
2 bedroom flat for sale in Watson Grove, Norwich, NR2 4LF, NR2 — £160,000 • 2 bed • 1 bath • 620 ft²
2 bedroom flat for sale in Lefroy Road, Norwich, NR3 — £130,000 • 2 bed • 1 bath • 642 ft²
2 bedroom apartment for sale in Old Palace Road, Norwich, NR2 — £165,000 • 2 bed • 1 bath • 612 ft²
2 bedroom apartment for sale in Nursery Close, Hellesdon, Norwich, Norfolk, NR6 — £140,000 • 2 bed • 1 bath • 534 ft²
2 bedroom apartment for sale in Regina Road, Norwich, NR1 — £175,000 • 2 bed • 1 bath • 625 ft²
2 bedroom flat for sale in Lavengro Road, NR3 — £150,000 • 2 bed • 1 bath • 599 ft²














































































