Ideal starter home with parking and communal garden close to schools.
Private entrance with stairs to first-floor flat
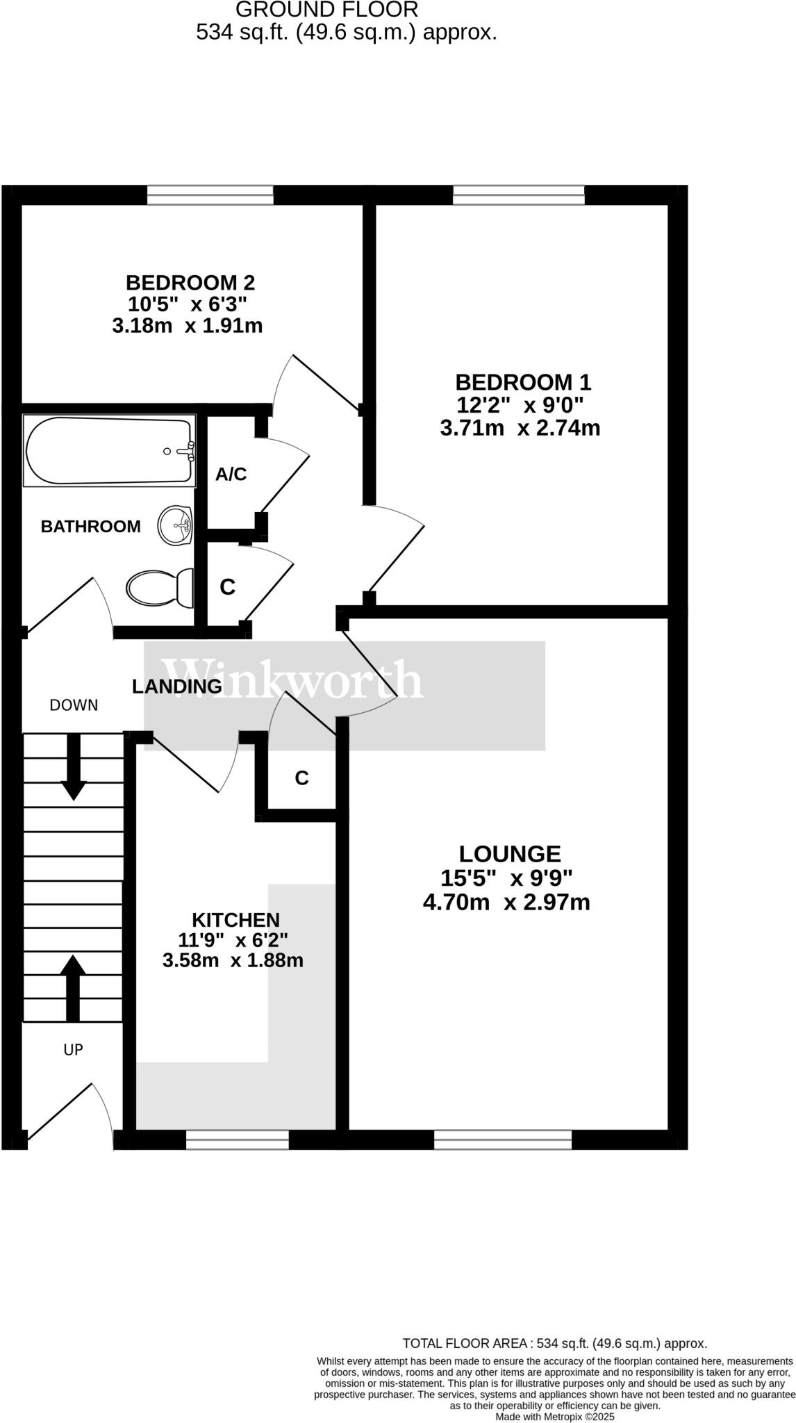
This two-bedroom first-floor apartment offers a practical, low-maintenance home or a straightforward rental investment. A private entrance leads upstairs to a 15ft lounge, 11ft kitchen and two bedrooms within 534 sq ft of living space. Double glazing and gas central heating are already fitted.
Outside there is an allocated parking space in the residents’ car park and shared access to a communal garden—useful extras in a built-up area. The long lease (949 years) and modest ground rent (£25 p.a.) reduce ownership uncertainty; service charges are £600 per year.
Buyers should note the flat’s compact overall size and that the local area records above-average crime levels. The property suits first-time buyers wanting an affordable, well-connected starter home or investors seeking a manageable let close to schools and amenities.
Practical nearby benefits include fast broadband and excellent mobile signal, with several primary schools rated Good or Outstanding within walking distance. Council Tax Band A applies.
2 bedroom apartment for sale in Nursery Close, Hellesdon, Norwich, Norfolk, NR6 — £140,000 • 2 bed • 1 bath • 474 ft²
2 bedroom apartment for sale in Colls Road, Norwich, Norfolk, NR7 — £140,000 • 2 bed • 1 bath • 602 ft²
2 bedroom flat for sale in Bertram Way, Norwich, NR1 — £170,000 • 2 bed • 1 bath • 560 ft²
2 bedroom apartment for sale in Dalrymple Way, Norwich, Norfolk, NR6 — £140,000 • 2 bed • 1 bath • 588 ft²
2 bedroom apartment for sale in Norwich, NR4 — £160,000 • 2 bed • 1 bath • 661 ft²
2 bedroom flat for sale in Craven Court, Crome Road, Norwich, NR3 — £155,000 • 2 bed • 2 bath • 603 ft²














































