Income-producing two-bedroom flat for hands-on investors seeking value.
Long-term tenants in situ producing £5,700 gross annually
Low purchase price offers immediate investor entry point
Leasehold tenure — review lease terms and charges
Shared off-street parking; communal grounds only, no private garden
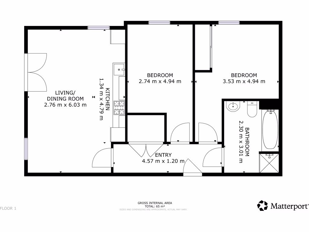
Compact size (c.581 sq ft) — limited internal space
Area classified as very deprived with higher local crime rates
Interior shows wear; some updating/maintenance likely required
Buyers Premium applies to secure purchase — factor into costs
This two-bedroom leasehold flat in Lancashire Court is presented primarily as a buy-to-let opportunity with a long-term tenant in situ. The property currently produces an annual gross income of £5,700 (c.£475 pcm) and is offered at a low entry price, making it attractive for investors seeking immediate rental return and portfolio expansion.
The apartment sits in a modern mid-rise block with communal grounds and shared off-street parking. Accommodation comprises two bedrooms, lounge, kitchen and a bathroom within a compact 581 sq ft footprint. Images and descriptions indicate a generally modern exterior but an interior showing signs of wear and areas that may need updating.
Important considerations: the flat is leasehold, located in an area classified as very deprived with above-average local crime levels, and has a Buyers Premium applicable to the sale. The current tenants intend to remain, so purchasers should expect an income-producing property rather than vacant possession. Prospective buyers should review the Let Property Pack and tenancy paperwork and allow for potential refurbishment or management costs to improve returns.
2 bedroom flat for sale in Wardle Street, Stoke-On-Trent, ST6 — £75,000 • 2 bed • 1 bath • 549 ft²
2 bedroom flat for sale in Wardle Street, Stoke-On-Trent, ST6 — £70,000 • 2 bed • 1 bath • 538 ft²
1 bedroom flat for sale in Marsh Parade, Newcastle Under Lyme, Staffordshire, ST5 — £100,000 • 1 bed • 1 bath • 377 ft²
2 bedroom flat for sale in Glebedale Court, Fenton, Stoke-on-Trent, ST4 3LT, ST4 — £80,000 • 2 bed • 1 bath • 472 ft²
2 bedroom terraced house for sale in Summerbank Road, Stoke-On-Trent, ST6 — £172,000 • 2 bed • 3 bath • 1055 ft²
2 bedroom apartment for sale in Grove Road, Stoke-on-Trent, ST4 — £60,000 • 2 bed • 1 bath • 421 ft²


























































































