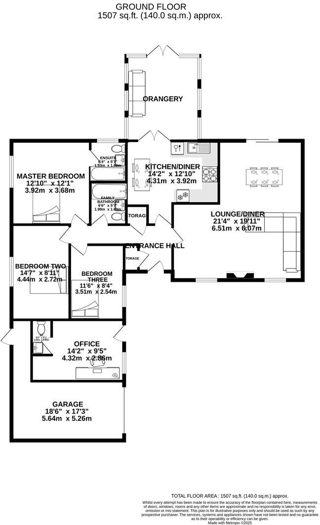
Recently renovated detached bungalow with large south-facing garden and orangery..
Three double bedrooms with master en-suite
A spacious three-bedroom detached bungalow set on a large wraparound plot in sought-after Clayton-Le-Woods. Recently renovated throughout, the home offers bright living spaces, a modern kitchen, and an impressive orangery with a remaining 10-year guarantee. Practical upgrades include a new roof, new boiler and radiators, fresh carpets and double glazing.
The layout centres on a large dual-aspect lounge/dining room with patio access to a south-facing garden, perfect for family outdoor living and entertaining. Three well-proportioned double bedrooms sit off the hall; the master benefits from a modern en-suite and there is a separate family bathroom, both with showers over baths.
A double garage has been partly converted to provide a home office with WC — a useful flexible space but one that reduces the fully enclosed garage area and affects covered parking. Driveway parking for two to three cars remains. EPC rating C, freehold tenure and very low local crime add to the property's practical appeal.
Located close to local shops, good schools and strong transport links (M6/M61), this bungalow suits buyers seeking a low-maintenance, move-in-ready family home in a quiet, affluent neighbourhood. Note: council tax is moderate and the part-converted garage may require change if you need a full double garage again.
3 bedroom detached bungalow for sale in Rowan Croft, Clayton-Le-Woods, Chorley, PR6 — £324,995 • 3 bed • 1 bath • 1085 ft²
3 bedroom detached bungalow for sale in Cedar Field, Clayton-Le-Woods, Chorley, PR6 — £279,995 • 3 bed • 1 bath • 986 ft²
3 bedroom detached bungalow for sale in Spring Meadow, Leyland, PR25 — £310,000 • 3 bed • 1 bath • 966 ft²
2 bedroom detached bungalow for sale in Carlton Avenue, Clayton-Le-Woods, Chorley, PR6 — £269,995 • 2 bed • 1 bath • 905 ft²
3 bedroom bungalow for sale in Spring Meadow, Leyland, PR25 — £375,000 • 3 bed • 2 bath • 1023 ft²
2 bedroom semi-detached bungalow for sale in Kiln Croft, Clayton-Le-Woods, Chorley, PR6 — £159,995 • 2 bed • 1 bath • 760 ft²


























































































































































