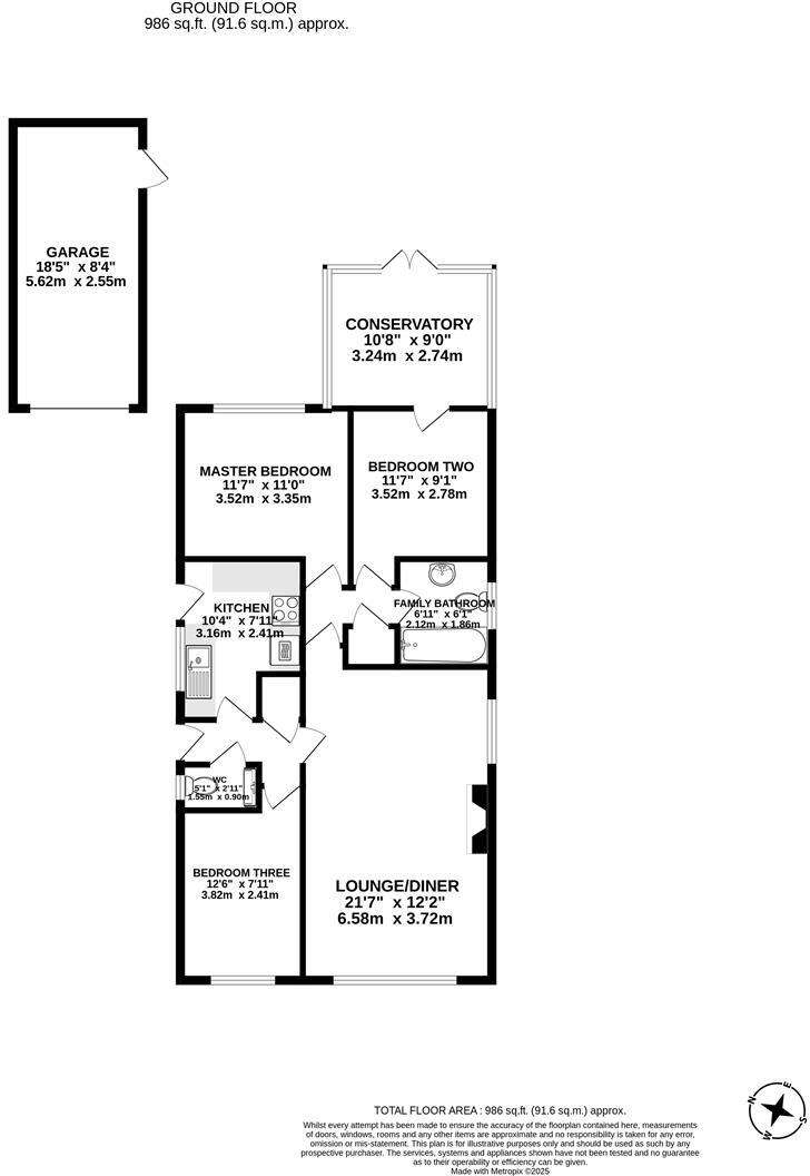
Single-floor home with garage, driveway and easy-to-manage garden for downsizers.
Three bedrooms on one level, approximately 986 sq ft
Single-storey living with a manageable rear garden and long driveway makes this property particularly well suited to those looking to downsize without losing space. The lounge is light-filled with a front bay window and feature fireplace; a conservatory links the rear bedrooms to the garden for extra living space.
Practical strengths include a single garage, plentiful off-road parking, mains gas central heating with boiler and radiators, and freehold tenure. The bungalow sits on a decent plot in a quiet cul-de-sac within a very affluent area, with good local schools and easy motorway links (M6 & M61) for regional commutes.
Buyers should note the interior shows signs of mid-century / dated styling and would benefit from cosmetic modernisation to suit contemporary tastes. EPC rating D and a single family bathroom mean there may be short-term upgrade costs for energy efficiency and convenience.
Overall this c.986 sq ft bungalow offers comfortable, low-maintenance living and clear scope to refresh the interior to add value — a sensible option for downsizers or couples seeking single-floor accommodation close to amenities and countryside.
3 bedroom detached bungalow for sale in Rowan Croft, Clayton-Le-Woods, Chorley, PR6 7UU, PR6 — £325,000 • 3 bed • 1 bath • 1085 ft²
2 bedroom semi-detached bungalow for sale in Kiln Croft, Clayton-Le-Woods, Chorley, PR6 — £159,995 • 2 bed • 1 bath • 760 ft²
3 bedroom detached bungalow for sale in Spring Meadow, Clayton-Le-Woods, Leyland, PR25 — £395,000 • 3 bed • 2 bath • 1507 ft²
3 bedroom detached bungalow for sale in Sycamore Avenue, Euxton, PR7 6JR, PR7 — £300,000 • 3 bed • 1 bath • 1258 ft²
2 bedroom semi-detached bungalow for sale in Montcliffe Road, Chorley, PR6 — £169,995 • 2 bed • 1 bath • 595 ft²
3 bedroom bungalow for sale in Lady Crosse Drive, Whittle-le-Woods, Chorley, Lancashire, PR6 — £330,000 • 3 bed • 1 bath • 673 ft²


























































































