Contemporary family home with generous main-floor suite and private garden.
Three bedrooms across three storeys; main bedroom occupies entire top floor
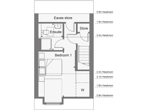
This three-bedroom, three-storey semi-detached new build on Panfield Road offers roomy family living with contemporary finishes and energy-efficient construction. The entire top floor is dedicated to an impressive main bedroom with eaves storage and a fitted ensuite, giving a private retreat away from the ground-floor living zones. The open-plan kitchen/dining room opens through French doors to a turfed rear garden, creating easy indoor–outdoor flow for family life and entertaining.
Ground-floor conveniences include a separate utility room, cloakroom and understairs storage, plus a front living room. Two tandem off-street parking spaces sit to the front. The plot is described as large and the property is covered by a 10-year Premier warranty plus a 2-year warranty for added peace of mind. A limited-time reservation incentive offers a 5% deposit contribution if reserved by the stated date — check current terms and availability.
Practical notes: the paperwork provided contains inconsistent bathroom counts (developer information references an ensuite plus family bathroom while summary data lists one bathroom). Confirm the final specification and finish date (estimated move-in June–August 2026) before committing. The area is classed as ageing urban communities with average deprivation and average crime; local primary schools include Good and Outstanding-rated options, while secondary provision is mixed.
This home suits buyers seeking a modern, low-maintenance family property with strong storage and a large plot, and those who value warranty protection and new-build energy efficiency. Buyers needing immediate occupancy, complex alterations, or guaranteed local high-performing secondary schools should check timings and specifications carefully.
2 bedroom semi-detached house for sale in Panfield Road,
Bocking,
Braintree,
CM7 5BJ, CM7 — £325,000 • 2 bed • 1 bath
3 bedroom detached house for sale in Panfield Road,
Bocking,
Braintree,
CM7 5BJ, CM7 — £450,000 • 3 bed • 1 bath
4 bedroom semi-detached house for sale in The Maples,
Long Green,
Braintree,
Essex,
CM77 8DL
, CM77 — £495,000 • 4 bed • 1 bath • 850 ft²
4 bedroom detached house for sale in Panfield Road,
Bocking,
Braintree,
CM7 5BJ, CM7 — £525,000 • 4 bed • 1 bath
4 bedroom semi-detached house for sale in The Maples,
Long Green,
Braintree,
Essex,
CM77 8DL
, CM77 — £475,000 • 4 bed • 1 bath • 850 ft²
4 bedroom detached house for sale in Panfield Road,
Bocking,
Braintree,
CM7 5BJ, CM7 — £585,000 • 4 bed • 1 bath


















































