Newly renovated home with garage and private parking near town and station.
Three good-sized bedrooms, two with built-in wardrobes
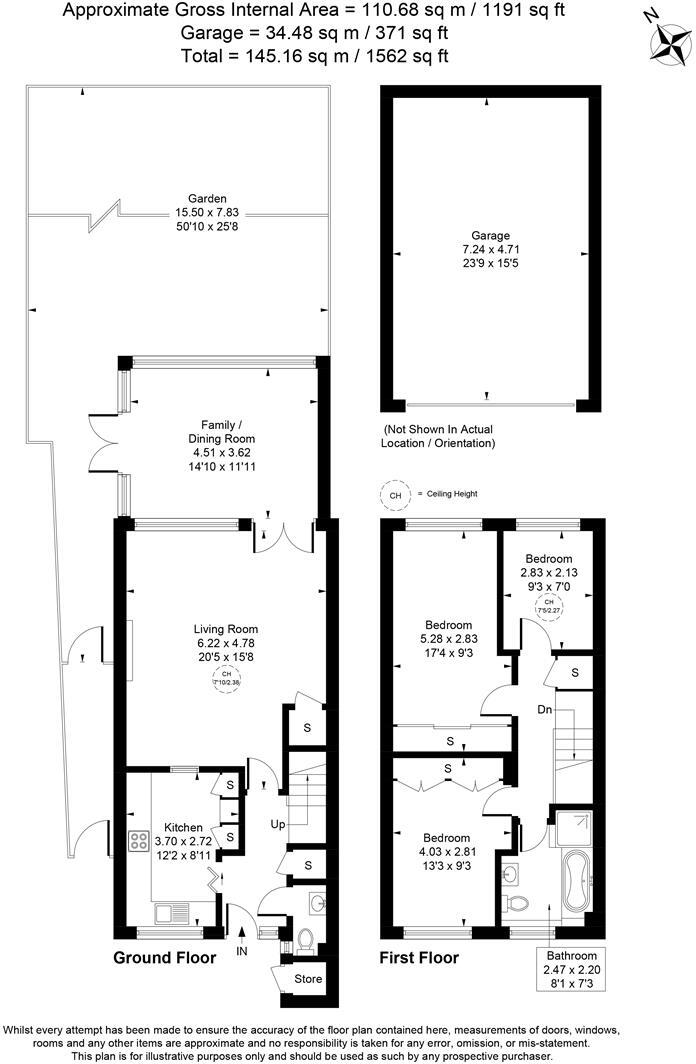
A bright, newly renovated three-bedroom end-of-terrace set in a small private development close to Ashford town centre and station. The ground floor offers two reception rooms, a modern fitted kitchen and a spacious living area that opens to a secluded, porcelain-tiled garden — ideal for family entertaining. Upstairs are three good-sized bedrooms (two with built-in wardrobes) and a family bathroom with a separate shower.
Practical benefits include a private garage, residents’ parking and mains gas central heating with a boiler and radiators. The property is freehold, double-glazed and presented move-in ready, appealing to families wanting convenience and low short-term maintenance.
Notable points to consider: the house sits on a small plot and was built between 1900–1929 with solid brick walls that are assumed to lack cavity insulation. There is a single family bathroom only, and council tax is above average. These factors may affect running costs and future retrofit planning.
Local amenities are strong — good primary and secondary schools nearby, excellent mobile signal, fast broadband and easy access to shopping, transport links and Heathrow. The home suits growing families seeking a comfortable, well-located property with scope to personalise over time.
3 bedroom end of terrace house for sale in Wolsey Road, Ashford, TW15 — £499,500 • 3 bed • 1 bath • 955 ft²
3 bedroom end of terrace house for sale in Exeforde Avenue, Ashford, TW15 — £475,000 • 3 bed • 1 bath • 1222 ft²
3 bedroom terraced house for sale in Ashford, Surrey, TW15 — £450,000 • 3 bed • 1 bath • 920 ft²
3 bedroom detached house for sale in Orchard Close, Ashford, Surrey, TW15 — £550,000 • 3 bed • 1 bath • 977 ft²
3 bedroom terraced house for sale in Kingswood Close, Ashford, Surrey, TW15 — £500,000 • 3 bed • 2 bath • 1095 ft²
3 bedroom semi-detached house for sale in Sandringham Drive, Ashford, TW15 — £600,000 • 3 bed • 3 bath • 972 ft²






































































