Rare long-lease one-bedroom with strong rental yield near train station.
- Advertised gross yield circa 8% (investment performance)
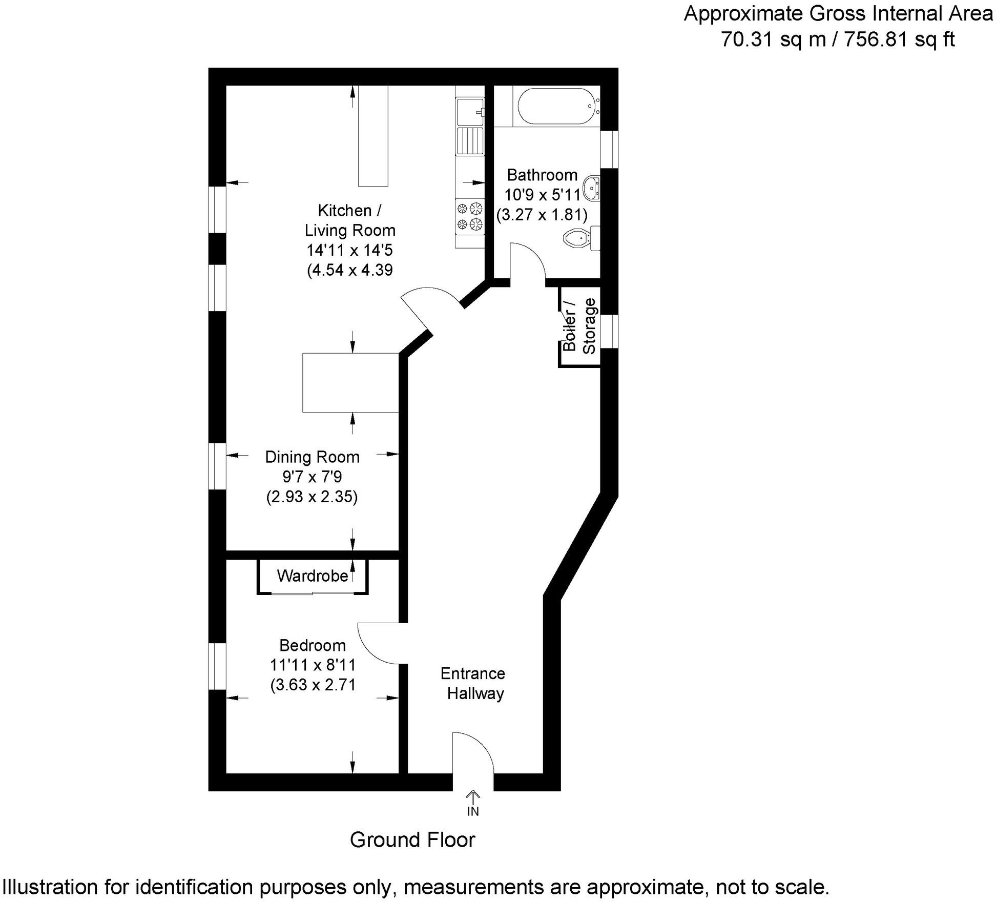
A substantial one-bedroom apartment in a Grade-listed building, offered with a very long lease of 984 years. The property is currently tenanted and marketed with an advertised gross yield of c.8%, making it attractive to investors seeking city-centre rental income close to public transport.
The flat is a large one-bedroom (approx. 756 sqft) arranged in an open-plan layout with a modern fitted kitchen and a generous three-piece bathroom. Images indicate contemporary finishes and good natural light, but the building’s listed status may restrict alterations; buyers should check consent requirements before planning changes.
Practical points to note: the property is leasehold with an average service charge of about £1,800 per year. Heating is by electric room heaters and the building has solid brick walls likely without insulation, which could mean higher running costs and potential upgrade work. Broadband speeds are average and mobile signal is excellent.
Location is a major selling point — immediate city centre setting next to Leicester train station, strong access to universities, hospitals and a wide range of shops and amenities. However, the area records very high crime levels and significant local deprivation, factors investors and owner-occupiers must consider when assessing tenant demand and long-term prospects.
2 bedroom flat for sale in Charles Street, Leicester, Leicestershire, LE1 — £150,000 • 2 bed • 1 bath • 966 ft²
1 bedroom apartment for sale in Colton Square, Leicester, LE1 — £107,500 • 1 bed • 1 bath • 431 ft²
1 bedroom flat for sale in Rutland Street, City Centre, Leicester, LE1 — £82,000 • 1 bed • 1 bath • 948 ft²
1 bedroom apartment for sale in Rutland Street, Leicester, LE1 1RB, LE1 — £75,000 • 1 bed • 1 bath • 410 ft²
1 bedroom apartment for sale in Colton Square, Leicester, LE1 — £115,000 • 1 bed • 1 bath
1 bedroom apartment for sale in Lower Lee Street, Leicester, LE1 — £160,000 • 1 bed • 1 bath • 840 ft²






































