Stable income-producing one-bedroom in a modern block, ideal for buy-to-let portfolios.
Long-term tenant in situ producing £10,200 gross annually
Current purchase price £145,000; existing yield around 6.3% gross
Leasehold with approximately 85 years remaining on the lease
On-site garage/parking; limited garden or communal amenity space
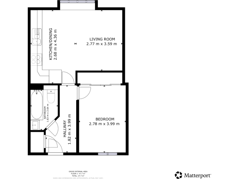
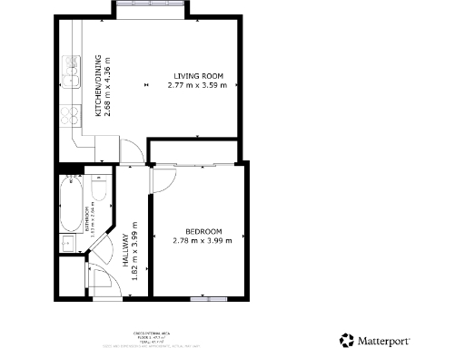
Open-plan lounge/dining and well-equipped kitchen, medium living space
Broadband speeds reported as slow — check connectivity for tenants
Buyers Premium applies on sale — factor into total acquisition cost
Potential market rent £965pcm (marketing figure) — possible uplift
A practical, low-management buy-to-let in Hall Green offering immediate rental income and established tenancies. The current tenant has occupied the flat for several years and pays a gross annual rent of £10,200, giving an existing income stream from day one.
The one-bedroom apartment sits in a modern purpose-built block with on-site parking/garage and a modest forecourt. The layout is open-plan with a well-equipped kitchen and a medium-sized living room; the block’s external condition appears well maintained and lettable. There is limited communal or private garden space.
Key investment strengths are the stable tenancy, on-site parking and achievable rental uplift (marketing figures suggest potential rent to £965pcm). Important practical points: the flat is leasehold with about 85 years remaining; broadband speeds are reported as slow; a Buyers Premium will apply to the sale. Prospective purchasers should review the Let Property Pack, current tenancy agreement, service charges, and ground rent before exchange.
This property is best suited to investors seeking an income-producing asset with low immediate management needs. For valuation and longer-term upside consider obtaining internal inspection, floorplans, block management details and recent local comparables to confirm yield and refurbishment scope.
1 bedroom flat for sale in Longleat Avenue, Birmingham, B15 — £133,000 • 1 bed • 1 bath • 517 ft²
2 bedroom flat for sale in Heathlands Grove, Birmingham, B31 — £110,000 • 2 bed • 1 bath • 581 ft²
1 bedroom flat for sale in Grove Road, Birmingham, B11 — £115,640 • 1 bed • 1 bath • 570 ft²
3 bedroom flat for sale in Highcroft Road, Birmingham, B23 — £160,000 • 3 bed • 2 bath • 646 ft²
1 bedroom flat for sale in Springfield Road, Birmingham, B13 — £125,000 • 1 bed • 1 bath • 516 ft²
2 bedroom flat for sale in New Coventry Road, Birmingham, B26 — £122,500 • 2 bed • 2 bath • 657 ft²






































































