Immediate rental income with private garage and refurbishment upside.
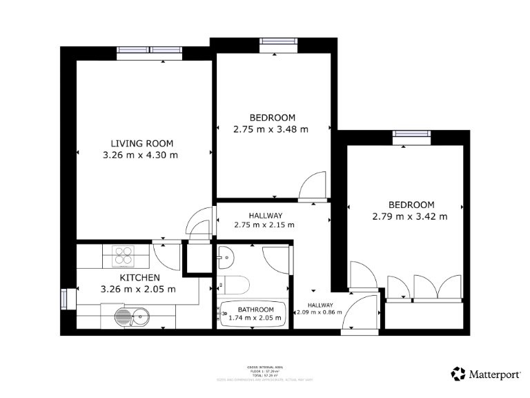
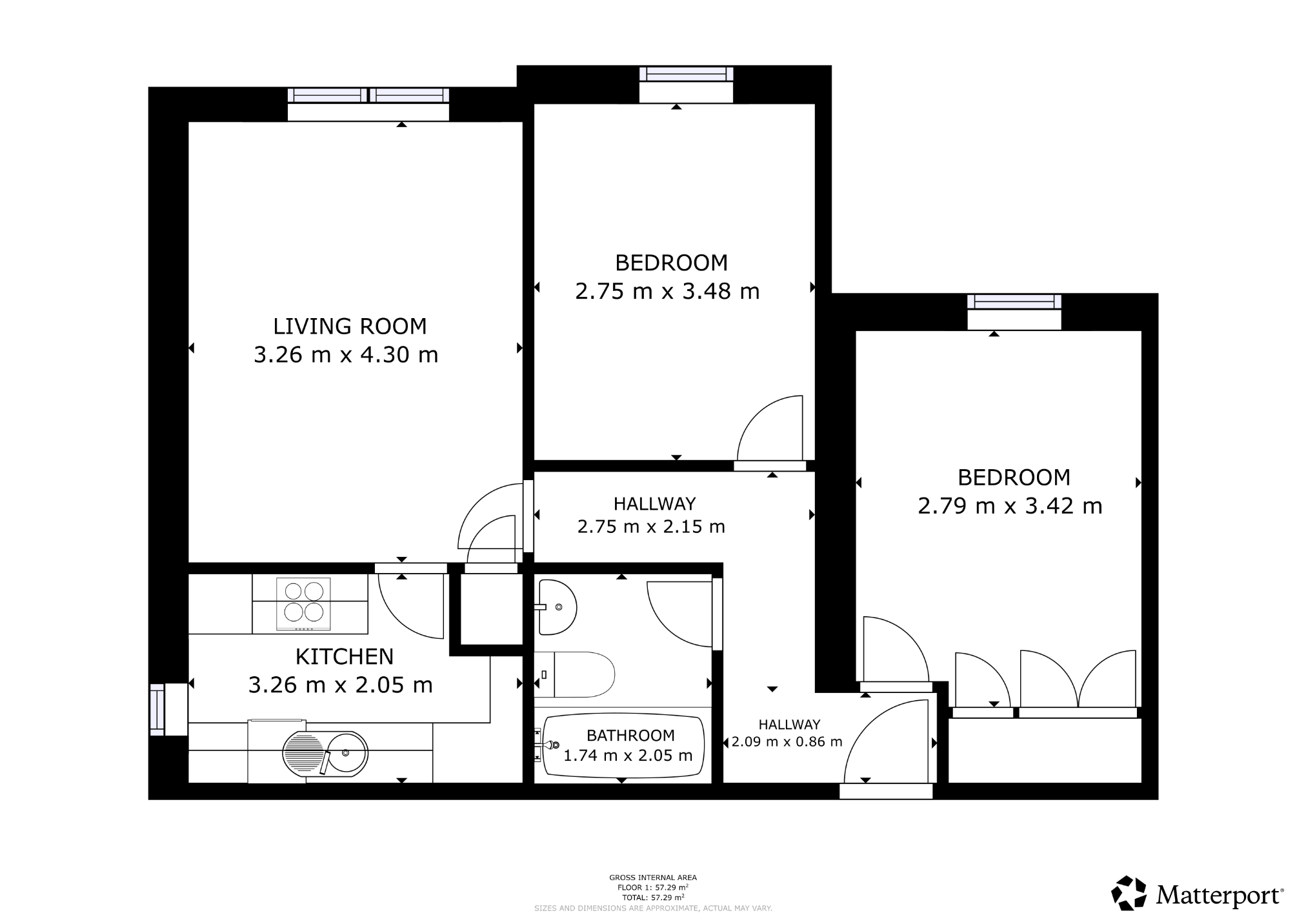
- Two-bedroom leasehold flat, approx. 581 sq ft
- Long-term tenant in situ; steady rental income £8,340 pa
- Private garage parking included on-plot
- Approximate gross yield c.7.6% at asking price
- Small communal outdoor space; no private garden
- Property shows dated finishes; scope for refurbishment
- Located in a very deprived area with high local crime
- Buyers premium applies; check lease and Let Pack
A practical buy-to-let in Northfield, offered with a long-term tenant in situ and private garage parking. The flat is a compact two-bedroom apartment in a purpose-built red-brick block from the 1980s, positioned for steady rental demand from established renting families in the area.
Current gross rental income is £8,340 per year on a £110,000 purchase price, producing an approximate gross yield of 7.6%. The sitting tenant has lived in the property for several years and intends to remain, giving an investor immediate rental return without void risk. The block benefits from on-plot parking, communal grounds and straightforward street-level access.
Buyers should note this is a leasehold flat in a very deprived neighbourhood with a high local crime rate; those factors affect long-term capital-growth prospects and lettings at higher rent bands. The apartment is small (around 581 sq ft) and shows some dated internal finishes, so modest refurbishment could improve appeal and future rental value. A buyer’s premium applies to secure the sale, and prospective purchasers should review the Let Property Pack and lease details thoroughly before bidding.
3 bedroom flat for sale in Bristol Road South, Birmingham, B31 — £110,000 • 3 bed • 1 bath • 721 ft²
2 bedroom flat for sale in Rothesay Croft, Birmingham, B32 — £115,000 • 2 bed • 1 bath • 506 ft²
2 bedroom flat for sale in New Coventry Road, Birmingham, B26 — £122,500 • 2 bed • 2 bath • 657 ft²
1 bedroom flat for sale in Highfield Road, Birmingham, B28 — £155,000 • 1 bed • 1 bath • 495 ft²
2 bedroom flat for sale in New Coventry Road, Birmingham, B26 — £137,000 • 2 bed • 2 bath • 657 ft²
2 bedroom flat for sale in Escelie Way, Birmingham, B29 — £172,000 • 2 bed • 1 bath • 538 ft²






































































