**Standout Features:**
- Unique dual dwelling property on an extensive plot
- Popular cul-de-sac location in sought-after Normanton-on-Soar
- Flexible option for multi-generational living or rental income
- Expansive private garden with potential for conversion of store rooms
- Off-street parking for multiple vehicles
- Air source heat pump heating system and modern insulation
**Summary:**
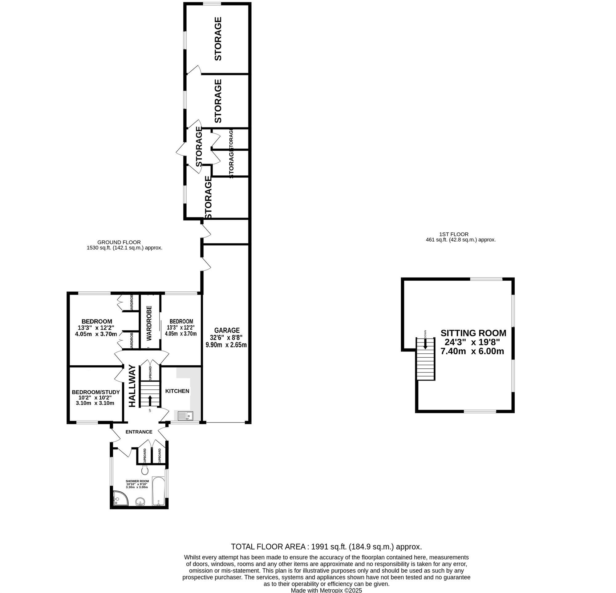
Discover this rare opportunity to own two self-contained homes nestled at the end of a tranquil cul-de-sac in the charming village of Normanton-on-Soar. Set on a generous plot of land, these dwellings present a versatile living arrangement ideal for families seeking privacy or investors looking for rental potential. Number 53 offers three bedrooms and an expansive first-floor living room, while Number 53a features two bedrooms and a similarly spacious upstairs area. Together, they enjoy access to a vast garden, perfect for leisure or the possibility of extending or converting the outdoor storerooms into an additional annexe—subject to planning permission.
Located in a delightful area steeped in history, just a stone's throw from scenic riverside walks and community amenities, this property is not just a home but a lifestyle. Experience the comfort of modern living in this affluent village community, while being just minutes away from major transport links and vibrant Loughborough. With very low crime rates and an esteemed primary school nearby, this property is perfect for families seeking comfort, security, and a future that allows for customization and growth. Don’t miss the chance to make this extraordinary residence your new home!
3 bedroom detached house for sale in Main Street, Normanton On Soar, LE12 — £600,000 • 3 bed • 1 bath • 1584 ft²
4 bedroom detached house for sale in The Old Woodyard, Normanton on Soar, LE12 — £650,000 • 4 bed • 2 bath • 2143 ft²
5 bedroom detached house for sale in The Tenon, 5 The Old Woodyard, 44 Far Lane, Normanton on Soar, LE12 — £800,000 • 5 bed • 3 bath • 2648 ft²
5 bedroom detached house for sale in Prestwold Lane, Hoton, LE12 — £900,000 • 5 bed • 3 bath • 2616 ft²
5 bedroom detached house for sale in Robinsons Hill, Melbourne, Derby, DE73 — £1,200,000 • 5 bed • 4 bath • 3057 ft²
5 bedroom detached house for sale in Lock Lane, Sandiacre, Nottingham, NG10 — £850,000 • 5 bed • 2 bath • 3199 ft²


































































































































