Bright family villa with big garden and clear extension potential.
Corner plot with larger-than-normal garden and privacy potential
Detached single garage plus two driveways for ample parking
Three bedrooms, flexible ground-floor family room/office or bedroom
Partially floored loft with scope to develop subject to permissions
Gas combi boiler, double glazing and alarm system present
Requires cosmetic modernisation throughout; original fittings remain
EPC rating E and council tax band above average
Located in an area of higher deprivation despite desirable local amenities
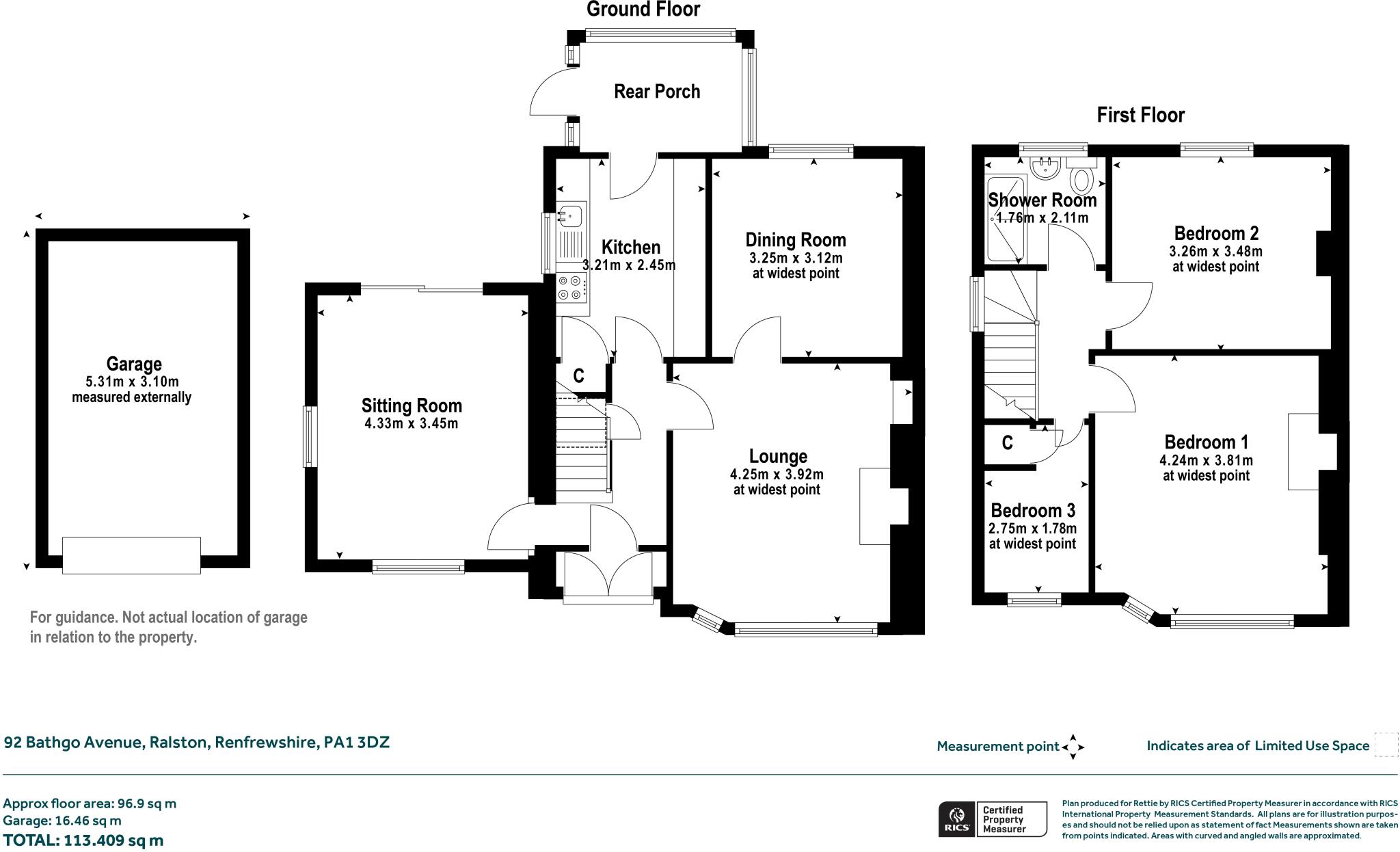
This mid-20th-century semi-detached villa sits on a larger-than-normal corner plot in sought-after Ralston, offering ready-made family living and clear scope to extend. The home has been well cared for since 1958 but will benefit from cosmetic updating and modernisation to unlock its full potential.
Ground-floor living is flexible: a bright lounge, dining room, and a glazed family room that could function as an additional bedroom or home office. The kitchen links to a useful utility porch and the generous rear garden. Two driveways and a detached single garage provide ample parking and storage.
Upstairs there are three bedrooms, a newly fitted bathroom with an accessible shower, and a partially floored loft with development potential subject to necessary permissions. Practical features include gas central heating (combi boiler), double glazing and an alarm system.
Notable negatives are factual: the house shows signs of age and will require modernisation; its EPC is E and council tax sits above average. The property sits within an area classified as deprived, and any loft or extension work will need planning consents. These points have been reflected in the price and present an opportunity for buyers seeking value and scope to add equity.
3 bedroom semi-detached house for sale in Buchlyvie Road, Ralston, Paisley, PA1 — £210,000 • 3 bed • 1 bath • 905 ft²
3 bedroom semi-detached house for sale in Golf Drive, Paisley, Renfrewshire, PA1 — £250,000 • 3 bed • 1 bath • 850 ft²
4 bedroom semi-detached house for sale in Newtyle Road, Paisley, Renfrewshire, PA1 — £270,000 • 4 bed • 2 bath
2 bedroom semi-detached house for sale in Kinpurnie Road, Paisley, Renfrewshire, PA1 — £260,000 • 2 bed • 1 bath • 942 ft²
3 bedroom semi-detached villa for sale in 115 Newtyle Road, Paisley, PA1 3JY, PA1 — £260,000 • 3 bed • 2 bath • 1076 ft²
4 bedroom detached bungalow for sale in 58 Southwold Road, Paisley, PA1 3AL, PA1 — £355,000 • 4 bed • 1 bath • 1399 ft²


































































































































