Turnkey three-bedroom flat near station and schools, ideal for family life.
Newly renovated three-bedroom first-floor flat, ready to move into
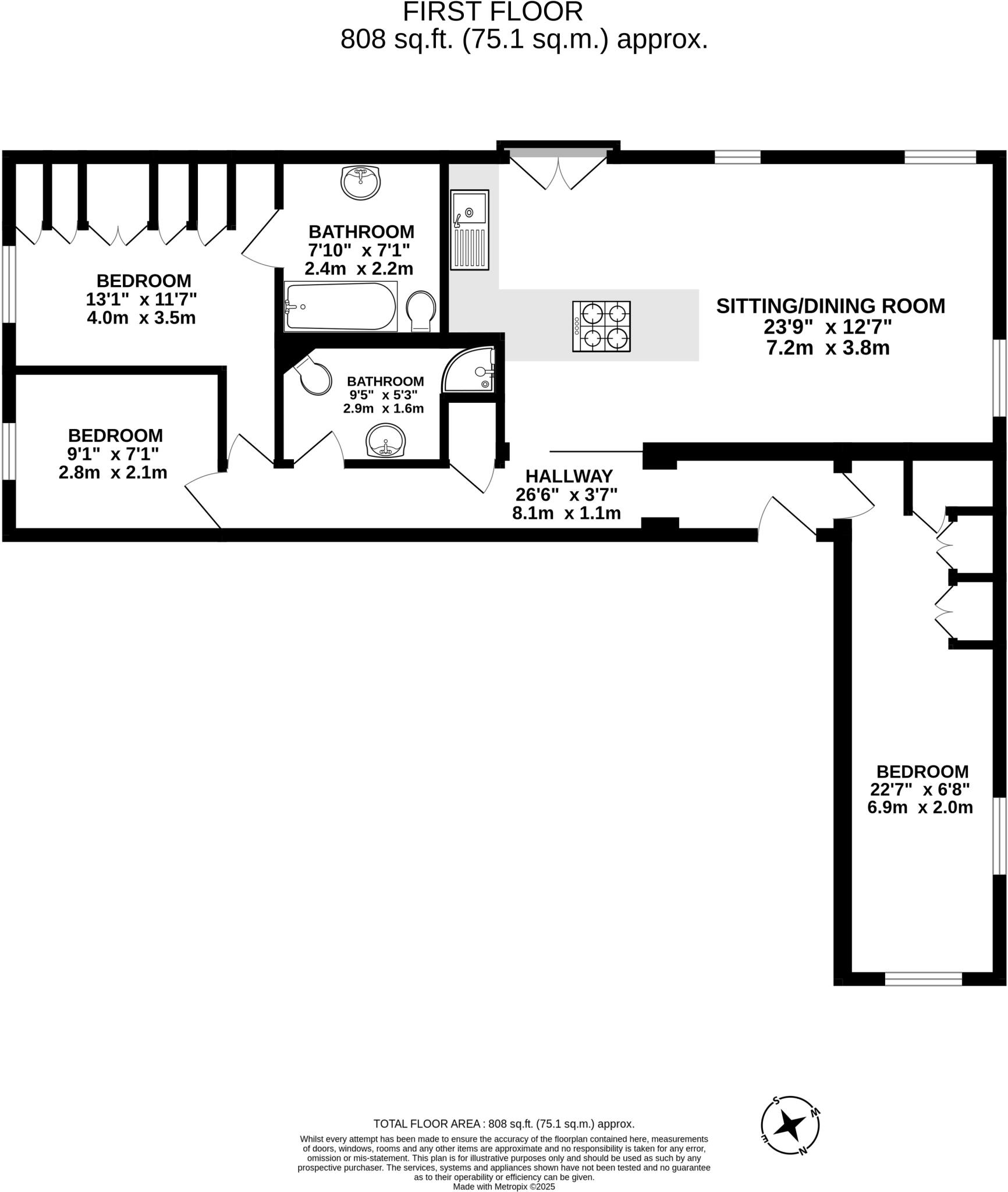
Open-plan kitchen/living with integrated appliances and LED lighting
Allocated off-street parking and well-maintained communal gardens
Principal bedroom with private en-suite; separate family bathroom
Leasehold: 89 years remaining — solicitor to verify lease terms
Service charge approx £1,000pa; ground rent £300pa
Potential rental income circa £1,600 pcm (investment potential)
Overall floor area ~808 sq ft; compact footprint for a three-bed
Set within the riverside Lawrence Moorings development, this newly renovated three-bedroom first-floor flat offers contemporary, move‑in ready living. The open-plan kitchen and living area is finished to a high standard with integrated appliances and LED lighting, creating an inviting space for family life or entertaining. Principal bedroom benefits from a private en-suite and there is a separate family bathroom, both newly fitted.
Practical benefits include an allocated off-street parking space, secure entry and well-kept communal grounds. The flat sits a short walk from Sawbridgeworth station and the town centre, making it convenient for commuters and families who value local schools and riverside walks. EPC Band B and low local crime add to the property’s everyday appeal.
Important financial and legal points: the flat is leasehold with 89 years remaining, an annual service charge of about £1,000 and ground rent of £300. The property is offered chain-free and shows potential as a rental investment (estimated rent circa £1,600 pcm), but lease length and charges should be checked by your solicitor before exchange.
Overall this is a compact, modern apartment suited to professionals, small families or downsizers seeking a turnkey home in a quiet, attractive setting — provided buyers are comfortable with a remaining lease under 90 years and the recurring service charges.
3 bedroom apartment for sale in Lawrence Moorings, Sawbridgeworth, CM21 — £280,000 • 3 bed • 1 bath • 756 ft²
1 bedroom apartment for sale in Lawrence Moorings, Sheering Mill Lane, Sawbridgeworth, Essex, CM21 — £260,000 • 1 bed • 1 bath • 499 ft²
1 bedroom apartment for sale in Waterside Place, Sheering Lower Road, Sawbridgeworth, Hertfordshire, CM21 — £189,000 • 1 bed • 1 bath • 423 ft²
2 bedroom apartment for sale in Cutforth Road, Sawbridgeworth, Herts, CM21 — £235,000 • 2 bed • 2 bath • 828 ft²
2 bedroom apartment for sale in Lawrence Moorings, Sheering Mill Lane, Sawbridgeworth, Essex, CM21 — £259,995 • 2 bed • 1 bath • 539 ft²
1 bedroom apartment for sale in Lawrence Moorings, Sawbridgeworth, CM21 — £224,950 • 1 bed • 1 bath • 506 ft²


































































