**Standout Features:**
- Grade II Listed Tudor character property
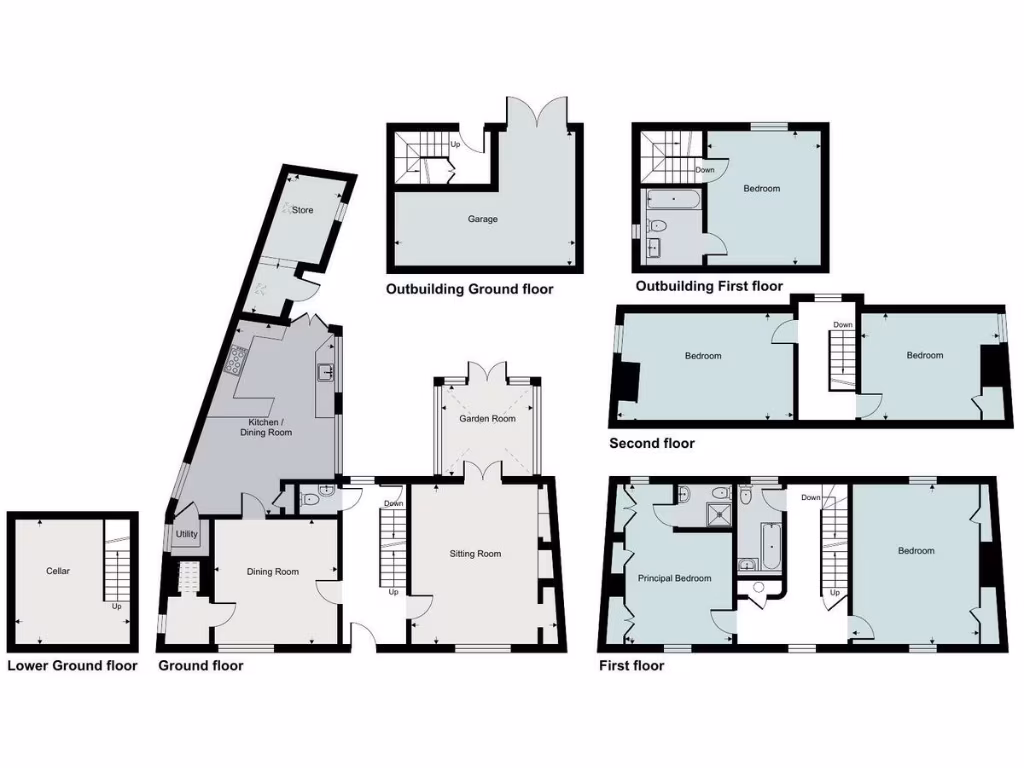
- Generous five-bedroom layout with en-suite and family bathroom
- Three spacious reception rooms, including a double-aspect sitting room
- Separate Coach House with planning permission for renovation
- Beautifully landscaped gardens and lovely views across the village green
- Off-road parking, garage, and chain-free sale
- Walking distance to local amenities including shops, school, and pub
**Summary:**
Welcome to The White House, a distinguished Grade II Listed property nestled in serene Suffolk, offering a perfect blend of historic charm and modern comforts. With five sizable bedrooms, including a master en-suite, and three inviting reception areas, this home is designed for families or anyone seeking versatile living spaces. Enter through a handsome hall leading to character-rich rooms like the traditional sitting room with an open fireplace, a bright garden room, and a well-appointed kitchen boasting a seven-ring gas range cooker.
The outdoor space is equally impressive, featuring a beautifully landscaped garden with vibrant flower beds, a paved dining terrace, and a quaint summer house—ideal for summer entertaining. The separate Coach House presents exciting potential for guests, a home office, or an income-generating rental, with planning permission already in place.
Enjoy the peace of rural life with all essential amenities just a stroll away, plus the significant advantage of being chain-free. This remarkable opportunity to own a piece of history in a vibrant community won't last long—experience the comforts and elegance of The White House firsthand today!
5 bedroom house for sale in The Green, Cavendish, Sudbury, CO10 — £665,000 • 5 bed • 2 bath • 2500 ft²
3 bedroom semi-detached house for sale in The Street, Stoke By Clare, Suffolk , CO10 — £450,000 • 3 bed • 2 bath • 1218 ft²
6 bedroom detached house for sale in The White Hart, Bridge Street, Hadleigh, IP7 — £625,000 • 6 bed • 2 bath • 3856 ft²
4 bedroom detached house for sale in High Street, Cavendish, CO10 — £525,000 • 4 bed • 2 bath • 2054 ft²
4 bedroom detached house for sale in Haughley Green, Stowmarket, IP14 — £680,000 • 4 bed • 2 bath • 1955 ft²
4 bedroom end of terrace house for sale in Birch Street, Nayland, Colchester, Suffolk, CO6 — £600,000 • 4 bed • 2 bath • 1770 ft²






































































































































