**Standout Features:**
- Grade II listed period house with Tudor Revival architecture
- Five spacious bedrooms with potential for even more useable space
- Delightful enclosed gardens offering privacy and outdoor space
- Off-road parking for up to four cars
- Versatile former shop area ideal for reconfiguration (subject to planning permissions)
- Picturesque views across the village green in charming Cavendish
- Maintained original features including exposed timber beams and a classic Inglenook fireplace
**Concise Summary:**
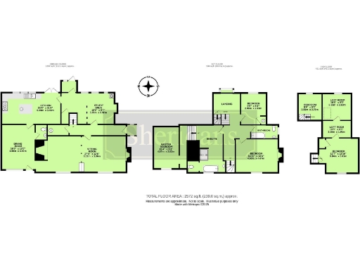
Discover a piece of history with this stunning Grade II listed house in the heart of Cavendish. This 2500 sq.ft. home, steeped in character, boasts five generous bedrooms, including a principal suite with en-suite bathroom. The spacious layout features a cozy sitting room with an Inglenook fireplace, an expansive dining room (formerly a shop), and a well-equipped kitchen breakfast room that opens seamlessly to the private gardens. The beautifully maintained outdoor space, adorned with flowering plants and serene terraces, is ideal for entertaining or quiet relaxation.
While the property exhibits a wealth of original features and an inviting atmosphere, it’s important to note its listed status may pose some renovation challenges and planning restrictions. However, the potential for diverse uses is vast, particularly for creatives or those seeking a tranquil family living environment. Ideally located near local amenities, with a friendly village ambiance and low crime rates, this home offers a unique opportunity for anyone looking to embrace countryside life with charm and character. Act fast, as properties of this caliber are rare and tend to draw significant interest!
3 bedroom cottage for sale in The Green, Cavendish, Sudbury, CO10 — £250,000 • 3 bed • 1 bath • 929 ft²
5 bedroom detached house for sale in The Green, Cavendish, CO10 8BB, CO10 — £600,000 • 5 bed • 3 bath • 2000 ft²
4 bedroom detached house for sale in High Street, Cavendish, CO10 — £525,000 • 4 bed • 2 bath • 2054 ft²
4 bedroom detached house for sale in Greys Close, Cavendish, Sudbury, CO10 — £799,999 • 4 bed • 3 bath • 2579 ft²
5 bedroom character property for sale in The Green, Cavendish, CO10 — £525,000 • 5 bed • 3 bath
4 bedroom detached house for sale in Cavendish, Suffolk , CO10 — £525,000 • 4 bed • 2 bath • 1612 ft²






































































































