Well-presented three-bedroom semi in a quiet residential cul-de-sac near the coast.
Half-mile walk to Botany Bay beach
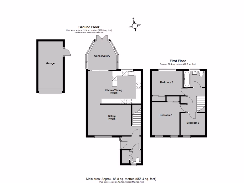
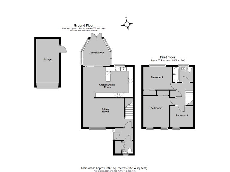
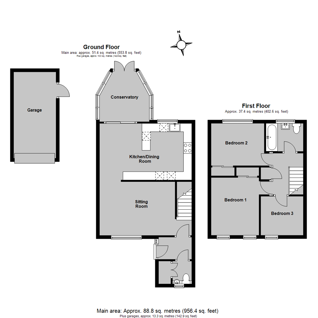
A neatly presented three-bedroom semi-detached home in a quiet Cliftonville cul-de-sac, a short half-mile walk from Botany Bay. The ground floor flows from a comfortable sitting room with wood-burning stove into an extended contemporary kitchen/dining area and conservatory — ideal for family living and casual entertaining. Photovoltaic solar panels reduce electricity costs and the property benefits from mains gas central heating and a detached garage with private driveway parking.
Upstairs offers three well-proportioned bedrooms and a stylish family bathroom. The rear garden is thoughtfully landscaped to about 33ft (10m) with a raised stone terrace, deck with pergola and shed — a low-maintenance space for children and outdoor meals. The overall internal area is modest at around 957 sq ft, suited to a growing family or those seeking a seaside commuter home.
Constructed in the late 1960s/early 1970s, the house is in good decorative order but reflects its era: double glazing was installed before 2002 and there is scope for modest modernisation to add value. There is a single bathroom and a single garage, so buyers seeking more utility space should note this. The area is affluent with very low crime, good local schools, and fast broadband, making it well placed for family life and commuter links to London.
3 bedroom semi-detached house for sale in Ivychurch Gardens, Cliftonville, Margate, CT9 — £325,000 • 3 bed • 2 bath
3 bedroom semi-detached house for sale in Northdown Park Road, Margate, CT9 — £375,000 • 3 bed • 1 bath • 977 ft²
5 bedroom detached house for sale in Kingsgate Avenue, Broadstairs, Kent, CT10 — £750,000 • 5 bed • 2 bath • 1847 ft²
3 bedroom detached house for sale in Maple Close, Broadstairs, Kent, CT10 — £450,000 • 3 bed • 2 bath • 1023 ft²
2 bedroom detached bungalow for sale in Botany Road, Broadstairs, CT10 3SE, CT10 — £425,000 • 2 bed • 1 bath • 1289 ft²
3 bedroom terraced house for sale in Copperhurst Walk, Cliftonville, Margate, Kent, CT9 — £275,000 • 3 bed • 1 bath • 862 ft²














































































