Spacious seaside plot with scope to extend and improve energy efficiency.
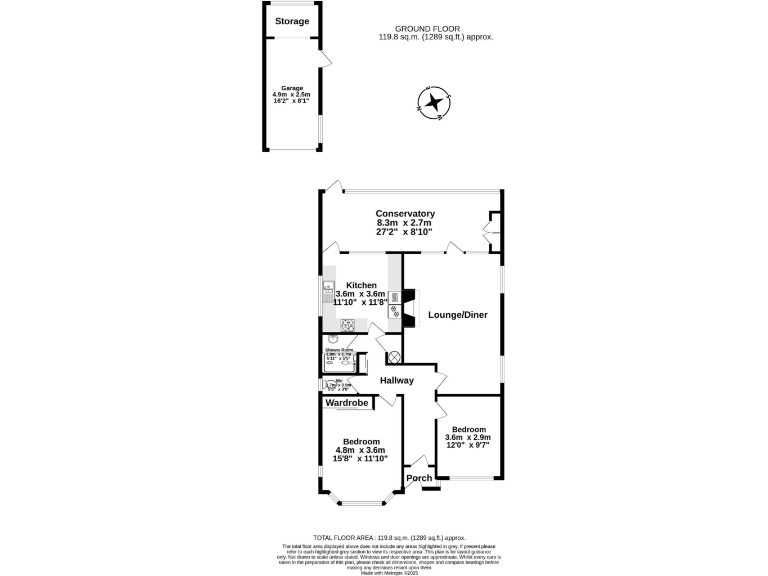
- Detached two-bedroom mid-century bungalow on large plot
- Short walk to Botany Bay beach and clifftop walks
- Large conservatory overlooking mature rear gardens
- Off-street parking for several cars plus integral garage
- Double glazing fitted after 2002 and mains gas heating
- Cavity walls as built, likely no insulation — upgrade advised
- Single shower room and separate WC; limited bathroom provision
- Roof line/plot offers extension/loft potential (subject to consent)
Set a few yards from Botany Bay and the clifftop walks, this detached two-bedroom bungalow offers classic mid‑century space on a notably large plot. The house is presented with vacant possession and benefits from a modern fitted kitchen, a generous lounge and a large conservatory overlooking mature rear gardens.
Practical conveniences include off‑street parking for several cars, an integral garage and fast broadband. The property is built 1950–1966 with double glazing added after 2002 and mains gas central heating via boiler and radiators, making it comfortable now while offering clear potential to improve energy performance.
Significant upside lies in the plot and roof line: there is scope for extension or roof expansion subject to consent, which will appeal to buyers seeking to increase space or value. Local amenities are close by, with good and outstanding rated schools nearby, low local crime and easy bus links.
Buyers should note some straightforward but material drawbacks: the cavity walls were built without insulation (assumed) and will likely need upgrading to improve efficiency. There is a single shower room plus separate WC only; families wanting two full bathrooms may need to alter the layout. Council tax is moderate. Overall this is a peaceful seaside bungalow with renovation and extension potential.
2 bedroom detached bungalow for sale in East Northdown Close, Margate, CT9 — £380,000 • 2 bed • 1 bath • 737 ft²
2 bedroom bungalow for sale in Detling Avenue, Broadstairs, Kent, CT10 — £450,000 • 2 bed • 1 bath • 897 ft²
4 bedroom bungalow for sale in Botany Road, Broadstairs, Kent, CT10 — £700,000 • 4 bed • 2 bath • 1577 ft²
1 bedroom detached bungalow for sale in Yardhurst Gardens, Margate, CT9 — £350,000 • 1 bed • 2 bath • 786 ft²
3 bedroom detached house for sale in Harmsworth Gardens, Broadstairs, CT10 — £400,000 • 3 bed • 1 bath • 1408 ft²
2 bedroom semi-detached bungalow for sale in Sandhurst Road, Palm Bay, Margate, CT9 — £325,000 • 2 bed • 1 bath • 862 ft²






































































































