New three-bed freehold with en suite, parking and energy-efficient design — ideal first-time buyers..
New-build three-storey end-of-terrace, freehold
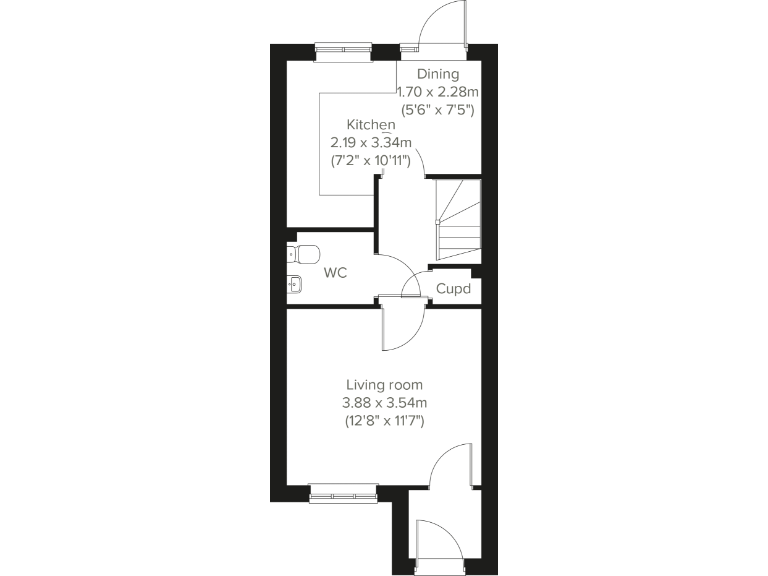
This newly built three-storey end-of-terrace Saunton offers compact, efficient living across 656 sq ft. The layout places everyday living on the ground floor with an open-plan kitchen/dining room that opens to the outside and a front-aspect living room for relaxed evenings. Practical touches include an enclosed porch, downstairs WC and three handy storage cupboards.
The top-floor principal bedroom benefits from an en suite, while two further bedrooms occupy the middle floor — a good arrangement for flexible family or work-from-home use. The property is energy efficient, comes with allocated off-street parking and sits on a notably large plot, offering potential for external landscaping or garden projects (subject to planning and developer guidance).
Buyers should note the compact overall size: rooms are efficient rather than generous and total floor area is 656 sq ft. There is one family bathroom in addition to the en suite, and council tax banding will be confirmed only after occupation. The area scores well for safety, broadband and nearby schools, making this a practical choice for first-time buyers seeking low-maintenance, modern accommodation.
Overall, this home suits a buyer prioritising new-build convenience, energy efficiency and good local amenities over large internal living spaces. It’s a practical, move-in-ready option with scope to personalise the outdoor space.
3 bedroom terraced house for sale in Netherton Moor Road,
Netherton,
HD4 7LE, HD4 — £274,950 • 3 bed • 1 bath • 656 ft²
3 bedroom end of terrace house for sale in Netherton Moor Road,
Netherton,
HD4 7LE, HD4 — £279,950 • 3 bed • 1 bath • 390 ft²
4 bedroom detached house for sale in Netherton Moor Road,
Netherton,
HD4 7LE, HD4 — £429,950 • 4 bed • 1 bath • 457 ft²
3 bedroom detached house for sale in Netherton Moor Road,
Netherton,
HD4 7LE, HD4 — £364,950 • 3 bed • 1 bath • 321 ft²
3 bedroom terraced house for sale in Netherton Moor Road,
Netherton,
HD4 7LE, HD4 — £254,950 • 3 bed • 1 bath • 1115 ft²
4 bedroom detached house for sale in Netherton Moor Road,
Netherton,
HD4 7LE, HD4 — £394,950 • 4 bed • 1 bath • 869 ft²














































