Energy-efficient three-bedroom home with off-street parking and garden potential.
Three bedrooms across three storeys with top-floor en suite
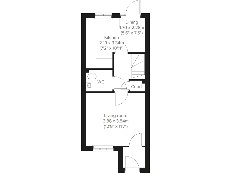
Compact, modern and energy-efficient, this three-bedroom terraced home offers practical family living across three storeys. The Saunton layout places an open-plan kitchen/dining room with outside access and a front-aspect living room on the ground floor, with useful storage cupboards and a handy downstairs WC. The top-floor principal bedroom benefits from an en suite while a family bathroom serves the other bedrooms. Off-street allocated parking and an enclosed porch add everyday convenience, and the property is freehold.
The house is small overall (approximately 656 sq ft) with compact room dimensions, so it suits buyers seeking a low-maintenance home or an affordable step onto the ladder rather than those needing extensive living space. The kitchen and dining area are compact and streamlined with integrated appliances and contemporary finishes; buyers wanting larger entertaining spaces should note the footprint restrictions. The plot is described as large, offering outdoor potential, but the internal accommodation remains modest.
Practical points to confirm before viewing: the advert lists one bathroom but describes an en suite plus a family bathroom—buyers should verify the final bathroom count. Council tax band isn’t yet available. This new-build townhouse sits in a very low-crime, affluent area with fast broadband and excellent mobile signal, close to good primary and secondary schools and local amenities including farm shops and restaurants. Overall, it’s a sensible, energy-efficient option for first-time buyers or small families wanting modern, low-maintenance living in Netherton.
3 bedroom end of terrace house for sale in Netherton Moor Road,
Netherton,
HD4 7LE, HD4 — £279,950 • 3 bed • 1 bath • 656 ft²
3 bedroom end of terrace house for sale in Netherton Moor Road,
Netherton,
HD4 7LE, HD4 — £279,950 • 3 bed • 1 bath • 390 ft²
4 bedroom detached house for sale in Netherton Moor Road,
Netherton,
HD4 7LE, HD4 — £429,950 • 4 bed • 1 bath • 457 ft²
3 bedroom terraced house for sale in Netherton Moor Road,
Netherton,
HD4 7LE, HD4 — £254,950 • 3 bed • 1 bath • 1115 ft²
3 bedroom detached house for sale in Netherton Moor Road,
Netherton,
HD4 7LE, HD4 — £364,950 • 3 bed • 1 bath • 321 ft²
3 bedroom semi-detached house for sale in Old Mill Lane, Thongsbridge, Holmfirth, HD9 — £399,950 • 3 bed • 2 bath • 1356 ft²














































